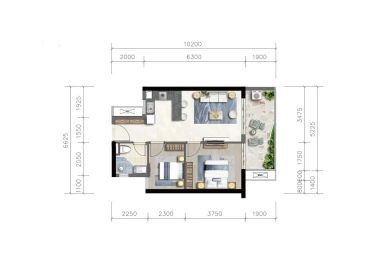
3室2厅2卫1厨
在售高层A3户型 | 建面:115㎡ | 朝向:
- 所属楼盘
约103.5万元/套算月供
实际价格以售楼处为准,户型图为开发商提供,具体以实际交房标准为准
微信打开
查看完整户型评测9.3
户型评分
- 基础测评10
- 空间测评8.9
- 采光通风8.9
户型信息
- 2个阳台
- 次卧带卫生间
- 大面宽阳台
- 全明格局
- 动静分离
空间测评良好8.9空间测评指标


- 面宽

- 进深
*施工有误差,交付时无法与户型图一致,仅供参考,最终以开发商合同为准
| 面积(㎡) | 面宽(m) | 进深(m) | 评价 | |
|---|---|---|---|---|
| 客厅 | 27 | 5.2 | 7.7 | 极佳 |
| 卧室A | 14.3 | 3.4 | 6.5 | 极佳 |
| 卧室B | 8.2 | 3.2 | 3 | 良好 |
| 卧室C | 7.2 | 3.2 | 2.7 | 良好 |
| 厨房 | 7.5 | 4.7 | 1.9 | 良好 |
| 卫生间A | 3.3 | 2 | 1.9 | 良好 |
| 卫生间B | 3.1 | 2 | 1.9 | 良好 |
| 阳台A | 3.9 | 1.3 | 3.5 | 优秀 |
| 阳台B | 9.7 | 7.1 | 1.6 | 良好 |
*户型数据为人工测量或估算值,可能于实际情况存在误差,仅供参考,实际数据以开发商发布为准。
通风测评良好8.9


- 开窗

- 风向
*施工有误差,交付时无法与户型图一致,仅供参考,最终以开发商合同为准
采光测评良好8.9采光测评的指标
| 采光性 | 评价 | |
|---|---|---|
| 卧室A | 极佳 | |
| 卫生间B | 极佳 | |
| 阳台A | 极佳 | |
| 阳台B | 极佳 |
*户型数据为人工测量或估算值,可能于实际情况存在误差,仅供参考,实际数据以开发商发布为准。
房屋细节
客厅 27㎡ | 面宽5.2m | 进深7.7m
- 空间豪华豪华客厅设计巧妙,空间利用合理,营造出一种尊贵而舒适的居住体验。
卧室A 14.3㎡ | 面宽3.4m | 进深6.5m
空间可容纳
床
1.8m*2m
床头柜X2
0.4m宽
衣柜
0.6m深
- 空间较大宽敞明亮的卧室A,让您的居住体验更加美好。
优秀朝南设计的卧室A,明亮宽敞,通风效果极佳,为您的私人空间带来一份自然的舒适感,无论是小憩时光还是安静夜晚,都能享受阳光的温暖拥抱。- 有窗卧室A设有明亮窗户,窗外绿意盎然,让您在休息时刻也能尽享大自然的馈赠,舒缓身心。
卧室B 8.2㎡ | 面宽3.2m | 进深3m
空间可容纳
床
1.2m*2m
床头柜X1
0.4m宽
- 空间适中尽管卧室B面积有限,但设计师却巧妙地将每一寸空间都利用起来,打造出一个精致而舒适的休憩环境。
卧室C 7.2㎡ | 面宽3.2m | 进深2.7m
空间可容纳
床
1.2m*2m
床头柜X1
0.4m宽
- 空间适中尽管卧室C面积有限,但设计师却巧妙地将每一寸空间都利用起来,打造出一个既实用又舒适的休憩之所。
厨房 7.5㎡ | 面宽4.7m | 进深1.9m
- 空间适中精心规划的厨房面积,既实用又美观,为您的烹饪生活增添一份惬意。
卫生间A 3.3㎡ | 面宽2m | 进深1.9m
- 空间适中卫生间A虽小,但空间布局合理,实用性强,为您打造便捷的洗漱空间。
卫生间B 3.1㎡ | 面宽2m | 进深1.9m
- 空间适中卫生间B空间恰到好处,既不拥挤也不空旷,为您打造舒适的洗漱体验。
- 明卫有了窗户的卫生间B,通风换气更加高效,有效避免了潮湿和细菌滋生。
4001891623 转 731310
安全通话隐藏真实号码,致电售楼处了解更多优惠信息
- 专家解读
2室2厅1卫在售9.4“优秀”
58.5万元/套65.00㎡ - 专家解读
2室2厅3卫在售6“普通”
70.2万元/套78.00㎡
2室2厅3卫在售6“普通”
76.5万元/套85.00㎡- 专家解读
2室2厅2卫在售9.5“极佳”
76.5万元/套85.00㎡ - 专家解读
2室2厅1卫在售9.5“极佳”
76.5万元/套85.00㎡
2室2厅3卫在售6“普通”
85.5万元/套95.00㎡- 专家解读
2室2厅2卫在售10“极佳”
85.5万元/套95.00㎡
2室2厅3卫在售6“普通”
87.3万元/套97.00㎡
2室2厅3卫在售6“普通”
88.2万元/套98.00㎡
2室2厅3卫在售6“普通”
93.6万元/套104.00㎡- 专家解读
2室2厅2卫在售7“普通”
93.6万元/套104.00㎡
对此楼盘感兴趣的人还浏览了

兴逸豪轩
价格待定
金平用户评分9.16分
在售

君逸世家
8000元/平方米
潮阳用户评分8.85分
在售经济住宅山景地产

汇悦春天花园
11500元/平方米
金平用户评分9.18分
在售品牌地产经济住宅不限购水景地产
查看全部






优秀















