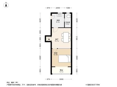
2室2厅1卫1厨
售完东安二村2居室户型图 | 建面:106.67㎡ | 朝向:南北通透
- 所属楼盘
价格待定算月供
实际价格以售楼处为准,户型图为开发商提供,具体以实际交房标准为准
微信打开
查看完整户型评测8.8
户型评分
- 基础测评8.5
- 空间测评8.8
- 采光通风9.2
户型信息
- 1个阳台
- 1个明卫
- 明厨
- 户型方正
- 明厨
- 明卫
空间测评良好8.8空间测评指标


- 面宽

- 进深
*施工有误差,交付时无法与户型图一致,仅供参考,最终以开发商合同为准
| 面积(㎡) | 面宽(m) | 进深(m) | 评价 | |
|---|---|---|---|---|
| 客厅 | 19.5 | 8.6 | 3.4 | 良好 |
| 卧室A | 14.8 | 3.2 | 4.8 | 优秀 |
| 卧室B | 16.3 | 3.3 | 5.1 | 极佳 |
| 卧室C | 16.2 | 3.3 | 5.1 | 优秀 |
| 厨房 | 5.4 | 2 | 3.1 | 良好 |
| 卫生间 | 5.9 | 2.1 | 3.1 | 良好 |
| 阳台 | 3.8 | 3.3 | 1.5 | 良好 |
| 储物间 | 2.2 | 1.9 | 1.4 | 良好 |
*户型数据为人工测量或估算值,可能于实际情况存在误差,仅供参考,实际数据以开发商发布为准。
通风测评优秀9.2


- 开窗

- 风向
*施工有误差,交付时无法与户型图一致,仅供参考,最终以开发商合同为准
采光测评优秀9.2采光测评的指标
| 采光性 | 评价 | |
|---|---|---|
| 卧室A | 极佳 | |
| 卧室B | 极佳 | |
| 厨房 | 优秀 | |
| 卫生间 | 优秀 | |
| 阳台 | 极佳 |
*户型数据为人工测量或估算值,可能于实际情况存在误差,仅供参考,实际数据以开发商发布为准。
房屋细节
客厅 19.5㎡ | 面宽8.6m | 进深3.4m
- 紧凑实用虽然客厅规模有限,却彰显出小巧而精致的特色。设计上紧凑实用,每个角落都经过精心布置。这个小空间散发着家的温暖与舒适,让人倍感温馨。
卧室A 14.8㎡ | 面宽3.2m | 进深4.8m
空间可容纳
床
1.8m*2m
床头柜X2
0.4m宽
衣柜
0.6m深
- 空间较大卧室A宽敞舒适,空间足够大,让您尽享惬意的生活时光。
- 有窗卧室A的窗户,如同一扇通往自然的门,让您随时都能感受到室外的美景与气息。
卧室B 16.3㎡ | 面宽3.3m | 进深5.1m
空间可容纳
床
1.8m*2m
床头柜X2
0.4m宽
衣柜
0.6m深
- 空间较大卧室B空间开阔,无论是休息还是储物,都能满足您的需求。
- 有窗卧室B的窗户,如同一扇通往自然的门,让您随时都能感受到室外的美景与气息。
卧室C 16.2㎡ | 面宽3.3m | 进深5.1m
空间可容纳
床
1.8m*2m
床头柜X2
0.4m宽
衣柜
0.6m深
- 空间较大卧室C空间宽敞,让您在繁忙的工作之余,享受宁静的私人时光。
- 次卧有阳台卧室C带阳台,让您的生活更加通透。您可以在这里享受阳光的沐浴,感受自然的温暖与关爱,享受生活的舒适与惬意。
厨房 5.4㎡ | 面宽2m | 进深3.1m
- 空间适中适中的厨房空间,让您的烹饪过程更加轻松愉快,享受美食带来的幸福。
- 明厨厨房的窗户明亮而宽敞,让光线充分进入,烹饪时光变得更加愉快,增添家的生活气息。
卫生间 5.9㎡ | 面宽2.1m | 进深3.1m
- 空间适中精致设计的卫生间,空间利用恰到好处,让您的洗浴体验更加舒适愉悦。
- 明卫透过卫生间的窗户,可以看到外面的风景,让卫浴时光变得更加惬意。
对此楼盘感兴趣的人还浏览了
查看全部






























