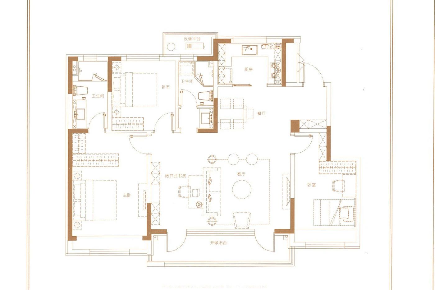
3室2厅2卫1厨
售完B-129平3室2厅2卫 | 建面:129㎡ | 朝向:
- 所属楼盘
价格待定算月供
实际价格以售楼处为准,户型图为开发商提供,具体以实际交房标准为准
微信打开
查看完整户型评测户型信息
- 2个明卫
- 明厨
- 次卧带卫生间
房屋细节
卫B
- 空间适中卫B虽小,但空间布局合理,既实用又美观,让您的洗浴体验更加舒适惬意。
- 明卫窗户的加入让卫B的通风效果更佳,同时也为居住者带来了更加舒适的卫浴体验。
客厅
- 空间豪华豪华客厅空间开阔,每一处细节都透露出主人对生活的热爱与追求。
- 舒适客厅设计优雅,窗户巧妙布置,让自然光与室内空间和谐相融,无论是阅读学习还是品茗休闲,都能在此找到心灵的宁静。
卧室
空间可容纳
床
1.8m*2m
床头柜X2
0.4m宽
衣柜
0.6m深
- 空间适中精致小巧的卧室,设计精巧,每一寸空间都得到了充分利用,让您在繁忙的生活中拥有一个温馨的休憩角落。
优秀卧室朝南,光线通透且柔和,通风条件优越,为您的私密空间增添一份自然的舒适与安逸,无论是午后放松还是夜晚安睡,都能感受到阳光的温暖守护。- 有窗卧室的窗户,如同自然的画布,随着季节的变换而展现出不同的风景,让您在此享受大自然的馈赠与恩赐。
卧室A
空间可容纳
床
1.8m*2m
床头柜X2
0.4m宽
衣柜
0.6m深
- 空间较大这间大于10平米的卧室A,空间宽敞,布局合理,让您在享受舒适生活的同时,也能感受到家的温馨与安逸。
优秀朝南的卧室A光线充足,通风条件优越,为您打造一处自然舒适的私密天地,无论是休闲午后还是宁静夜晚,都能沐浴在阳光的温暖之中。- 有窗卧室A窗户明亮通透,将室外的清新空气与阳光引入室内,让您在此享受宁静与舒适的时光。
卧室B
空间可容纳
床
1.2m*2m
床头柜X1
0.4m宽
- 空间适中尽管卧室B面积有限,但设计师却巧妙地利用空间,打造出一个精致而舒适的休憩之所,让您感受到家的温馨与惬意。
- 有窗卧室B设有明亮窗户,窗外绿意盎然,让您在休息时刻也能尽享大自然的馈赠,舒缓身心。
书房
空间可容纳
床
1.2m*2m
床头柜X1
0.4m宽
- 空间适中精致小巧的书房,虽然面积不大,但设计却十分用心,每一处都透露着舒适与温馨,让您拥有一个温馨的休憩之所。
厨房
- 空间适中厨房面积适中,让您在料理美食的同时,也能享受到宽敞舒适的烹饪空间。
- 明厨厨房设计注重通风采光,窗户设计合理,让烹饪时光更加明亮舒适,增添家的幸福感。
卫生间
- 空间适中精致设计的卫生间,空间利用恰到好处,让您的洗浴时光更加轻松愉悦。
- 明卫明亮的光线透过卫生间的窗户洒落,不仅提升了空间感,还使卫浴体验更加愉悦。
对此楼盘感兴趣的人还浏览了
新城学府
10000元/平方米
黄岛-黄岛区用户评分8.72分
在售经济住宅现房
众安·未来里
8000元/平方米
黄岛-黄岛区用户评分8.57分
在售经济住宅
康大玺樾府
25000元/平方米
黄岛-黄岛区用户评分9.28分
在售品牌地产改善优选装修交付地铁沿线低密居所
查看全部


优秀







