- 74.69㎡
- 128㎡
- 97㎡
- 92.7㎡
- 99.6㎡
- 135.31㎡
- 115.65㎡
- 32.56㎡
- 115㎡
- 95㎡
- 124.94㎡
- 146.3㎡
- 105㎡
- 98.28㎡
- 100㎡
- 77.59㎡
- 105㎡
- 190㎡
- 98㎡
- 57.04㎡
- 118㎡
- 77.08㎡
- 123.3㎡
- 101㎡
- 57.04㎡
- 96㎡
- 99.46㎡
- 60㎡
- 54.24㎡
- 124㎡
- 126.91㎡
- 123㎡
- 90㎡
- 101㎡
- 79.96㎡
- 79.14㎡
- 79.58㎡
- 128.55㎡
- 122㎡
- 107.32㎡
- 126.56㎡
- 79㎡
- 138.39㎡
- 78㎡
- 58㎡
- 110㎡
- 200㎡
- 56㎡
- 76㎡
- 102.76㎡
- 78㎡
- 89.56㎡
- 78㎡
- 120.12㎡
- 137㎡
- 131㎡
- 52.02㎡
- 131.6㎡
- 139㎡
- 127㎡
- 122㎡
- 99㎡
- 58.26㎡
- 57㎡
- 138.9㎡
- 115㎡
- 118㎡
- 91㎡
- 56㎡
- 57㎡
- 138㎡
- 92.7㎡
- 78㎡
- 60㎡
- 58㎡
- 93㎡
- 59㎡
- 102㎡
- 99.47㎡
- 123㎡
- 98㎡
- 138.9㎡
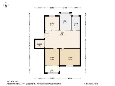
3室2厅2卫1厨
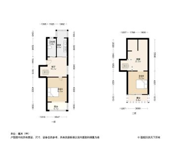
售完星景花园3居室户型图 | 建面:139㎡ | 朝向:朝南
- 所属楼盘
价格待定算月供
实际价格以售楼处为准,户型图为开发商提供,具体以实际交房标准为准
微信打开
查看完整户型评测8.9
户型评分
- 基础测评9
- 空间测评9
- 采光通风8.7
户型信息
- 1个阳台
- 1个明卫
- 明厨
- 大面宽阳台
- 户型方正
- 明卫
- 明厨
空间测评良好9空间测评指标


- 面宽

- 进深
*施工有误差,交付时无法与户型图一致,仅供参考,最终以开发商合同为准
| 面积(㎡) | 面宽(m) | 进深(m) | 评价 | |
|---|---|---|---|---|
| 客厅 | 42.4 | 4.2 | 4.5 | 优秀 |
| 餐厅 | 0 | 8.8 | 3.3 | 良好 |
| 卧室A | 16.6 | 3.7 | 4.5 | 优秀 |
| 卧室B | 15.9 | 3.7 | 4.5 | 优秀 |
| 卧室C | 15 | 3.5 | 4.5 | 优秀 |
| 厨房 | 3.4 | 3.2 | 4.3 | 极佳 |
| 卫生间A | 6.2 | 1.8 | 3.7 | 优秀 |
| 卫生间B | 4.5 | 2.5 | 2 | 良好 |
| 阳台 | 1.6 | 7.9 | 1.5 | 良好 |
*户型数据为人工测量或估算值,可能于实际情况存在误差,仅供参考,实际数据以开发商发布为准。
通风测评良好8.7


- 开窗

- 风向
*施工有误差,交付时无法与户型图一致,仅供参考,最终以开发商合同为准
采光测评良好8.7采光测评的指标
| 采光性 | 评价 | |
|---|---|---|
| 卧室A | 普通 | |
| 卧室B | 普通 | |
| 卧室C | 良好 | |
| 厨房 | 极佳 | |
| 卫生间A | 优秀 | |
| 阳台 | 极佳 |
*户型数据为人工测量或估算值,可能于实际情况存在误差,仅供参考,实际数据以开发商发布为准。
房屋细节
客厅 42.4㎡ | 面宽4.2m | 进深4.5m
- 空间宽敞宽敞明亮的客厅,是家的重要组成部分,让人在其中可以尽情放松身心,享受家的美好时光。
- 有阳台阳台与客厅紧密相连,这一设计既实用又美观,为家居生活增添了不少乐趣。
卧室A 16.6㎡ | 面宽3.7m | 进深4.5m
空间可容纳
床
1.8m*2m
床头柜X2
0.4m宽
衣柜
0.6m深
- 空间较大卧室A空间开阔,通风良好,让您拥有健康舒适的居住环境。
- 有窗卧室A窗户设计独特,让室内的光线与室外的景色完美融合,为您营造一个既温馨又舒适的生活氛围。
卧室B 15.9㎡ | 面宽3.7m | 进深4.5m
空间可容纳
床
1.8m*2m
床头柜X2
0.4m宽
衣柜
0.6m深
- 空间较大宽敞明亮的卧室B,让您的生活更加轻松惬意。
- 有窗卧室B的窗户,如同自然的画布,随着季节的变换而展现出不同的风景,让您在此享受大自然的馈赠与恩赐。
- 次卧有阳台卧室B不仅宽敞舒适,更带有私属阳台,让您的生活空间得以延伸。无论是清晨的呼吸吐纳,还是夜晚的观星赏月,都能在这里找到与自然的亲密接触。
卧室C 15㎡ | 面宽3.5m | 进深4.5m
空间可容纳
床
1.8m*2m
床头柜X2
0.4m宽
衣柜
0.6m深
- 空间较大卧室C空间开阔,无论是休息还是储物,都能满足您的需求。
优秀卧室C朝南,光线明亮,通风效果上佳,为您的私密空间带来一份自然的舒适与宁静,无论是午后小憩还是夜晚安睡,都能感受到阳光的温暖照耀。- 有窗卧室C窗户通透,让光线与空气自由流通,为您打造一个明亮舒适的休息空间,感受自然的呵护。
厨房 3.4㎡ | 面宽3.2m | 进深4.3m
- 空间较大厨房面积宽敞,多人协作料理更加高效,同时满足家电摆放需求,让生活更美好。
- 明厨厨房的窗户明亮通透,让烹饪时光充满阳光与温暖,享受家的温馨与舒适。
卫生间A 6.2㎡ | 面宽1.8m | 进深3.7m
- 空间较大卫生间A空间较大,干湿分离设计轻松实现,让卫浴生活更加便捷。
- 明卫卫生间A的窗户设计,让自然光与新鲜空气自由流通,为居住者带来清新舒适的卫浴体验。
卫生间B 4.5㎡ | 面宽2.5m | 进深2m
- 空间适中虽面积不大,但卫生间B布局合理,空间适中,轻松享受私密舒适的洗漱时光。
2室1厅1卫售完9.2“优秀”
价格待定74.69㎡
2室2厅1卫售完9.2“优秀”
价格待定92.70㎡
2室2厅1卫售完8.5“良好”
价格待定105.00㎡
2室2厅1卫售完9.1“优秀”
价格待定98.28㎡
2室1厅1卫售完9.1“优秀”
价格待定77.59㎡
2室1厅1卫售完9.5“极佳”
价格待定57.04㎡
2室2厅1卫售完9.1“优秀”
价格待定77.08㎡
2室1厅1卫售完9.5“极佳”
价格待定60.00㎡
2室2厅1卫售完9.5“极佳”
价格待定90.00㎡
2室1厅1卫售完9.2“优秀”
价格待定79.96㎡
2室1厅1卫售完9.2“优秀”
价格待定79.14㎡
2室1厅1卫售完9.1“优秀”
价格待定79.00㎡
2室1厅1卫售完9.3“优秀”
价格待定76.00㎡
2室1厅1卫售完8“良好”
价格待定102.76㎡
2室1厅1卫售完9.5“极佳”
价格待定78.00㎡
2室1厅1卫售完9.3“优秀”
价格待定78.00㎡
2室1厅1卫售完9.5“极佳”
价格待定52.02㎡
2室1厅1卫售完8.9“良好”
价格待定57.00㎡
2室2厅1卫售完8.9“良好”
价格待定91.00㎡
2室1厅1卫售完8.9“良好”
价格待定57.00㎡
2室1厅1卫售完8.9“良好”
价格待定78.00㎡
2室2厅1卫售完8.9“良好”
价格待定93.00㎡
2室2厅1卫售完8.7“良好”
价格待定102.00㎡
2室2厅1卫售完8.9“良好”
价格待定98.00㎡
对此楼盘感兴趣的人还浏览了
查看全部





优秀















































































