- 156.22㎡
- 118㎡
- 158.85㎡
- 207.44㎡
- 97㎡
- 121㎡
- 78㎡
- 88.88㎡
- 160㎡
- 80㎡
- 89.56㎡
- 210㎡
- 120.91㎡
- 120.9㎡
- 93㎡
- 96.7㎡
- 99.07㎡
- 88.43㎡
- 56㎡
- 38㎡
- 38㎡
- 51.83㎡
- 103㎡
- 84.36㎡
- 110㎡
- 133.19㎡
- 92.9㎡
- 158.74㎡
- 104.66㎡
- 85㎡
- 104.62㎡
- 95㎡
- 94㎡
- 138.15㎡
- 82㎡
- 133.2㎡
- 133.2㎡
- 94.51㎡
- 102.65㎡
- 89㎡
- 85㎡
- 129㎡
- 98㎡
- 128㎡
- 80㎡
- 127.85㎡
- 157.11㎡
- 157.11㎡
- 156.9㎡
- 120.91㎡
- 127.64㎡
- 112.3㎡
- 131.96㎡
- 126.81㎡
- 86.46㎡
- 116.2㎡
- 125.73㎡
- 109.55㎡
- 111.4㎡
- 132.33㎡
- 115.27㎡
- 125.93㎡
- 111.01㎡
- 127.85㎡
- 109.73㎡
- 126㎡
- 87㎡
- 149㎡
- 124㎡
- 156.9㎡
- 109㎡
- 126㎡
- 122.86㎡
- 81.54㎡
- 84.55㎡
- 81.73㎡
- 81.96㎡
- 100.25㎡
- 132㎡
- 132㎡
- 132㎡
- 132㎡
- 146㎡
- 128㎡
- 110㎡
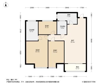
2室2厅1卫1厨
售完49号楼1单元B.C.D.E户型 | 建面:86.46㎡ | 朝向:
- 所属楼盘
价格待定算月供
实际价格以售楼处为准,户型图为开发商提供,具体以实际交房标准为准
微信打开
查看完整户型评测9.4
户型评分
- 基础测评10
- 空间测评8.8
- 采光通风9.2
户型信息
- 1个阳台
- 1个明卫
- 南北通透
- 全明格局
空间测评良好8.8空间测评指标


- 面宽

- 进深
*施工有误差,交付时无法与户型图一致,仅供参考,最终以开发商合同为准
| 面积(㎡) | 面宽(m) | 进深(m) | 评价 | |
|---|---|---|---|---|
| 客厅 | 18.2 | 5.2 | 4.1 | 良好 |
| 餐厅 | 15.8 | 3.8 | 5.3 | 极佳 |
| 卧室 | 14.4 | 3.4 | 4.2 | 优秀 |
| 卧室A | 10 | 3.5 | 2.9 | 良好 |
| 厨房 | 4.1 | 1.7 | 2.4 | 良好 |
| 卫生间 | 3.4 | 2 | 1.7 | 良好 |
| 阳台 | 6.2 | 3.9 | 1.8 | 良好 |
*户型数据为人工测量或估算值,可能于实际情况存在误差,仅供参考,实际数据以开发商发布为准。
通风测评优秀9.2


- 开窗

- 风向
*施工有误差,交付时无法与户型图一致,仅供参考,最终以开发商合同为准
采光测评优秀9.2采光测评的指标
| 采光性 | 评价 | |
|---|---|---|
| 卧室 | 极佳 | |
| 卧室A | 极佳 | |
| 卫生间 | 极佳 | |
| 阳台 | 极佳 |
*户型数据为人工测量或估算值,可能于实际情况存在误差,仅供参考,实际数据以开发商发布为准。
房屋细节
客厅 18.2㎡ | 面宽5.2m | 进深4.1m
- 紧凑实用尽管客厅面积有限,但以其小巧精致而著称。设计上紧凑实用,每一处布置都显得十分恰到好处。这个小空间散发着家的温馨与舒适。
- 有阳台客厅与阳台相连通,使得整个空间更加开阔明亮,同时也为家人提供了一个互动交流的场所。
卧室 14.4㎡ | 面宽3.4m | 进深4.2m
空间可容纳
床
1.8m*2m
床头柜X2
0.4m宽
衣柜
0.6m深
- 空间较大卧室设计合理,空间足够大,让您轻松打造个性化的居住空间。
优秀卧室朝南,光线充足且宜人,通风条件良好,为您的私密空间打造一处自然舒适的休憩之所,无论是午后放松还是夜晚入眠,都能感受到阳光的温暖守护。- 有窗卧室窗户明亮通透,将室外的清新空气与阳光引入室内,让您在此享受宁静与舒适的时光。
- 次卧有阳台卧室的阳台,是您放松身心的好去处。您可以在这里摆放绿植,感受自然的气息,让身心得到彻底的放松与舒缓。
卧室A 10㎡ | 面宽3.5m | 进深2.9m
空间可容纳
床
1.8m*2m
床头柜X2
0.4m宽
衣柜
0.6m深
- 空间适中卧室A虽小,却设计得精致而舒适,每一寸空间都得到了充分的利用,为您带来一个宁静而温馨的休憩环境。
- 有窗卧室A窗户通透,让光线与空气自由流通,为您打造一个明亮舒适的休息空间,感受自然的呵护。
厨房 4.1㎡ | 面宽1.7m | 进深2.4m
- 空间适中恰到好处的厨房面积,既方便日常操作,又能营造出温馨的家庭氛围。
卫生间 3.4㎡ | 面宽2m | 进深1.7m
- 空间适中精致小巧的卫生间,空间利用得当,既节省空间又满足日常所需,让您的洗浴时光更加愉快。
- 明卫透过卫生间的窗户,可以看到外面的风景,让卫浴时光变得更加惬意。
优惠活动
查看更多优惠
4室2厅2卫售完10“极佳”
价格待定156.22㎡
4室2厅2卫售完10“极佳”
价格待定158.85㎡
4室2厅2卫售完10“极佳”
价格待定207.44㎡
4室2厅2卫售完10“极佳”
价格待定160.00㎡
4室2厅2卫售完10“极佳”
价格待定210.00㎡- 专家解读
4室2厅2卫售完9.5“极佳”
价格待定158.74㎡ - 专家解读
4室2厅1卫售完9.6“极佳”
价格待定157.11㎡ - 专家解读
4室2厅1卫售完9.5“极佳”
价格待定157.11㎡ - 专家解读
4室2厅1卫售完9.5“极佳”
价格待定156.90㎡ - 专家解读
4室2厅2卫售完9.5“极佳”
价格待定149.00㎡ - 专家解读
4室2厅1卫售完9.5“极佳”
价格待定156.90㎡ - 专家解读
4室2厅2卫售完9.5“极佳”
价格待定146.00㎡
置业顾问(1)
- 免费咨询
- 专业服务
- 区域解读
- 户型分析
对此楼盘感兴趣的人还浏览了
查看全部






优秀



















































































