2室1厅1卫1厨
售完绿地·香树花城2居室户型图 | 建面:82.5㎡ | 朝向:朝南
- 所属楼盘
价格待定算月供
实际价格以售楼处为准,户型图为开发商提供,具体以实际交房标准为准
微信打开
查看完整户型评测9.2
户型评分
- 基础测评9.5
- 空间测评9.1
- 采光通风8.9
户型信息
- 1个阳台
- 明厨
- 明厨
- 客厅朝南
空间测评优秀9.1空间测评指标


- 面宽

- 进深
*施工有误差,交付时无法与户型图一致,仅供参考,最终以开发商合同为准
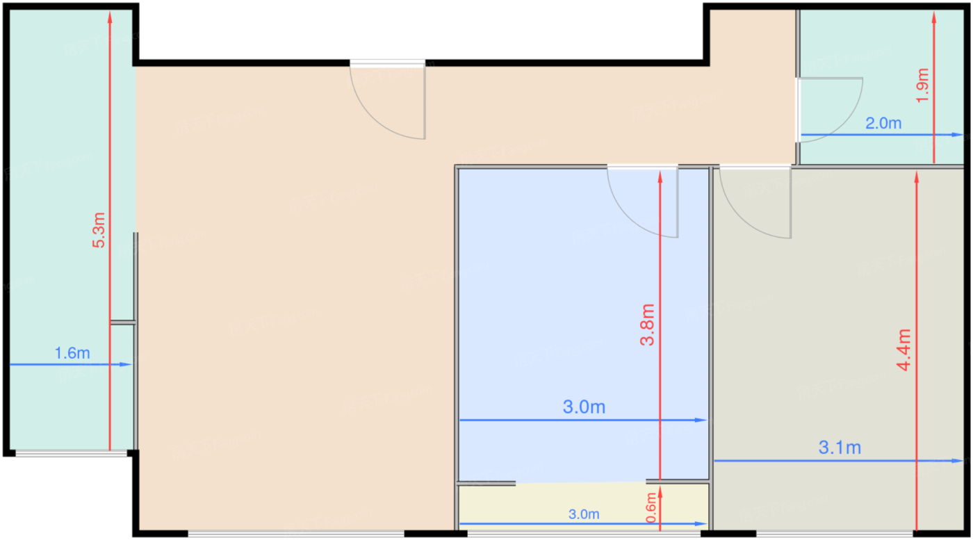
| 面积(㎡) | 面宽(m) | 进深(m) | 评价 | |
|---|---|---|---|---|
| 客厅 | 26.1 | 7.9 | 6.3 | 极佳 |
| 卧室 | 11.1 | 3 | 3.8 | 良好 |
| 厨房 | 8.2 | 1.6 | 5.3 | 优秀 |
| 卫生间 | 3.4 | 2 | 1.9 | 良好 |
| 阳台 | 1.4 | 3 | 0.6 | 良好 |
| 储物间 | 13.6 | 3.1 | 4.4 | 极佳 |
*户型数据为人工测量或估算值,可能于实际情况存在误差,仅供参考,实际数据以开发商发布为准。
通风测评良好8.9


- 开窗

- 风向
*施工有误差,交付时无法与户型图一致,仅供参考,最终以开发商合同为准
采光测评良好8.9采光测评的指标
| 采光性 | 评价 | |
|---|---|---|
| 客厅 | 良好 | |
| 厨房 | 极佳 | |
| 阳台 | 极佳 |
*户型数据为人工测量或估算值,可能于实际情况存在误差,仅供参考,实际数据以开发商发布为准。
房屋细节
客厅 26.1㎡ | 面宽7.9m | 进深6.3m
- 空间豪华宽敞豪华的客厅,是家庭聚会的绝佳场所,也是主人展现品味的重要舞台。
优秀客厅朝南,采光极佳,明亮而舒适,阳光洒满每一个角落,为生活带来无尽的温暖与色彩,是您品味生活、享受天伦之乐的绝佳空间。
优秀落地窗为客厅带来了更加开阔的视野,让您在享受舒适居住体验的同时,也能领略到户外风光的无限魅力。- 有阳台客厅与阳台相连,提供了一个养花弄草的好地方,让居家生活更加绿意盎然。
卧室 11.1㎡ | 面宽3m | 进深3.8m
空间可容纳
床
1.8m*2m
床头柜X2
0.4m宽
衣柜
0.6m深
- 空间适中尽管卧室面积有限,但设计师巧妙地利用每一寸空间,布局合理,使这个小小的角落成为您放松身心的温馨之地。
- 次卧有阳台带有阳台的卧室,让您的生活更加多彩。您可以在这里欣赏日出日落,感受大自然的魅力,享受生活的每一刻精彩。
厨房 8.2㎡ | 面宽1.6m | 进深5.3m
- 空间较大宽敞的厨房空间,让多人协作料理更加轻松,同时容纳冰箱等家电,满足生活所需。
卫生间 3.4㎡ | 面宽2m | 进深1.9m
- 空间适中卫生间空间适中,既满足您的日常需求,又保持空间的舒适度,让您的洗浴体验更加完美。
对此楼盘感兴趣的人还浏览了
查看全部





优秀





































