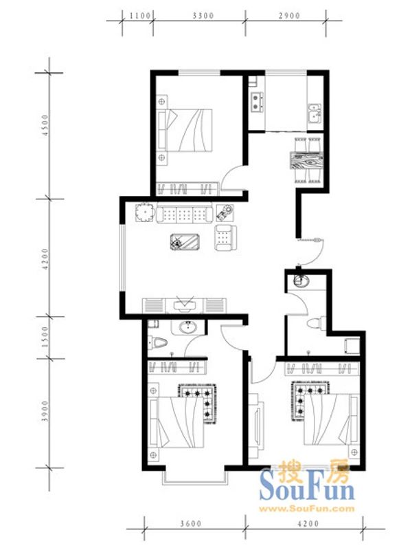
3室2厅2卫1厨
售完E户型 | 建面:127.18㎡ | 朝向:
- 所属楼盘
价格待定算月供
实际价格以售楼处为准,户型图为开发商提供,具体以实际交房标准为准
微信打开
查看完整户型评测10
户型评分
- 基础测评10
对此楼盘感兴趣的人还浏览了
中铁诺德龙湾
10000元/平方米
回民-海西路用户评分9.31分
在售低密居所景观居所
回民区小府路以东、14米规划路以北
价格待定
回民-海西路用户评分0.0分
待售
回民区厂汉板路以东、成吉思汗西街以南
价格待定
回民-海西路用户评分0.0分
待售
查看全部













