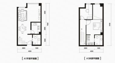
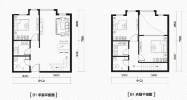
3室2厅2卫1厨
售完5#楼C-3户型 | 建面:150㎡ | 朝向:
- 所属楼盘
约8500.00元/平方米算月供
实际价格以售楼处为准,户型图为开发商提供,具体以实际交房标准为准
微信打开
查看完整户型评测10
户型评分
- 基础测评10
对此楼盘感兴趣的人还浏览了
万锦宽阅
11000元/平方米
玉泉-昭君路用户评分9.04分
在售
万锦.云锦
10000元/平方米
玉泉-昭君路用户评分9.78分
待售小户型景观居所水景地产山景地产创意地产地铁沿线
金地名京(商业)
18500元/平方米
玉泉-昭君路用户评分0.0分
在售
查看全部









