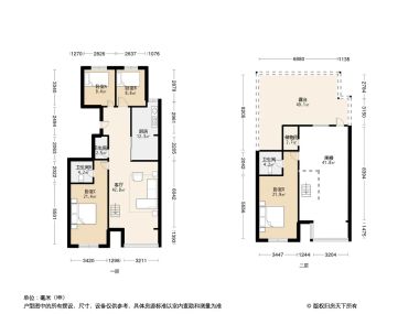
3室2厅1卫1厨
售完E户型 | 建面:175.73㎡ | 朝向:
- 所属楼栋
5栋
- 所属楼盘
价格待定算月供
实际价格以售楼处为准,户型图为开发商提供,具体以实际交房标准为准
微信打开
查看完整户型评测10
户型评分
- 基础测评10
户型信息
- 南北通透
- 露台
- 飘窗
3室2厅2卫售完9“优秀”
价格待定130.60㎡
3室2厅2卫售完9.2“优秀”
价格待定135.50㎡
3室2厅2卫售完9.3“优秀”
价格待定130.09㎡
3室2厅2卫售完8.9“良好”
价格待定134.00㎡
3室2厅1卫售完9.3“优秀”
价格待定130.78㎡
3室2厅2卫售完9.3“优秀”
价格待定155.00㎡
3室2厅2卫售完9.2“优秀”
价格待定130.48㎡
3室2厅1卫售完9.4“优秀”
价格待定184.00㎡
3室2厅2卫售完9.5“极佳”
价格待定165.00㎡
3室1厅2卫售完9.3“优秀”
价格待定120.33㎡
3室2厅2卫售完10“极佳”
价格待定182.00㎡
3室2厅2卫售完9.5“极佳”
价格待定153.88㎡
3室2厅2卫售完9.3“优秀”
价格待定145.00㎡
3室1厅1卫售完9.2“优秀”
价格待定118.00㎡
3室2厅2卫售完9.5“极佳”
价格待定174.00㎡
3室2厅1卫售完9.5“极佳”
价格待定122.01㎡
3室2厅1卫售完9.5“极佳”
价格待定118.00㎡
3室1厅1卫售完9.3“优秀”
价格待定117.86㎡
3室2厅2卫售完9.7“极佳”
价格待定179.60㎡
3室2厅1卫售完9“优秀”
价格待定132.34㎡
3室2厅1卫售完9“优秀”
价格待定144.85㎡
3室2厅1卫售完10“极佳”
价格待定181.27㎡
3室2厅1卫售完10“极佳”
价格待定128.55㎡
对此楼盘感兴趣的人还浏览了
查看全部































