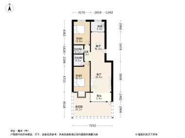
2室1厅1卫1厨
售完紫御澜庭2居室户型图 | 建面:95㎡ | 朝向:南北通透
- 所属楼盘
价格待定算月供
实际价格以售楼处为准,户型图为开发商提供,具体以实际交房标准为准
微信打开
查看完整户型评测9.3
户型评分
- 基础测评10
- 空间测评8.7
- 采光通风9
户型信息
- 1个阳台
- 1个飘窗
- 明厨
- 户型方正
- 明厨
- 主卧朝南
空间测评良好8.7空间测评指标


- 面宽

- 进深
*施工有误差,交付时无法与户型图一致,仅供参考,最终以开发商合同为准
| 面积(㎡) | 面宽(m) | 进深(m) | 评价 | |
|---|---|---|---|---|
| 客厅 | 28.2 | 3.6 | 5.3 | 优秀 |
| 卧室A | 12.7 | 3.1 | 4.1 | 良好 |
| 卧室B | 14.7 | 3.1 | 4.7 | 优秀 |
| 厨房 | 5.2 | 2.4 | 1.9 | 良好 |
| 卫生间 | 4.6 | 1.9 | 2.4 | 良好 |
| 阳台 | 4 | 3.2 | 1.3 | 良好 |
*户型数据为人工测量或估算值,可能于实际情况存在误差,仅供参考,实际数据以开发商发布为准。
通风测评优秀9


- 开窗

- 风向
*施工有误差,交付时无法与户型图一致,仅供参考,最终以开发商合同为准
采光测评优秀9采光测评的指标
| 采光性 | 评价 | |
|---|---|---|
| 卧室A | 优秀 | |
| 卧室B | 优秀 | |
| 厨房 | 极佳 | |
| 阳台 | 极佳 |
*户型数据为人工测量或估算值,可能于实际情况存在误差,仅供参考,实际数据以开发商发布为准。
房屋细节
客厅 28.2㎡ | 面宽3.6m | 进深5.3m
- 空间宽敞客厅的空间足够宽敞,无论是家庭聚会还是朋友小聚,都能轻松应对,让欢声笑语充盈整个空间。
- 有阳台阳台作为客厅的延伸空间,既增加了室内的采光和通风效果,又提升了家居的整体品质。
卧室A 12.7㎡ | 面宽3.1m | 进深4.1m
空间可容纳
床
1.8m*2m
床头柜X2
0.4m宽
衣柜
0.6m深
- 空间适中虽然卧室A面积不足,但设计却独具匠心,布局合理,让每一寸空间都发挥出其最大的价值,为您带来舒适的休憩体验。
- 有窗卧室A窗户明亮通透,将室外的清新空气与阳光引入室内,让您在此享受宁静与舒适的时光。
卧室B 14.7㎡ | 面宽3.1m | 进深4.7m
空间可容纳
床
1.8m*2m
床头柜X2
0.4m宽
衣柜
0.6m深
- 空间较大卧室B面积足够大,让您在布置房间时更加得心应手。
优秀卧室B朝南,光线充足且宜人,通风条件良好,为您的私密空间打造一处自然舒适的休憩之所,无论是午后放松还是夜晚入眠,都能感受到阳光的温暖守护。- 有飘窗卧室B的飘窗设计,让自然光线与室内空间完美融合,为您带来一份轻松愉悦的生活体验。
厨房 5.2㎡ | 面宽2.4m | 进深1.9m
- 空间适中厨房空间宽敞舒适,让您在烹饪时能够尽情发挥,享受美食带来的快乐。
- 明厨厨房的窗户如同明亮的眼睛,让室内充满自然光,烹饪过程更加轻松,感受家的舒适与惬意。
卫生间 4.6㎡ | 面宽1.9m | 进深2.4m
- 空间适中精致小巧的卫生间,空间利用得当,既节省空间又满足日常所需,让您的洗浴时光更加愉快。
2室1厅1卫售完8.9“良好”
价格待定89.00㎡
2室1厅1卫售完8.6“良好”
价格待定129.30㎡
2室2厅1卫售完8.6“良好”
价格待定111.00㎡
2室1厅1卫售完8.5“良好”
价格待定115.00㎡
2室1厅1卫售完9.4“优秀”
价格待定86.00㎡
2室1厅1卫售完9.4“优秀”
价格待定85.00㎡
2室2厅1卫售完8.7“良好”
价格待定117.50㎡
2室1厅1卫售完9.3“优秀”
价格待定82.00㎡
2室1厅1卫售完9.3“优秀”
价格待定82.99㎡
2室2厅1卫售完8“良好”
价格待定115.00㎡
2室1厅1卫售完9.3“优秀”
价格待定79.59㎡
2室2厅1卫售完8.7“良好”
价格待定117.00㎡
2室1厅1卫售完9.3“优秀”
价格待定85.00㎡
2室2厅1卫售完8.8“良好”
价格待定115.00㎡
2室2厅1卫售完8.7“良好”
价格待定108.00㎡
2室1厅1卫售完8.6“良好”
价格待定105.41㎡
2室1厅1卫售完9.3“优秀”
价格待定88.00㎡
2室2厅1卫售完7“普通”
价格待定108.05㎡
2室2厅1卫售完10“极佳”
价格待定87.90㎡
2室2厅1卫售完7“普通”
价格待定109.00㎡
2室2厅2卫售完7“普通”
价格待定111.15㎡
2室2厅1卫售完10“极佳”
价格待定85.50㎡
2室2厅1卫售完7“普通”
价格待定113.60㎡
2室2厅1卫售完10“极佳”
价格待定80.30㎡
对此楼盘感兴趣的人还浏览了
中铁诺德龙湾
10000元/平方米
回民-海西路用户评分9.31分
在售低密居所景观居所
回民区小府路以东、14米规划路以北
价格待定
回民-海西路用户评分0.0分
待售
回民区厂汉板路以东、成吉思汗西街以南
价格待定
回民-海西路用户评分0.0分
待售
查看全部





优秀




























