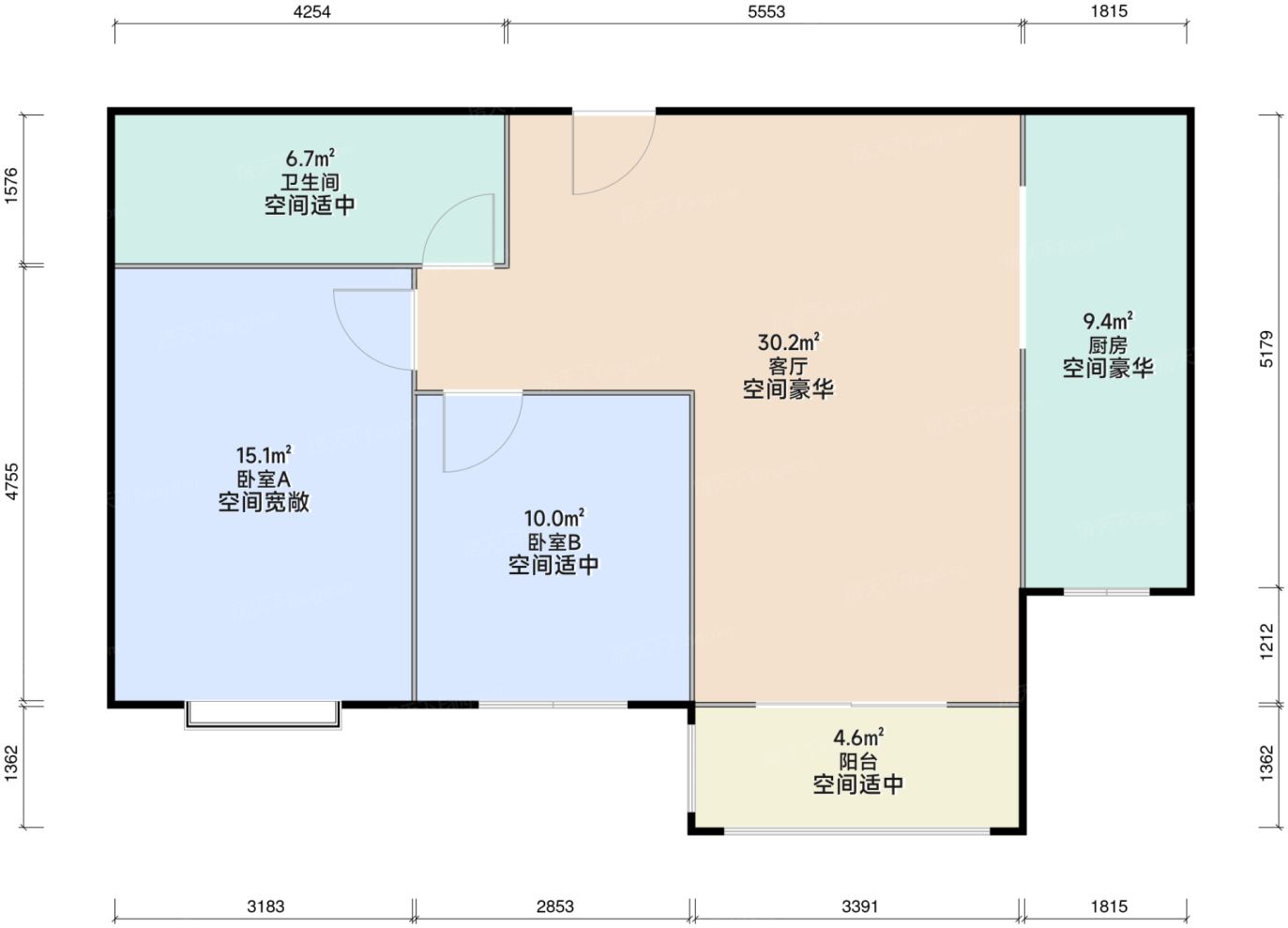
2室1厅1卫1厨
售完萬博華景2居室户型图 | 建面:98.87㎡ | 朝向:朝南
- 所属楼盘
价格待定算月供
实际价格以售楼处为准,户型图为开发商提供,具体以实际交房标准为准
微信打开
查看完整户型评测9.2
户型评分
- 基础测评9.5
- 空间测评9.1
- 采光通风8.9
户型信息
- 1个阳台
- 1个飘窗
- 明厨
- 明厨
- 双卧朝南
空间测评优秀9.1空间测评指标


- 面宽

- 进深
*施工有误差,交付时无法与户型图一致,仅供参考,最终以开发商合同为准
| 面积(㎡) | 面宽(m) | 进深(m) | 评价 | |
|---|---|---|---|---|
| 客厅 | 30.2 | 6.6 | 6.4 | 极佳 |
| 卧室A | 15.1 | 3.3 | 4.7 | 优秀 |
| 卧室B | 10 | 3 | 3.4 | 良好 |
| 厨房 | 9.4 | 1.8 | 5.2 | 极佳 |
| 卫生间 | 6.7 | 4.3 | 1.7 | 良好 |
| 阳台 | 4.6 | 3.6 | 1.4 | 良好 |
*户型数据为人工测量或估算值,可能于实际情况存在误差,仅供参考,实际数据以开发商发布为准。
通风测评良好8.9


- 开窗

- 风向
*施工有误差,交付时无法与户型图一致,仅供参考,最终以开发商合同为准
采光测评良好8.9采光测评的指标
| 采光性 | 评价 | |
|---|---|---|
| 卧室A | 优秀 | |
| 卧室B | 极佳 | |
| 厨房 | 良好 | |
| 阳台 | 极佳 |
*户型数据为人工测量或估算值,可能于实际情况存在误差,仅供参考,实际数据以开发商发布为准。
房屋细节
客厅 30.2㎡ | 面宽6.6m | 进深6.4m
- 空间豪华豪华客厅设计典雅大气,空间感与舒适感并重,让人在其中感受到家的尊贵与温馨。
- 有阳台客厅与阳台相连,提供了一个养花弄草的好地方,让居家生活更加绿意盎然。
卧室A 15.1㎡ | 面宽3.3m | 进深4.7m
空间可容纳
床
1.8m*2m
床头柜X2
0.4m宽
衣柜
0.6m深
- 空间较大宽敞舒适的卧室A,是您享受品质生活的理想选择。
优秀卧室A朝向南方,光线明亮,通风流畅,为您的私密空间增添一份自然的宁静与舒适,无论是短暂休息还是深度睡眠,都能感受到阳光的温馨呵护。- 有飘窗卧室A的飘窗设计独特,不仅提升室内采光效果,还为您带来一份优雅的居住氛围。
卧室B 10㎡ | 面宽3m | 进深3.4m
空间可容纳
床
1.8m*2m
床头柜X2
0.4m宽
衣柜
0.6m深
- 空间适中虽然卧室B面积不足,但设计却独具匠心,布局合理,让每一寸空间都发挥出其最大的价值,为您带来舒适的休憩体验。
优秀朝南的卧室B采光优良,通风效果出色,为您的私人领地带来一份自然的惬意与舒适,无论是午后小憩还是夜晚安睡,都能沐浴在温暖的阳光中。- 有窗卧室B窗户通透,让光线与空气自由流通,为您打造一个明亮舒适的休息空间,感受自然的呵护。
厨房 9.4㎡ | 面宽1.8m | 进深5.2m
- 空间较大宽敞的厨房空间,让多人同时操作更加自如,家电摆放有序,打造舒适烹饪环境。
- 明厨厨房设计巧妙,窗户明亮通透,让烹饪时光充满自然光,享受健康美食的同时,也感受生活的美好。
卫生间 6.7㎡ | 面宽4.3m | 进深1.7m
- 空间适中卫生间虽小,但空间布局合理,既实用又美观,让您的洗浴体验更加舒适惬意。
对此楼盘感兴趣的人还浏览了
呼和浩特碧桂园星耀
6200元/平方米
回民-回民区万达用户评分9.51分
在售品牌地产地铁沿线
慧谷·上品
115万元/套起
回民-回民区万达用户评分9.42分
在售花园洋房水景地产宜居生态地产教育地产改善优选
祥生城
71万元/套起
回民-回民区万达用户评分9.29分
在售宜居生态地产
查看全部





优秀










