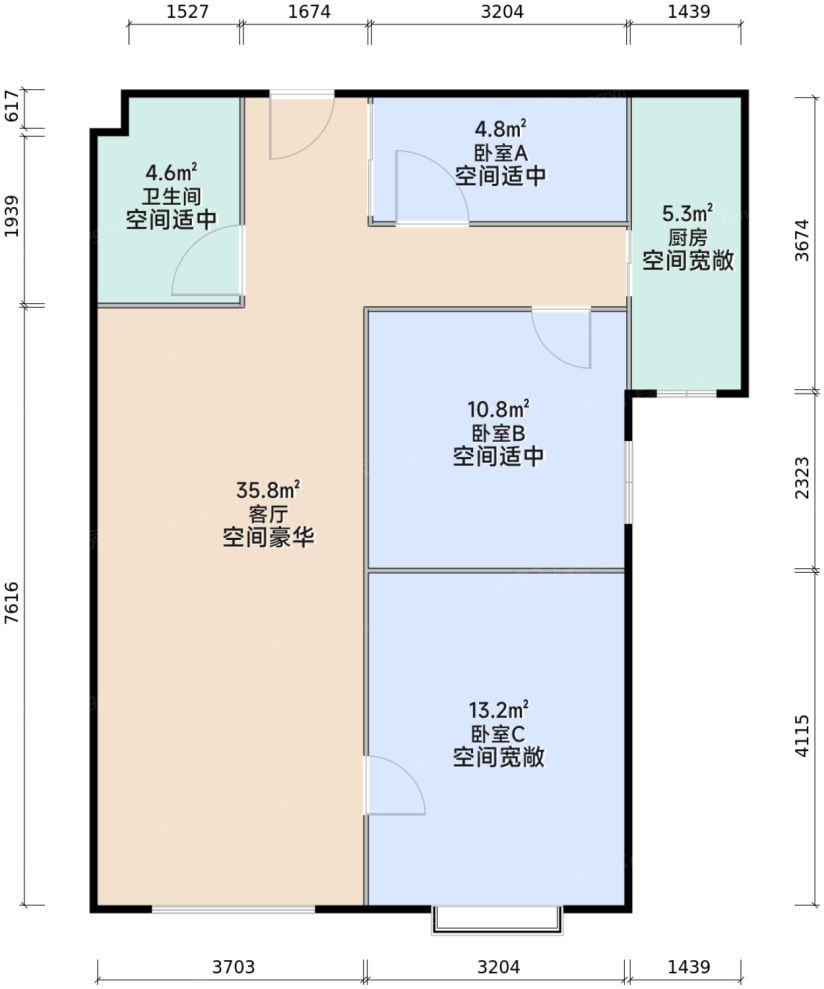
3室1厅1卫1厨
售完恒泰盛都3居室户型图 | 建面:101.62㎡ | 朝向:朝南
- 所属楼盘
价格待定算月供
实际价格以售楼处为准,户型图为开发商提供,具体以实际交房标准为准
微信打开
查看完整户型评测9.1
户型评分
- 基础测评9.5
- 空间测评8.9
- 采光通风8.8
户型信息
- 1个飘窗
- 明厨
- 户型方正
- 明厨
- 客厅朝南
- 主卧朝南
空间测评良好8.9空间测评指标


- 面宽

- 进深
*施工有误差,交付时无法与户型图一致,仅供参考,最终以开发商合同为准
| 面积(㎡) | 面宽(m) | 进深(m) | 评价 | |
|---|---|---|---|---|
| 客厅 | 35.8 | 7 | 10.7 | 极佳 |
| 卧室A | 4.8 | 3.4 | 1.7 | 良好 |
| 卧室B | 10.8 | 3.4 | 3.4 | 良好 |
| 卧室C | 13.2 | 3.4 | 4.4 | 优秀 |
| 厨房 | 5.3 | 1.5 | 3.9 | 优秀 |
| 卫生间 | 4.6 | 1.9 | 2.8 | 良好 |
*户型数据为人工测量或估算值,可能于实际情况存在误差,仅供参考,实际数据以开发商发布为准。
通风测评良好8.8


- 开窗

- 风向
*施工有误差,交付时无法与户型图一致,仅供参考,最终以开发商合同为准
采光测评良好8.8采光测评的指标
| 采光性 | 评价 | |
|---|---|---|
| 客厅 | 普通 | |
| 卧室B | 优秀 | |
| 卧室C | 极佳 | |
| 厨房 | 极佳 |
*户型数据为人工测量或估算值,可能于实际情况存在误差,仅供参考,实际数据以开发商发布为准。
房屋细节
客厅 35.8㎡ | 面宽7m | 进深10.7m
- 空间豪华豪华客厅设计典雅大气,空间感与舒适感并重,让人在其中感受到家的尊贵与温馨。
优秀朝南的客厅,宽敞明亮,阳光倾洒,为生活带来无尽的温馨与美好,是您感受家庭温暖、享受惬意生活的理想之选。
优秀客厅的落地窗如同画布,将四季变换的美景呈现在眼前,让您在每个时刻都能感受到大自然的馈赠。
卧室A 4.8㎡ | 面宽3.4m | 进深1.7m
- 空间适中精致小巧的卧室A,虽无过多空间,但设计合理,空间利用率极高,让您在有限的空间里享受无限的舒适与惬意。
卧室B 10.8㎡ | 面宽3.4m | 进深3.4m
空间可容纳
床
1.8m*2m
床头柜X2
0.4m宽
衣柜
0.6m深
- 空间适中尽管卧室B面积有限,但设计师却巧妙地将每一寸空间都利用起来,打造出一个既实用又舒适的休憩之所。
- 朝东卧室B朝向东方,每日清晨都能感受到阳光的温暖拥抱,为您带来满满的活力,让您在新的一天里充满活力与希望。
- 有窗卧室B窗户明亮宜人,让您在舒适的床上就能欣赏到窗外的美景,感受生活的美好与宁静。
卧室C 13.2㎡ | 面宽3.4m | 进深4.4m
空间可容纳
床
1.8m*2m
床头柜X2
0.4m宽
衣柜
0.6m深
- 空间较大卧室C空间足够大,让您在布置家具时更加灵活自如。
优秀卧室C朝南,光线充裕,空气流通,为您的私密领地增添一抹自然的温馨,无论是午后休憩还是夜晚入梦,都能感受到阳光的温馨陪伴。- 有飘窗卧室C飘窗设计独特,不仅拓宽了视野,还为您打造一个私密的放松角落,享受片刻宁静。
厨房 5.3㎡ | 面宽1.5m | 进深3.9m
- 空间较大宽敞的厨房空间,让多人同时操作更加自如,家电摆放有序,打造舒适烹饪环境。
- 明厨宽敞的厨房窗户,让自然光尽情洒落,烹饪时仿佛置身于大自然之中,享受家的宁静与美好。
卫生间 4.6㎡ | 面宽1.9m | 进深2.8m
- 空间适中卫生间虽小,但空间布局合理,既实用又美观,让您的洗浴体验更加舒适惬意。
对此楼盘感兴趣的人还浏览了
万锦宽阅
11000元/平方米
玉泉-昭君路用户评分9.04分
在售
万锦.云锦
10000元/平方米
玉泉-昭君路用户评分9.78分
待售小户型景观居所水景地产山景地产创意地产地铁沿线
金地名京(商业)
18500元/平方米
玉泉-昭君路用户评分0.0分
在售
查看全部





优秀
















