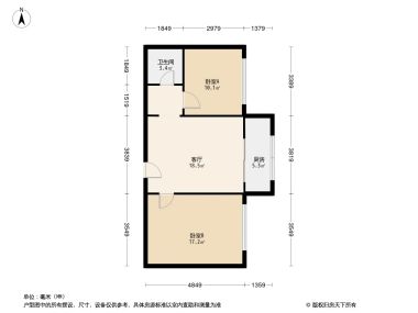
2室1厅1卫1厨
售完昌盛小区2居室户型图 | 建面:66.7㎡ | 朝向:东西通透
- 所属楼盘
价格待定算月供
实际价格以售楼处为准,户型图为开发商提供,具体以实际交房标准为准
微信打开
查看完整户型评测8.9
户型评分
- 基础测评9
- 空间测评8.5
- 采光通风9.3
户型信息
- 1个明卫
- 明厨
- 户型方正
- 明卫
- 明厨
- 主卧朝南
空间测评良好8.5空间测评指标


- 面宽

- 进深
*施工有误差,交付时无法与户型图一致,仅供参考,最终以开发商合同为准
| 面积(㎡) | 面宽(m) | 进深(m) | 评价 | |
|---|---|---|---|---|
| 客厅 | 15.4 | 3.3 | 4.7 | 良好 |
| 卧室A | 11.1 | 2.7 | 4.2 | 良好 |
| 卧室B | 13.5 | 2.7 | 5.1 | 良好 |
| 厨房 | 5.8 | 3.3 | 1.7 | 良好 |
| 卫生间 | 2.4 | 1.5 | 2.2 | 良好 |
*户型数据为人工测量或估算值,可能于实际情况存在误差,仅供参考,实际数据以开发商发布为准。
通风测评优秀9.3


- 开窗

- 风向
*施工有误差,交付时无法与户型图一致,仅供参考,最终以开发商合同为准
采光测评优秀9.3采光测评的指标
| 采光性 | 评价 | |
|---|---|---|
| 卧室A | 极佳 | |
| 卧室B | 良好 | |
| 厨房 | 极佳 | |
| 卫生间 | 极佳 |
*户型数据为人工测量或估算值,可能于实际情况存在误差,仅供参考,实际数据以开发商发布为准。
房屋细节
客厅 15.4㎡ | 面宽3.3m | 进深4.7m
- 紧凑实用客厅虽小,却承载着生活的美学。每一寸空间都被高效利用,从家具摆放到色彩搭配,都透露出主人对生活的热爱和品味。在这里,小空间也能拥有大格局的舒适感。
卧室A 11.1㎡ | 面宽2.7m | 进深4.2m
空间可容纳
床
1.8m*2m
床头柜X2
0.4m宽
衣柜
0.6m深
- 空间适中尽管卧室A面积有限,但设计师却巧妙地将每一寸空间都利用起来,打造出一个既实用又舒适的休憩之所。
- 有窗卧室A窗户明亮通透,将室外的清新空气与阳光引入室内,让您在此享受宁静与舒适的时光。
卧室B 13.5㎡ | 面宽2.7m | 进深5.1m
空间可容纳
床
1.8m*2m
床头柜X2
0.4m宽
衣柜
0.6m深
- 空间适中精致小巧的卧室B,设计得十分精致,每一寸空间都得到了合理的利用,让您在繁忙的生活中拥有一个宁静的休憩之所。
优秀朝南设计的卧室B,光线明亮而宜人,通风流畅,为您的私人空间带来一份自然的惬意与宁静,无论是短暂休息还是深度睡眠,都能享受到阳光的温暖照耀。- 有窗卧室B窗户敞亮,将外界的美景引入室内,让您每日清晨都能沐浴在自然的阳光下,感受生活的美好。
厨房 5.8㎡ | 面宽3.3m | 进深1.7m
- 空间适中厨房空间布局合理,既方便日常烹饪,又能保持空间的整洁与美观。
- 明厨厨房窗户宽敞明亮,让阳光洒满整个空间,烹饪时仿佛置身于大自然之中,享受清新自然的味道。
卫生间 2.4㎡ | 面宽1.5m | 进深2.2m
- 空间适中卫生间设计精巧,空间利用恰到好处,虽小却五脏俱全,满足日常所需。
- 明卫卫生间的窗户设计独特,既保证了通风效果,又让卫浴空间变得更加明亮宽敞。
对此楼盘感兴趣的人还浏览了
中铁诺德龙湾
10000元/平方米
回民-海西路用户评分9.31分
在售低密居所景观居所
回民区小府路以东、14米规划路以北
价格待定
回民-海西路用户评分0.0分
待售
回民区厂汉板路以东、成吉思汗西街以南
价格待定
回民-海西路用户评分0.0分
待售
查看全部





优秀





















