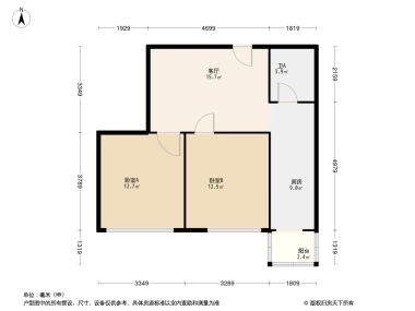
1室1厅1卫1厨
售完友谊北区1居室户型图 | 建面:47㎡ | 朝向:朝南
- 所属楼盘
价格待定算月供
实际价格以售楼处为准,户型图为开发商提供,具体以实际交房标准为准
微信打开
查看完整户型评测8.4
户型评分
- 基础测评8
- 空间测评8.6
- 采光通风8.8
户型信息
- 1个阳台
- 户型方正
- 主卧朝南
空间测评良好8.6空间测评指标


- 面宽

- 进深
*施工有误差,交付时无法与户型图一致,仅供参考,最终以开发商合同为准
| 面积(㎡) | 面宽(m) | 进深(m) | 评价 | |
|---|---|---|---|---|
| 客厅 | 12.3 | 3.7 | 3.3 | 良好 |
| 卧室 | 10.8 | 2.8 | 3.8 | 良好 |
| 厨房 | 6.2 | 1.7 | 3.8 | 优秀 |
| 卫生间 | 2.6 | 1.8 | 1.7 | 良好 |
| 阳台 | 2.5 | 2.2 | 1.4 | 良好 |
| 储物间 | 2.8 | 1.8 | 1.7 | 良好 |
*户型数据为人工测量或估算值,可能于实际情况存在误差,仅供参考,实际数据以开发商发布为准。
通风测评良好8.8


- 开窗

- 风向
*施工有误差,交付时无法与户型图一致,仅供参考,最终以开发商合同为准
采光测评良好8.8采光测评的指标
| 采光性 | 评价 | |
|---|---|---|
| 客厅 | 普通 | |
| 卧室 | 极佳 | |
| 阳台 | 极佳 |
*户型数据为人工测量或估算值,可能于实际情况存在误差,仅供参考,实际数据以开发商发布为准。
房屋细节
客厅 12.3㎡ | 面宽3.7m | 进深3.3m
- 紧凑实用这个客厅虽然不大,但却展现了小巧精致的特点。设计上紧凑实用,每一处布局都经过精心考虑。这个小空间给人一种舒适温馨的感觉。
- 舒适客厅宽敞舒适,窗户设计独具匠心,自然光透过窗户洒满空间,无论是观赏风景还是享受独处时光,都能感受到宁静与满足。
卧室 10.8㎡ | 面宽2.8m | 进深3.8m
空间可容纳
床
1.8m*2m
床头柜X2
0.4m宽
衣柜
0.6m深
- 空间适中卧室设计得十分巧妙,虽然面积不大,但每一寸都被精心打造,为您打造出一个既温馨又舒适的休憩之所。
优秀卧室朝南,光线柔和而通透,通风顺畅,为您的私密空间增添一份自然的舒适与宁静,无论是午后小憩还是夜晚安睡,都能享受到阳光的温馨照耀。- 有窗卧室窗户设计独特,让室内的光线与室外的景色完美融合,为您营造一个既温馨又舒适的生活氛围。
- 次卧有阳台阳台与卧室相连,让您的居住体验更上一层楼。在这里,您可以尽情欣赏四季美景,感受大自然的馈赠,享受生活的无限美好。
厨房 6.2㎡ | 面宽1.7m | 进深3.8m
- 空间较大厨房面积宽敞,多人协作料理更加高效,同时满足家电摆放需求,让生活更美好。
- 厨房带阳台厨房有个小阳台,给杂物一个收纳空间。
卫生间 2.6㎡ | 面宽1.8m | 进深1.7m
- 空间适中卫生间虽小,但空间布局合理,既实用又美观,让您的洗浴体验更加舒适惬意。
2室2厅1卫售完9.2“优秀”
价格待定74.00㎡
2室1厅1卫售完9.3“优秀”
价格待定58.00㎡
2室1厅1卫售完9.3“优秀”
价格待定63.48㎡
2室1厅1卫售完9.4“优秀”
价格待定64.74㎡
2室1厅1卫售完9.4“优秀”
价格待定61.40㎡
2室1厅1卫售完9.4“优秀”
价格待定60.71㎡
2室1厅1卫售完9.3“优秀”
价格待定61.00㎡
2室1厅1卫售完9.4“优秀”
价格待定65.00㎡
2室1厅1卫售完9.2“优秀”
价格待定57.68㎡
2室1厅1卫售完9.5“极佳”
价格待定64.00㎡
2室1厅1卫售完9.2“优秀”
价格待定56.50㎡
2室1厅1卫售完9.2“优秀”
价格待定56.50㎡
2室2厅1卫售完9.4“优秀”
价格待定84.92㎡
2室1厅1卫售完9.1“优秀”
价格待定60.00㎡
2室1厅1卫售完9.3“优秀”
价格待定61.28㎡
对此楼盘感兴趣的人还浏览了
查看全部





优秀
















