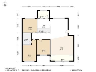
2室1厅1卫1厨
售完万豪长隆湾2居室户型图 | 建面:104㎡ | 朝向:南北通透
- 所属楼盘
价格待定算月供
实际价格以售楼处为准,户型图为开发商提供,具体以实际交房标准为准
微信打开
查看完整户型评测9
户型评分
- 基础测评8.5
- 空间测评9.2
- 采光通风9.3
户型信息
- 1个阳台
- 明厨
- 大面宽阳台
- 户型方正
- 明厨
- 主卧朝南
空间测评优秀9.2空间测评指标


- 面宽

- 进深
*施工有误差,交付时无法与户型图一致,仅供参考,最终以开发商合同为准
| 面积(㎡) | 面宽(m) | 进深(m) | 评价 | |
|---|---|---|---|---|
| 客厅 | 38.3 | 5.4 | 9.7 | 极佳 |
| 卧室A | 13.8 | 3.3 | 4.3 | 优秀 |
| 卧室B | 16.6 | 3.2 | 5.2 | 优秀 |
| 厨房 | 9.9 | 2.9 | 3.6 | 极佳 |
| 卫生间 | 4.9 | 2 | 2.5 | 良好 |
| 阳台 | 7 | 4.2 | 1.7 | 良好 |
*户型数据为人工测量或估算值,可能于实际情况存在误差,仅供参考,实际数据以开发商发布为准。
通风测评优秀9.3


- 开窗

- 风向
*施工有误差,交付时无法与户型图一致,仅供参考,最终以开发商合同为准
采光测评优秀9.3采光测评的指标
| 采光性 | 评价 | |
|---|---|---|
| 卧室A | 极佳 | |
| 卧室B | 极佳 | |
| 厨房 | 极佳 | |
| 阳台 | 极佳 |
*户型数据为人工测量或估算值,可能于实际情况存在误差,仅供参考,实际数据以开发商发布为准。
房屋细节
客厅 38.3㎡ | 面宽5.4m | 进深9.7m
- 空间豪华客厅宽敞明亮,豪华而不失简约,让人在享受舒适生活的同时,也能感受到品味的提升。
- 有阳台阳台与客厅融为一体,让室内空间更显宽敞,同时也增添了一份户外的清新感。
卧室A 13.8㎡ | 面宽3.3m | 进深4.3m
空间可容纳
床
1.8m*2m
床头柜X2
0.4m宽
衣柜
0.6m深
- 空间较大卧室A宽敞舒适,空间足够大,让您尽享惬意的生活时光。
- 有窗卧室A的窗户,是连接室内与自然的桥梁,让您在休息时也能感受到大自然的呼吸与节奏。
卧室B 16.6㎡ | 面宽3.2m | 进深5.2m
空间可容纳
床
1.8m*2m
床头柜X2
0.4m宽
衣柜
0.6m深
- 空间较大卧室B空间开阔,无论是休息还是储物,都能满足您的需求。
优秀朝南设计的卧室B,明亮宽敞,通风效果极佳,为您的私人空间带来一份自然的舒适感,无论是小憩时光还是安静夜晚,都能享受阳光的温暖拥抱。- 有窗卧室B的窗户,如同眼睛般明亮,让您在舒适的床上,就能欣赏到窗外的美丽景色,感受生活的无限美好。
厨房 9.9㎡ | 面宽2.9m | 进深3.6m
- 空间较大厨房面积宽敞,多人协作料理更加轻松,同时容纳冰箱等家电,打造温馨厨房。
- 明厨明亮的窗户为厨房增添了不少生气,让烹饪过程充满阳光与活力,享受家的温馨与快乐。
卫生间 4.9㎡ | 面宽2m | 进深2.5m
- 空间适中虽面积不大,但卫生间布局合理,空间适中,满足您日常清洁和洗漱的需求。
3室2厅1卫售完9.3“优秀”
价格待定129.50㎡
3室1厅2卫售完9.2“优秀”
价格待定146.00㎡
3室2厅2卫售完9.5“极佳”
价格待定118.53㎡
3室1厅2卫售完9.3“优秀”
价格待定143.00㎡
3室2厅1卫售完9.5“极佳”
价格待定118.80㎡
3室2厅2卫售完9“优秀”
价格待定146.12㎡
3室2厅2卫售完9.1“优秀”
价格待定144.00㎡
3室1厅1卫售完9.1“优秀”
价格待定97.13㎡
3室1厅1卫售完9.6“极佳”
价格待定112.02㎡
3室2厅2卫售完9“优秀”
0.00145.97㎡
3室2厅2卫售完10“极佳”
0.00125.22㎡
3室2厅2卫售完9“优秀”
价格待定138.20㎡
3室2厅2卫售完10“极佳”
价格待定127.60㎡
对此楼盘感兴趣的人还浏览了
中实·翡翠书院
19000元/平方米
赛罕-赛罕区政府用户评分9.41分
在售改善优选大平层
柏悦府 ·理想小墅
13000元/平方米
赛罕-赛罕区政府用户评分9.45分
在售刚需必看
秋实璟熙臺
11500元/平方米
赛罕-赛罕区政府用户评分9.42分
在售
查看全部





优秀



























