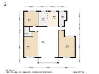
3室2厅1卫1厨
售完印象江南3居室户型图 | 建面:85㎡ | 朝向:南北通透
- 所属楼盘
价格待定算月供
实际价格以售楼处为准,户型图为开发商提供,具体以实际交房标准为准
微信打开
查看完整户型评测8.9
户型评分
- 基础测评9
- 空间测评8.7
- 采光通风9
户型信息
- 明厨
- 明厨
空间测评良好8.7空间测评指标

*施工有误差,交付时无法与户型图一致,仅供参考,最终以开发商合同为准
- 客厅:良好
- 餐厅:良好
- 卧室A:良好
- 卧室B:良好
- 卧室C:良好
- 厨房:极佳
- 卫生间:良好
通风测评优秀9


- 开窗

- 风向
*施工有误差,交付时无法与户型图一致,仅供参考,最终以开发商合同为准
采光测评优秀9采光测评的指标
| 采光性 | 评价 | |
|---|---|---|
| 卧室A | 极佳 | |
| 卧室B | 极佳 | |
| 卧室C | 极佳 | |
| 厨房 | 优秀 |
*户型数据为人工测量或估算值,可能于实际情况存在误差,仅供参考,实际数据以开发商发布为准。
房屋细节
客厅
- 紧凑实用虽然客厅面积有限,但展现出小巧精致的魅力。紧凑而实用的设计风格使得空间得以充分利用。这个小空间充满了家的温暖和舒适。
卧室A
空间可容纳
床
1.2m*2m
床头柜X1
0.4m宽
- 空间适中卧室A设计得十分巧妙,虽然面积不大,但每一寸都被精心打造,为您打造出一个既温馨又舒适的休憩之所。
优秀朝南的卧室A,阳光倾洒,通风顺畅,为您打造一处自然舒适的私密空间,无论是短暂休憩还是夜晚入眠,都能享受阳光的温柔照耀。- 有窗卧室A窗户设计巧妙,将自然光引入室内,营造温馨氛围,让您在此感受家的温暖与舒适。
卧室B
空间可容纳
床
1.8m*2m
床头柜X2
0.4m宽
衣柜
0.6m深
- 空间适中卧室B虽小,却设计得十分用心,每一寸空间都被充分利用,为您打造出一个既舒适又温馨的休憩角落。
优秀朝南的卧室B采光优良,通风效果出色,为您的私人领地带来一份自然的惬意与舒适,无论是午后小憩还是夜晚安睡,都能沐浴在温暖的阳光中。- 有窗卧室B的窗户,是连接室内与自然的桥梁,让您在休息时也能感受到大自然的呼吸与节奏。
卧室C
空间可容纳
床
1.8m*2m
床头柜X2
0.4m宽
衣柜
0.6m深
- 空间适中卧室C虽小,却设计得十分用心,每一寸空间都被充分利用,为您打造出一个既舒适又温馨的休憩角落。
优秀朝南的卧室C光线充足,通风条件优越,为您打造一处自然舒适的私密天地,无论是休闲午后还是宁静夜晚,都能沐浴在阳光的温暖之中。- 有窗卧室C的窗户,如同一扇通往自然的门,让您随时都能感受到室外的美景与气息。
厨房
- 空间较大厨房面积宽敞,多人协作料理更加高效,同时满足家电摆放需求,让生活更美好。
- 明厨厨房设计注重通风采光,窗户设计合理,让烹饪时光更加明亮舒适,增添家的幸福感。
卫生间
- 空间适中虽面积有限,但卫生间设计独具匠心,空间利用高效,让日常清洁变得简单方便。
对此楼盘感兴趣的人还浏览了
查看全部





优秀































