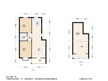
2室1厅1卫1厨
售完俪城2居室户型图 | 建面:74.22㎡ | 朝向:朝南
- 所属楼盘
价格待定算月供
实际价格以售楼处为准,户型图为开发商提供,具体以实际交房标准为准
微信打开
查看完整户型评测9.2
户型评分
- 基础测评9.5
- 空间测评8.8
户型信息
- 明厨
- 户型方正
- 明厨
空间测评良好8.8空间测评指标


- 面宽

- 进深
*施工有误差,交付时无法与户型图一致,仅供参考,最终以开发商合同为准
| 面积(㎡) | 面宽(m) | 进深(m) | 评价 | |
|---|---|---|---|---|
| 客厅 | 0 | 4.8 | 5.4 | 极佳 |
| 餐厅 | 0 | 3.6 | 3.4 | 良好 |
| 主卧 | 0 | 3.3 | 3.2 | 良好 |
| 次卧 | 0 | 3.3 | 3.4 | 良好 |
| 厨房 | 0 | 2 | 2.4 | 良好 |
*户型数据为人工测量或估算值,可能于实际情况存在误差,仅供参考,实际数据以开发商发布为准。
房屋细节
客厅 | 面宽4.8m | 进深5.4m
- 空间豪华豪华客厅,每一处细节都透露出高贵与典雅,让人流连忘返。
主卧 | 面宽3.3m | 进深3.2m
- 紧凑实用主卧虽小,却能满足您的所有需求,紧凑而实用的设计让人赞不绝口。
次卧 | 面宽3.3m | 进深3.4m
- 空间适中尽管次卧面积有限,但设计师巧妙地利用每一寸空间,布局合理,使这个小小的角落成为您放松身心的温馨之地。
- 有窗次卧窗户明亮,让阳光洒满整个空间,为您带来满满的能量与活力,让您每天都能充满活力地迎接新的一天。
厨房 | 面宽2m | 进深2.4m
- 空间适中适中的厨房面积,既满足日常烹饪需求,又能让厨房保持整洁有序。
- 明厨明亮通透的厨房窗户,让自然光与室内空间完美融合,营造出一种健康、舒适的烹饪环境。
2室1厅1卫售完9.5“极佳”
价格待定90.00㎡
2室1厅1卫售完9.3“优秀”
价格待定76.00㎡
2室2厅1卫售完10“极佳”
价格待定89.96㎡
2室1厅2卫售完9.1“优秀”
价格待定99.00㎡
2室1厅1卫售完9.2“优秀”
价格待定89.11㎡
2室1厅1卫售完9.2“优秀”
价格待定73.36㎡
2室1厅1卫售完9.5“极佳”
价格待定77.49㎡
2室1厅1卫售完9.4“优秀”
价格待定85.26㎡
2室1厅1卫售完9.2“优秀”
价格待定83.00㎡
2室2厅1卫售完10“极佳”
价格待定83.00㎡
2室1厅1卫售完9.1“优秀”
价格待定66.00㎡
2室1厅1卫售完8.7“良好”
价格待定111.30㎡
2室2厅2卫售完9.4“优秀”
价格待定99.24㎡
2室2厅1卫售完9.5“极佳”
价格待定89.23㎡
2室2厅1卫售完9.6“极佳”
价格待定84.12㎡
2室1厅1卫售完9.5“极佳”
价格待定74.00㎡
2室1厅1卫售完9.4“优秀”
价格待定75.00㎡
2室2厅2卫售完7“普通”
7000.00元/平方米103.50㎡
2室2厅2卫售完7“普通”
7000.00元/平方米104.90㎡
2室2厅2卫售完10“极佳”
7000.00元/平方米99.40㎡
2室1厅1卫售完10“极佳”
7000.00元/平方米70.80㎡
2室2厅1卫售完10“极佳”
7000.00元/平方米89.80㎡
2室2厅1卫售完10“极佳”
7000.00元/平方米89.60㎡
2室2厅1卫售完10“极佳”
7000.00元/平方米83.00㎡
对此楼盘感兴趣的人还浏览了
查看全部








































