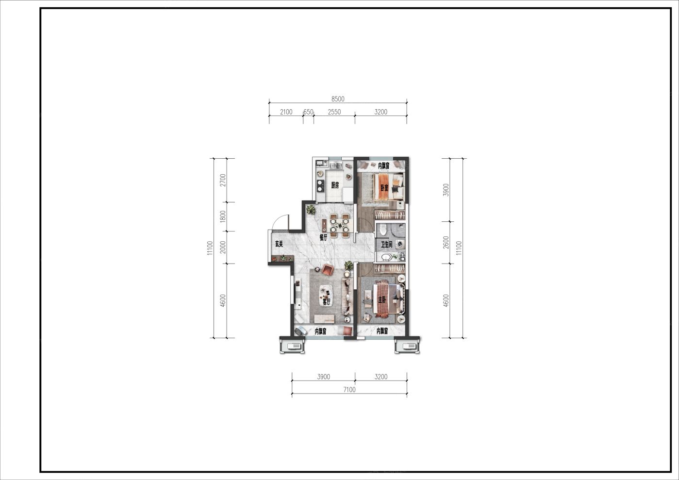
2室1厅1卫1厨
待售89㎡ | 建面:89-89.5㎡ | 朝向:
- 所属楼盘
约94.34万元/套算月供
实际价格以售楼处为准,户型图为开发商提供,具体以实际交房标准为准
微信打开
查看完整户型评测9.4
户型评分
- 基础测评10
- 空间测评8.8
- 采光通风9.2
户型信息
- 明厨
空间测评良好8.8空间测评指标


- 面宽

- 进深
*施工有误差,交付时无法与户型图一致,仅供参考,最终以开发商合同为准
| 面积(㎡) | 面宽(m) | 进深(m) | 评价 | |
|---|---|---|---|---|
| 客厅 | 23.7 | 5.1 | 6.2 | 极佳 |
| 餐厅 | 7.3 | 3.3 | 2.2 | 良好 |
| 卧室A | 11.1 | 3 | 4.1 | 良好 |
| 卧室B | 12.2 | 3 | 4.1 | 良好 |
| 厨房 | 6 | 2.6 | 2.4 | 良好 |
| 卫生间 | 4.8 | 1.8 | 2.7 | 良好 |
*户型数据为人工测量或估算值,可能于实际情况存在误差,仅供参考,实际数据以开发商发布为准。
通风测评优秀9.2


- 开窗

- 风向
*施工有误差,交付时无法与户型图一致,仅供参考,最终以开发商合同为准
采光测评优秀9.2采光测评的指标
| 采光性 | 评价 | |
|---|---|---|
| 客厅 | 优秀 | |
| 卧室A | 极佳 | |
| 卧室B | 极佳 | |
| 厨房 | 极佳 |
*户型数据为人工测量或估算值,可能于实际情况存在误差,仅供参考,实际数据以开发商发布为准。
房屋细节
客厅 23.7㎡ | 面宽5.1m | 进深6.2m
- 空间豪华豪华客厅的每一处细节都经过精心设计,空间布局合理,让人在其中感受到尊贵与舒适的完美融合。
优秀朝南的客厅,宽敞明亮,阳光倾洒,为生活带来无尽的温馨与美好,是您感受家庭温暖、享受惬意生活的理想之选。- 舒适客厅宽敞通透,窗户巧妙布局,让阳光洒满每个角落,无论是品茗论道还是悠闲小憩,都能在此感受自然与宁静的交融。
卧室A 11.1㎡ | 面宽3m | 进深4.1m
空间可容纳
床
1.8m*2m
床头柜X2
0.4m宽
衣柜
0.6m深
- 空间适中精致小巧的卧室A,虽无过多空间,但设计合理,空间利用率极高,让您在有限的空间里享受无限的舒适与惬意。
- 有窗卧室A设有明亮窗户,窗外绿意盎然,让您在休息时刻也能尽享大自然的馈赠,舒缓身心。
卧室B 12.2㎡ | 面宽3m | 进深4.1m
空间可容纳
床
1.8m*2m
床头柜X2
0.4m宽
衣柜
0.6m深
- 空间适中尽管卧室B面积有限,但设计师却巧妙地将每一寸空间都利用起来,打造出一个精致而舒适的休憩环境。
优秀卧室B朝南,光线充裕,空气流通,为您的私密领地增添一抹自然的温馨,无论是午后休憩还是夜晚入梦,都能感受到阳光的温馨陪伴。- 有窗卧室B的窗户,像一幅流动的画卷,展现着四季的变换,让您在每个清晨与黄昏,都能与自然亲密相拥。
厨房 6㎡ | 面宽2.6m | 进深2.4m
- 空间适中厨房面积适中,既能保证操作的便捷性,又能营造出温馨舒适的烹饪环境。
- 明厨厨房窗户宽敞明亮,让阳光洒满整个空间,烹饪时仿佛置身于大自然之中,享受清新自然的味道。
卫生间 4.8㎡ | 面宽1.8m | 进深2.7m
- 空间适中卫生间虽小,但空间布局合理,实用性强,为您打造便捷的洗漱空间。
4001891623 转 623493
安全通话隐藏真实号码,致电售楼处了解更多优惠信息
优惠活动
查看更多优惠
置业顾问(1)
- 免费咨询
- 专业服务
- 区域解读
- 户型分析
对此楼盘感兴趣的人还浏览了

中海臻如府
15000元/平方米
赛罕用户评分9.44分
售完品牌地产改善优选

青城·悦
11200元/平方米
新城-长乐宫用户评分9.37分
在售装修交付地铁沿线

城南万达广场
96万元/套起
玉泉用户评分9.33分
在售国际化社区创意地产公园地产科技住宅地铁沿线
查看全部





优秀





