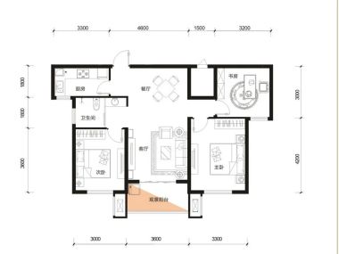
3室1厅1卫1厨
售完当代国际3居室户型图 | 建面:107.85㎡ | 朝向:朝南
- 所属楼盘
价格待定算月供
实际价格以售楼处为准,户型图为开发商提供,具体以实际交房标准为准
微信打开
查看完整户型评测9.3
户型评分
- 基础测评9.5
- 空间测评8.8
- 采光通风9.5
户型信息
- 1个明卫
- 明厨
- 明厨
- 明卫
- 客厅朝南
- 全明格局
- 双卧朝南
空间测评良好8.8空间测评指标


- 面宽

- 进深
*施工有误差,交付时无法与户型图一致,仅供参考,最终以开发商合同为准
| 面积(㎡) | 面宽(m) | 进深(m) | 评价 | |
|---|---|---|---|---|
| 客厅 | 37.6 | 8.2 | 9.7 | 极佳 |
| 卧室A | 8.3 | 2.5 | 3.3 | 良好 |
| 卧室B | 11.6 | 3.3 | 3.6 | 良好 |
| 卧室C | 12.1 | 3 | 4.1 | 良好 |
| 厨房 | 4.8 | 1.8 | 2.9 | 良好 |
| 卫生间 | 4.3 | 1.5 | 2.9 | 良好 |
*户型数据为人工测量或估算值,可能于实际情况存在误差,仅供参考,实际数据以开发商发布为准。
通风测评极佳9.5


- 开窗

- 风向
*施工有误差,交付时无法与户型图一致,仅供参考,最终以开发商合同为准
采光测评极佳9.5采光测评的指标
| 采光性 | 评价 | |
|---|---|---|
| 客厅 | 极佳 | |
| 卧室A | 极佳 | |
| 卧室B | 极佳 | |
| 卧室C | 极佳 | |
| 厨房 | 良好 | |
| 卫生间 | 良好 |
*户型数据为人工测量或估算值,可能于实际情况存在误差,仅供参考,实际数据以开发商发布为准。
房屋细节
客厅 37.6㎡ | 面宽8.2m | 进深9.7m
- 空间豪华客厅空间宽敞明亮,豪华感扑面而来,彰显出居住者的非凡品味。
- 舒适客厅明亮宽敞,窗户设计巧妙,让自然光与室内空气完美交融,无论是休息放松还是观赏窗外景色,都能在此找到心灵的归宿。
优秀客厅的落地窗如同画布,将四季变换的美景呈现在眼前,让您在每个时刻都能感受到大自然的馈赠。
卧室A 8.3㎡ | 面宽2.5m | 进深3.3m
空间可容纳
床
1.2m*2m
床头柜X1
0.4m宽
- 空间适中精致小巧的卧室A,虽然面积不足10平米,但设计巧妙,布局合理,每一寸空间都得到了充分利用,为您打造了一个温馨而舒适的休憩角落
- 有窗卧室A窗户明亮宜人,让您在舒适的床上就能欣赏到窗外的美景,感受生活的美好与宁静。
卧室B 11.6㎡ | 面宽3.3m | 进深3.6m
空间可容纳
床
1.8m*2m
床头柜X2
0.4m宽
衣柜
0.6m深
- 空间适中卧室B虽小,却设计得十分用心,每一寸空间都被充分利用,为您打造出一个既舒适又温馨的休憩角落。
优秀朝南设计的卧室B,光线明亮而宜人,通风流畅,为您的私人空间带来一份自然的惬意与宁静,无论是短暂休息还是深度睡眠,都能享受到阳光的温暖照耀。
优秀透过卧室B的落地窗,您可以欣赏到四季变换的美景,感受大自然的神奇与美丽。
卧室C 12.1㎡ | 面宽3m | 进深4.1m
空间可容纳
床
1.8m*2m
床头柜X2
0.4m宽
衣柜
0.6m深
- 空间适中精致小巧的卧室C,设计精巧,每一寸空间都得到了充分利用,让您在繁忙的生活中拥有一个温馨的休憩角落。
优秀卧室C朝南,光线明亮,通风效果上佳,为您的私密空间带来一份自然的舒适与宁静,无论是午后小憩还是夜晚安睡,都能感受到阳光的温暖照耀。- 有窗卧室C的窗户,像一幅流动的画卷,展现着四季的变换,让您在每个清晨与黄昏,都能与自然亲密相拥。
优秀卧室C俯瞰美景,落地窗尽显大气与明亮,让您每天醒来时都能享受自然光的温暖和窗外景色的美丽。
厨房 4.8㎡ | 面宽1.8m | 进深2.9m
- 空间适中厨房面积适中,既方便您的日常操作,又能让厨房保持整洁美观。
- 明厨透亮的窗户为厨房带来明媚阳光,让烹饪环境更加明亮,享受每一刻与家人共度的温馨时光。
卫生间 4.3㎡ | 面宽1.5m | 进深2.9m
- 空间适中精致小巧的卫生间,空间利用得当,既节省空间又满足日常所需,让您的洗浴时光更加愉快。
- 明卫透过卫生间的窗户,可以感受到自然的气息,让卫浴时光变得更加轻松愉悦。
3室2厅2卫售完9.5“极佳”
价格待定108.06㎡
3室2厅1卫售完9“优秀”
价格待定94.90㎡
3室2厅2卫售完9.6“极佳”
价格待定118.77㎡
3室2厅2卫售完9.3“优秀”
价格待定109.31㎡
3室2厅1卫售完8.8“良好”
价格待定94.70㎡
3室2厅2卫售完10“极佳”
价格待定118.00㎡
3室2厅1卫售完8“良好”
价格待定95.00㎡
3室2厅1卫售完10“极佳”
价格待定107.00㎡
3室2厅1卫售完10“极佳”
价格待定107.00㎡
3室2厅1卫售完10“极佳”
价格待定109.00㎡
3室2厅2卫售完10“极佳”
价格待定118.00㎡
3室2厅1卫售完8“良好”
价格待定95.00㎡
3室2厅2卫售完10“极佳”
价格待定118.00㎡
3室2厅1卫售完8“良好”
价格待定95.00㎡
3室2厅1卫售完10“极佳”
价格待定107.00㎡
3室2厅2卫售完10“极佳”
价格待定109.00㎡
3室2厅2卫售完10“极佳”
价格待定116.00㎡
3室2厅2卫售完10“极佳”
价格待定123.00㎡
3室2厅2卫售完9“优秀”
价格待定137.00㎡
3室2厅1卫售完10“极佳”
价格待定108.00㎡
3室2厅2卫售完10“极佳”
价格待定122.00㎡
对此楼盘感兴趣的人还浏览了
新旅明樾轩
3600元/平方米
新建-长堎用户评分9.35分
在售品牌地产国企开发loft复式
金龙湾小镇
5500元/平方米
新建-长堎用户评分9.07分
在售经济住宅洋房现房
众森·红谷一品
13500元/平方米
新建-长堎用户评分9.62分
在售现房景观居所科技住宅改善优选装修交付低密居所洋房
查看全部





优秀

























