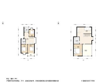
3室1厅2卫1厨
售完苏建豪庭3居室户型图 | 建面:134.96㎡ | 朝向:
- 所属楼盘
价格待定算月供
实际价格以售楼处为准,户型图为开发商提供,具体以实际交房标准为准
微信打开
查看完整户型评测9
户型评分
- 基础测评9
- 空间测评9.1
- 采光通风8.8
户型信息
- 2个阳台
- 明厨
- 户型方正
- 明厨
- 双阳台
- 主卧朝南
空间测评优秀9.1空间测评指标

*施工有误差,交付时无法与户型图一致,仅供参考,最终以开发商合同为准
- 客厅:极佳
- 卧室B:极佳
- 卧室C:良好
- 厨房:极佳
- 卫生间A:良好
- 卫生间B:良好
- 阳台A:良好
- 阳台B:良好
通风测评良好8.8


- 开窗

- 风向
*施工有误差,交付时无法与户型图一致,仅供参考,最终以开发商合同为准
采光测评良好8.8采光测评的指标
| 采光性 | 评价 | |
|---|---|---|
| 卧室B | 极佳 | |
| 厨房 | 普通 | |
| 阳台A | 极佳 | |
| 阳台B | 极佳 |
*户型数据为人工测量或估算值,可能于实际情况存在误差,仅供参考,实际数据以开发商发布为准。
房屋细节
客厅
- 空间豪华豪华客厅设计独特,空间感十足,让人在其中感受到尊贵与舒适的双重享受。
卧室B
空间可容纳
床
1.8m*2m
床头柜X2
0.4m宽
衣柜
0.6m深
- 空间较大这间大于10平米的卧室B,空间宽敞,布局合理,让您在享受舒适生活的同时,也能感受到家的温馨与安逸。
优秀朝南设计的卧室B,光线明亮而宜人,通风流畅,为您的私人空间带来一份自然的惬意与宁静,无论是短暂休息还是深度睡眠,都能享受到阳光的温暖照耀。
优秀站在卧室B的落地窗前,您可以尽情领略窗外的美景,感受生活的美好与宁静。
卧室C
空间可容纳
床
1.8m*2m
床头柜X2
0.4m宽
衣柜
0.6m深
- 空间适中尽管卧室C面积有限,但设计师却巧妙地利用空间,打造出一个精致而舒适的休憩之所,让您感受到家的温馨与惬意。
厨房
- 空间较大厨房面积宽敞,多人协作料理更加轻松,同时容纳冰箱等家电,打造温馨厨房。
- 明厨厨房窗户宽敞明亮,让阳光洒满整个空间,烹饪时仿佛置身于大自然之中,享受清新自然的味道。
卫生间A
- 空间适中卫生间A设计精巧,空间利用恰到好处,虽小却五脏俱全,满足日常所需。
卫生间B
- 空间适中虽面积不大,但卫生间B布局合理,空间适中,满足您日常清洁和洗漱的需求。
对此楼盘感兴趣的人还浏览了
查看全部





优秀











































