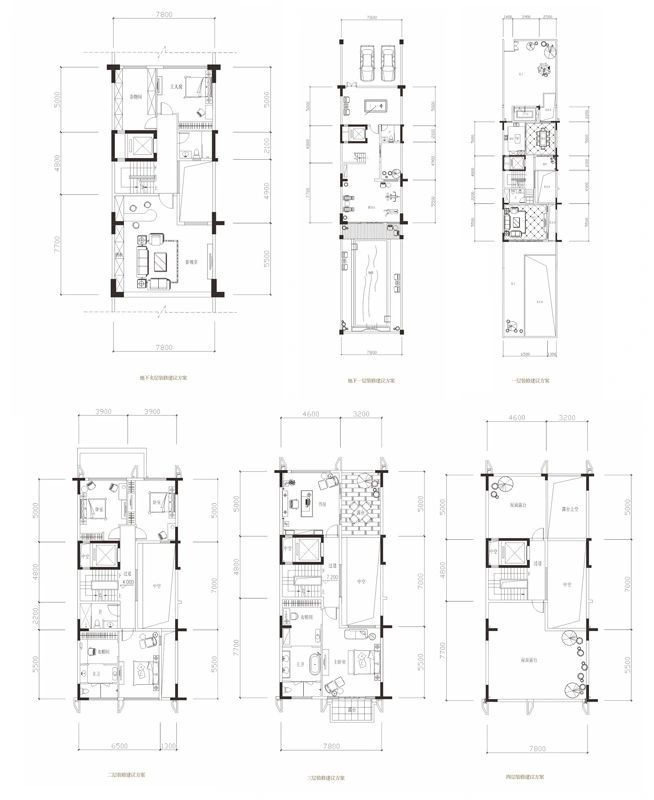
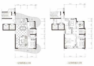
4室2厅4卫1厨
售完亲地院府F户型(中间) | 建面:282㎡ | 朝向:
- 所属楼盘
价格待定算月供
实际价格以售楼处为准,户型图为开发商提供,具体以实际交房标准为准
微信打开
查看完整户型评测10
户型评分
- 基础测评10
对此楼盘感兴趣的人还浏览了
澄江明月
16000元/平方米
江阴市-澄江街道用户评分9.5分
在售品牌地产改善优选装修交付
星河国际
11000元/平方米
江阴市-城东街道用户评分9.54分
在售品牌地产改善优选洋房
仁恒棠悦
16000元/平方米
江阴市-云亭街道用户评分7.72分
在售改善优选低密居所
查看全部








