2室2厅1卫1厨
售完雅居园2居室户型图 | 建面:89.85㎡ | 朝向:东西通透
- 所属楼盘
价格待定算月供
实际价格以售楼处为准,户型图为开发商提供,具体以实际交房标准为准
微信打开
查看完整户型评测8.8
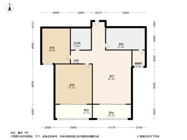
户型评分
- 基础测评9
- 空间测评8.8
- 采光通风8.7
户型信息
- 1个阳台
- 明厨
- 户型方正
- 明厨
空间测评良好8.8空间测评指标

*施工有误差,交付时无法与户型图一致,仅供参考,最终以开发商合同为准
- 客厅:极佳
- 卧室A:良好
- 卧室B:良好
- 厨房:良好
- 卫生间:良好
- 阳台:良好
通风测评良好8.7


- 开窗

- 风向
*施工有误差,交付时无法与户型图一致,仅供参考,最终以开发商合同为准
采光测评良好8.7采光测评的指标
| 采光性 | 评价 | |
|---|---|---|
| 客厅 | 普通 | |
| 卧室A | 普通 | |
| 卧室B | 优秀 | |
| 厨房 | 优秀 | |
| 阳台 | 极佳 |
*户型数据为人工测量或估算值,可能于实际情况存在误差,仅供参考,实际数据以开发商发布为准。
房屋细节
客厅
- 空间豪华客厅空间宽敞,豪华而不失舒适,是家人欢聚、朋友畅谈的理想场所。
- 舒适客厅光线充足,窗户布局合理,让自然光与室内空气完美融合,无论是阅读、品茶还是欣赏窗外美景,都能享受惬意生活。
卧室A
空间可容纳
床
1.8m*2m
床头柜X2
0.4m宽
衣柜
0.6m深
- 空间适中尽管卧室A面积有限,但设计师巧妙地利用每一寸空间,布局合理,使这个小小的角落成为您放松身心的温馨之地。
- 有窗卧室A窗户明亮,让阳光洒满整个空间,为您带来满满的能量与活力,让您每天都能充满活力地迎接新的一天。
卧室B
空间可容纳
床
1.8m*2m
床头柜X2
0.4m宽
衣柜
0.6m深
- 空间适中尽管卧室B面积有限,但设计师却巧妙地将每一寸空间都利用起来,打造出一个既实用又舒适的休憩之所。
- 朝西朝西的卧室B视野开阔,傍晚时分,落日美景尽收眼底,让您在窗前感受大自然的宁静与和谐,放松心情。
- 有窗卧室B的窗户设计独具匠心,既保证了室内的采光与通风,又让窗外的美景尽收眼底。
厨房
- 空间适中适中的厨房面积,既满足日常烹饪需求,又能让厨房保持整洁有序。
- 明厨厨房的窗户设计巧妙,不仅通风采光好,还增添了几分现代感,让烹饪变得更加愉悦。
卫生间
- 空间适中卫生间空间适中,既不过于紧凑也不过于空旷,让您的洗浴体验更加舒适自然。
对此楼盘感兴趣的人还浏览了
查看全部

























































