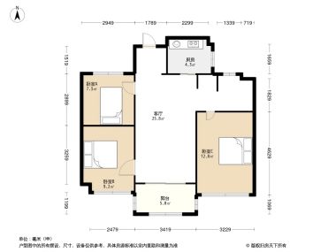
3室2厅1卫1厨
售完万科公园大道3居室户型图 | 建面:89.68㎡ | 朝向:南北通透
- 所属楼盘
价格待定算月供
实际价格以售楼处为准,户型图为开发商提供,具体以实际交房标准为准
微信打开
查看完整户型评测9.1
户型评分
- 基础测评9
- 空间测评8.6
- 采光通风9.6
户型信息
- 1个阳台
- 2个飘窗
- 1个明卫
- 明厨
- 户型方正
- 明卫
- 明厨
- 双卧朝南
- 主卧朝南
空间测评良好8.6空间测评指标

*施工有误差,交付时无法与户型图一致,仅供参考,最终以开发商合同为准
- 客厅:优秀
- 卧室A:良好
- 卧室B:良好
- 书房:良好
- 厨房:良好
- 卫生间:良好
- 阳台:良好
通风测评极佳9.6


- 开窗

- 风向
*施工有误差,交付时无法与户型图一致,仅供参考,最终以开发商合同为准
采光测评极佳9.6采光测评的指标
| 采光性 | 评价 | |
|---|---|---|
| 卧室A | 极佳 | |
| 卧室B | 极佳 | |
| 书房 | 极佳 | |
| 厨房 | 极佳 | |
| 卫生间 | 优秀 | |
| 阳台 | 极佳 |
*户型数据为人工测量或估算值,可能于实际情况存在误差,仅供参考,实际数据以开发商发布为准。
房屋细节
客厅
- 空间宽敞宽敞明亮的客厅,让人一进入就感受到家的温馨与舒适,是放松身心的理想场所。
卧室A
空间可容纳
床
1.8m*2m
床头柜X2
0.4m宽
衣柜
0.6m深
- 空间适中尽管卧室A面积有限,但设计师巧妙地利用每一寸空间,布局合理,使这个小小的角落成为您放松身心的温馨之地。
优秀卧室A朝南,阳光明媚,空气流通,为您的私密空间营造一份自然的宁静与温馨,无论是短暂休息还是深度睡眠,都能感受到阳光的温暖守护。- 有飘窗拥有飘窗的卧室A,让窗外的风景成为室内的一部分,为您带来一份宁静与惬意。
卧室B
空间可容纳
床
1.2m*2m
床头柜X1
0.4m宽
- 空间适中虽然卧室B面积不足,但设计却独具匠心,布局合理,让每一寸空间都发挥出其最大的价值,为您带来舒适的休憩体验。
优秀朝南的卧室B光线充足,通风条件优越,为您打造一处自然舒适的私密天地,无论是休闲午后还是宁静夜晚,都能沐浴在阳光的温暖之中。- 有飘窗飘窗为卧室B增添一份灵动,让您的居住空间更加生动,享受生活的美好。
书房
- 空间适中尽管书房面积有限,但设计师却巧妙地利用空间,打造出一个精致而舒适的休憩之所,让您感受到家的温馨与惬意。
- 有窗书房拥有明亮的窗户,让您在享受舒适睡眠的同时,也能感受到自然光的温暖与照耀,让您的生活更加美好。
厨房
- 空间适中适中的厨房面积,既满足日常烹饪需求,又能让厨房保持整洁有序。
- 明厨厨房窗户设计独特,通风采光俱佳,让烹饪过程更加轻松愉悦,感受家的温馨与舒适。
卫生间
- 空间适中卫生间空间适中,既不过于紧凑也不过于空旷,让您的洗浴体验更加舒适自然。
- 明卫卫生间的窗户设计独特,既保证了通风效果,又让卫浴空间变得更加明亮宽敞。
3室1厅1卫售完8.8“良好”
价格待定89.00㎡
3室1厅1卫售完9“优秀”
价格待定89.74㎡
3室2厅2卫售完9.2“优秀”
价格待定130.46㎡
3室2厅1卫售完8.8“良好”
价格待定89.62㎡
3室2厅1卫售完8.9“良好”
价格待定89.56㎡
3室2厅1卫售完8.9“良好”
价格待定89.00㎡
3室2厅2卫售完9.1“优秀”
价格待定133.00㎡
3室2厅1卫售完8.9“良好”
价格待定89.00㎡
3室1厅1卫售完8.9“良好”
价格待定89.45㎡
3室2厅1卫售完8.9“良好”
价格待定89.00㎡
3室2厅1卫售完9“优秀”
价格待定89.68㎡
3室1厅1卫售完8.9“良好”
价格待定89.45㎡
3室2厅1卫售完8.9“良好”
价格待定89.00㎡
3室2厅1卫售完9“优秀”
价格待定89.00㎡
3室2厅1卫售完9“优秀”
价格待定89.74㎡
3室2厅1卫售完8.7“良好”
价格待定88.49㎡
3室2厅1卫售完9“优秀”
价格待定88.74㎡
3室1厅1卫售完9“优秀”
价格待定89.60㎡
3室1厅1卫售完8.9“良好”
价格待定89.00㎡
3室2厅1卫售完9“优秀”
价格待定89.00㎡
3室2厅1卫售完8.9“良好”
价格待定88.86㎡
3室2厅1卫售完8.9“良好”
价格待定88.86㎡
3室2厅1卫售完8.9“良好”
价格待定89.60㎡
3室2厅2卫售完9.1“优秀”
价格待定132.00㎡
3室2厅1卫售完9.2“优秀”
价格待定89.95㎡
3室2厅2卫售完9.2“优秀”
价格待定131.55㎡
3室2厅1卫售完9.2“优秀”
价格待定89.61㎡
3室2厅1卫售完9.2“优秀”
价格待定100.90㎡
3室2厅1卫售完9“优秀”
价格待定88.51㎡
3室1厅1卫售完9.1“优秀”
价格待定89.05㎡
3室2厅2卫售完9.2“优秀”
价格待定131.00㎡
3室2厅1卫售完8.6“良好”
价格待定89.00㎡
3室2厅2卫售完9“优秀”
0.0090.00㎡
3室2厅2卫售完9“优秀”
0.0090.00㎡
3室2厅2卫售完9“优秀”
0.0090.00㎡
3室2厅2卫售完9“优秀”
0.0090.00㎡
3室2厅2卫售完9“优秀”
价格待定131.00㎡
3室2厅2卫售完9“优秀”
价格待定132.00㎡
3室2厅1卫售完8“良好”
价格待定90.00㎡
3室2厅1卫售完8“良好”
价格待定90.00㎡
3室2厅1卫售完8“良好”
价格待定90.00㎡
3室2厅1卫售完8“良好”
230.00万元/套90.00㎡
3室2厅1卫售完8“良好”
价格待定90.00㎡
3室2厅1卫售完8“良好”
价格待定90.00㎡
3室2厅1卫售完8“良好”
价格待定90.00㎡
3室2厅2卫售完9“优秀”
价格待定90.00㎡
对此楼盘感兴趣的人还浏览了
河昱云境府
29925元/平方米
上城-笕桥用户评分9.47分
售完刚需必看
百郦玲珑府
44200元/平方米
上城-笕桥用户评分9.48分
售完地铁沿线景观居所洋房
滨江兴耀沐新月
31666元/平方米
上城-笕桥用户评分9.48分
售完
查看全部





优秀













































