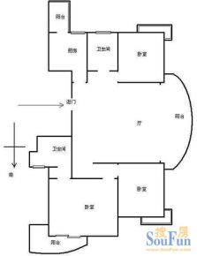
3室2厅2卫1厨
售完金色家园3居室户型图 | 建面:157.02㎡ | 朝向:东南
- 所属楼盘
价格待定算月供
实际价格以售楼处为准,户型图为开发商提供,具体以实际交房标准为准
微信打开
查看完整户型评测8.9
户型评分
- 基础测评9.3
- 空间测评8.8
- 采光通风8.6
户型信息
- 3个阳台
- 4个飘窗
- 2个明卫
- 主卧带卫生间
- 户型方正
- 明卫
空间测评良好8.8空间测评指标

*施工有误差,交付时无法与户型图一致,仅供参考,最终以开发商合同为准
- 客厅:极佳
- 餐厅:良好
- 主卧:优秀
- 次卧:良好
- 次卧:良好
- 厨房:极佳
- 卫生间:良好
- 卫生间:良好
- 阳台:良好
- 阳台:良好
- 阳台:良好
通风测评良好8.6


- 开窗

- 风向
*施工有误差,交付时无法与户型图一致,仅供参考,最终以开发商合同为准
采光测评良好8.6采光测评的指标
| 采光性 | 评价 | |
|---|---|---|
| 次卧 | 优秀 | |
| 次卧 | 极佳 | |
| 卫生间 | 优秀 | |
| 卫生间 | 极佳 |
*户型数据为人工测量或估算值,可能于实际情况存在误差,仅供参考,实际数据以开发商发布为准。
房屋细节
客厅
- 空间豪华客厅空间宽敞豪华,让人感受到家的温馨与舒适,同时也彰显出主人的尊贵地位。
主卧
空间可容纳
床
2m*2.4m
床头柜X2
0.6m宽
衣柜
0.6m深
电视柜
0.5m*1.5m
- 空间较大主卧面积充裕,让您在忙碌的生活中,也能感受到家的温馨与宁静。
次卧
空间可容纳
床
1.8m*2m
床头柜X2
0.4m宽
衣柜
0.6m深
- 空间适中精致小巧的次卧,虽然面积不大,但设计却十分用心,每一处都透露着舒适与温馨,让您拥有一个温馨的休憩之所。
优秀次卧朝南,光线充裕,空气流通,为您的私密领地增添一抹自然的温馨,无论是午后休憩还是夜晚入梦,都能感受到阳光的温馨陪伴。- 有飘窗飘窗成为次卧的一大亮点,不仅提升室内采光,还为您打造一个宁静的休憩场所。
次卧
空间可容纳
床
1.8m*2m
床头柜X2
0.4m宽
衣柜
0.6m深
- 空间适中尽管次卧面积有限,但设计师却巧妙地将每一寸空间都利用起来,打造出一个精致而舒适的休憩环境。
- 有飘窗次卧带飘窗设计,让您的居住空间更加通透,同时享受宁静的休闲时光。
厨房
- 空间较大厨房宽敞舒适,多人同时烹饪也能保持空间感,同时满足家电摆放需求,让生活更舒适。
卫生间
- 空间适中卫生间设计精致,空间利用得当,让您在有限的空间内享受舒适的洗浴环境。
- 明卫卫生间设有窗户,通风效果更佳,有效减少潮湿,打造健康舒适的卫浴环境。
卫生间
- 空间适中卫生间空间恰到好处,既不拥挤也不空旷,为您打造舒适的洗漱体验。
- 明卫卫生间设有窗户,通风采光两不误,为居住者打造了一个健康舒适的卫浴空间。
3室2厅2卫售完9.2“优秀”
价格待定114.41㎡
3室2厅2卫售完9“优秀”
价格待定131.71㎡
3室2厅1卫售完9.5“极佳”
价格待定104.20㎡
3室2厅2卫售完9.3“优秀”
价格待定163.03㎡
3室2厅2卫售完9.4“优秀”
价格待定158.72㎡
3室2厅2卫售完9“优秀”
价格待定144.29㎡
3室2厅2卫售完9“优秀”
价格待定145.05㎡
3室2厅2卫售完9.1“优秀”
价格待定145.00㎡
3室1厅2卫售完9.5“极佳”
价格待定156.53㎡
3室2厅2卫售完9.2“优秀”
价格待定127.00㎡
3室2厅2卫售完9.2“优秀”
价格待定157.00㎡
3室2厅2卫售完9“优秀”
价格待定145.05㎡
3室2厅2卫售完9.1“优秀”
价格待定153.70㎡
3室2厅2卫售完9“优秀”
价格待定145.05㎡
3室2厅2卫售完8.6“良好”
价格待定139.57㎡
3室2厅2卫售完10“极佳”
0.00127.00㎡
3室2厅2卫售完10“极佳”
0.00105.00㎡
3室2厅2卫售完10“极佳”
0.00159.00㎡
3室2厅2卫售完10“极佳”
0.00104.00㎡
3室2厅2卫售完9“优秀”
0.00139.00㎡
3室1厅1卫售完10“极佳”
0.00107.00㎡
3室2厅2卫售完10“极佳”
0.00125.00㎡
3室2厅2卫售完9“优秀”
0.00145.00㎡
3室2厅2卫售完10“极佳”
0.00113.00㎡
3室2厅2卫售完10“极佳”
0.00156.00㎡
3室2厅2卫售完10“极佳”
0.00128.00㎡
3室2厅2卫售完10“极佳”
0.00157.00㎡
对此楼盘感兴趣的人还浏览了
查看全部





优秀































