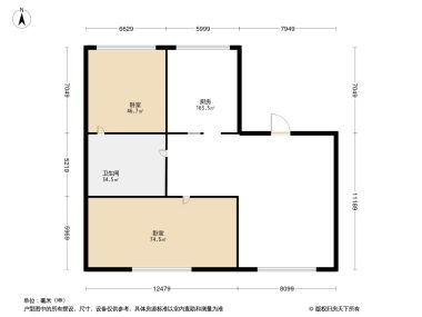
2室1厅1卫1厨
售完鸿朗花园2居室户型图 | 建面:82㎡ | 朝向:东南
- 所属楼盘
价格待定算月供
实际价格以售楼处为准,户型图为开发商提供,具体以实际交房标准为准
微信打开
查看完整户型评测9
户型评分
- 基础测评9.3
- 空间测评8.8
- 采光通风8.8
户型信息
- 户型方正
- 客厅朝南
- 双卧朝南
空间测评良好8.8空间测评指标

*施工有误差,交付时无法与户型图一致,仅供参考,最终以开发商合同为准
- 卫:良好
- 客厅:极佳
- 卧室A:良好
- 卧室B:良好
- 厨房:良好
通风测评良好8.8


- 开窗

- 风向
*施工有误差,交付时无法与户型图一致,仅供参考,最终以开发商合同为准
采光测评良好8.8采光测评的指标
| 采光性 | 评价 | |
|---|---|---|
| 客厅 | 普通 | |
| 卧室A | 极佳 | |
| 卧室B | 极佳 |
*户型数据为人工测量或估算值,可能于实际情况存在误差,仅供参考,实际数据以开发商发布为准。
房屋细节
卫
- 空间适中卫虽小,但空间布局合理,既实用又美观,让您的洗浴体验更加舒适惬意。
客厅
- 空间豪华客厅空间豪华大气,让人感受到家的尊贵与荣耀,同时也营造出一种舒适而温馨的居住氛围。
优秀朝南而建的客厅,宽敞明亮,阳光倾洒,如同自然的画笔,为生活描绘出斑斓的色彩,是您与家人欢聚、共度美好时光的理想之地。
优秀落地窗让客厅与大自然紧密相连,无论是清晨的阳光还是傍晚的余晖,都能在此尽情欣赏,感受生活的美好。
卧室A
空间可容纳
床
1.8m*2m
床头柜X2
0.4m宽
衣柜
0.6m深
- 空间适中卧室A虽小,却设计得十分用心,每一寸空间都被充分利用,为您打造出一个既舒适又温馨的休憩角落。
优秀朝南的卧室A采光优良,通风顺畅,为您的私人领地营造一份自然的宁静与温馨,无论是短暂休息还是深度睡眠,都能沐浴在温暖的阳光之中。
优秀卧室A的落地窗设计,将室内与室外美景完美融合,为您带来一场视觉的盛宴。
卧室B
空间可容纳
床
1.8m*2m
床头柜X2
0.4m宽
衣柜
0.6m深
- 空间适中精致小巧的卧室B,虽无过多空间,但设计合理,空间利用率极高,让您在有限的空间里享受无限的舒适与惬意。
优秀朝南设计的卧室B,光线通透,通风舒畅,为您的私人领地增添一份自然的舒适与惬意,无论是午后放松还是夜晚入眠,都能享受到阳光的温暖陪伴。
优秀卧室B与自然融合,落地窗打造通透明亮的空间,让您在这里感受到室内外无缝连接的舒适体验。
厨房
- 空间适中适中的厨房空间,让您的烹饪过程更加轻松愉快,享受美食带来的幸福。
2室1厅1卫售完8.8“良好”
价格待定55.23㎡
2室1厅1卫售完8.8“良好”
价格待定55.23㎡
2室1厅1卫售完9.4“优秀”
价格待定81.00㎡
2室1厅1卫售完9.1“优秀”
价格待定54.13㎡
2室1厅1卫售完8.4“良好”
价格待定75.00㎡
2室1厅1卫售完9.3“优秀”
价格待定76.00㎡
2室1厅1卫售完8.9“良好”
价格待定116.00㎡
2室1厅1卫售完9.3“优秀”
价格待定65.00㎡
2室1厅1卫售完9.3“优秀”
价格待定88.96㎡
2室1厅1卫售完9.3“优秀”
价格待定69.72㎡
2室1厅1卫售完9“优秀”
价格待定72.00㎡
2室1厅1卫售完8.9“良好”
价格待定54.00㎡
2室1厅1卫售完9.2“优秀”
价格待定65.00㎡
2室1厅1卫售完9.4“优秀”
价格待定63.00㎡
2室1厅1卫售完9.5“极佳”
价格待定91.00㎡
2室1厅1卫售完9“优秀”
价格待定57.00㎡
2室1厅1卫售完9.3“优秀”
价格待定71.00㎡
2室1厅1卫售完9.5“极佳”
价格待定60.00㎡
2室1厅1卫售完9“优秀”
价格待定54.00㎡
2室1厅1卫售完9“优秀”
价格待定130.00㎡
2室1厅1卫售完9.2“优秀”
价格待定81.26㎡
2室1厅1卫售完9.2“优秀”
价格待定66.00㎡
2室1厅1卫售完8.7“良好”
价格待定50.03㎡
2室2厅1卫售完9.3“优秀”
价格待定82.00㎡
2室1厅1卫售完8.9“良好”
价格待定65.41㎡
2室1厅1卫售完9.3“优秀”
价格待定54.56㎡
2室2厅1卫售完9“优秀”
价格待定102.00㎡
2室1厅1卫售完8.9“良好”
价格待定66.00㎡
2室1厅1卫售完8.8“良好”
价格待定76.46㎡
2室2厅1卫售完10“极佳”
价格待定47.52㎡
2室2厅1卫售完10“极佳”
价格待定66.10㎡
2室1厅1卫售完10“极佳”
价格待定45.33㎡
2室1厅1卫售完10“极佳”
价格待定36.07㎡
对此楼盘感兴趣的人还浏览了
华润置地·九里芳华
14000元/平方米
南岗-哈西用户评分9.24分
在售品牌地产洋房
中海云麓公馆
14000元/平方米
南岗-哈西用户评分9.25分
在售品牌地产洋房
凯盛源广场
15800元/平方米
南岗-哈西用户评分9.12分
在售地铁沿线loft复合地产豪华居住区城市中心地产刚需必看大平层
查看全部




优秀
























































