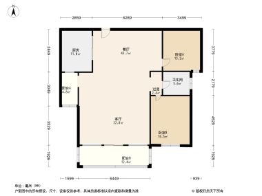
3室1厅1卫1厨
售完华邦繁华里3居室户型图 | 建面:101.95㎡ | 朝向:南北通透
- 所属楼盘
价格待定算月供
实际价格以售楼处为准,户型图为开发商提供,具体以实际交房标准为准
微信打开
查看完整户型评测9.4
户型评分
- 基础测评10
- 空间测评8.6
- 采光通风9.2
户型信息
- 2个阳台
- 1个飘窗
- 户型方正
- 双阳台
- 双卧朝南
空间测评良好8.6空间测评指标


- 面宽

- 进深
*施工有误差,交付时无法与户型图一致,仅供参考,最终以开发商合同为准
| 面积(㎡) | 面宽(m) | 进深(m) | 评价 | |
|---|---|---|---|---|
| 客厅 | 19.4 | 3.8 | 4.9 | 优秀 |
| 餐厅 | 14 | 3.7 | 4.4 | 优秀 |
| 卧室A | 9.1 | 3.5 | 2.4 | 良好 |
| 卧室B | 13.9 | 3.5 | 3.7 | 良好 |
| 卧室C | 11.2 | 2.7 | 4.3 | 良好 |
| 厨房 | 7.9 | 3.5 | 2.3 | 良好 |
| 卫生间 | 4.9 | 2.3 | 2.1 | 良好 |
| 阳台A | 6.7 | 3.8 | 1.9 | 良好 |
| 阳台B | 2.9 | 1.2 | 2.1 | 良好 |
*户型数据为人工测量或估算值,可能于实际情况存在误差,仅供参考,实际数据以开发商发布为准。
通风测评优秀9.2


- 开窗

- 风向
*施工有误差,交付时无法与户型图一致,仅供参考,最终以开发商合同为准
采光测评优秀9.2采光测评的指标
| 采光性 | 评价 | |
|---|---|---|
| 卧室A | 极佳 | |
| 卧室B | 极佳 | |
| 卧室C | 极佳 | |
| 卫生间 | 优秀 | |
| 阳台A | 极佳 | |
| 阳台B | 极佳 |
*户型数据为人工测量或估算值,可能于实际情况存在误差,仅供参考,实际数据以开发商发布为准。
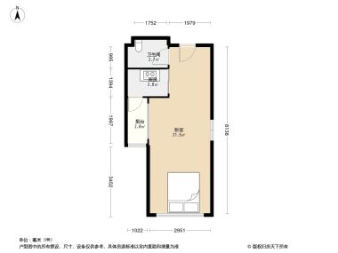
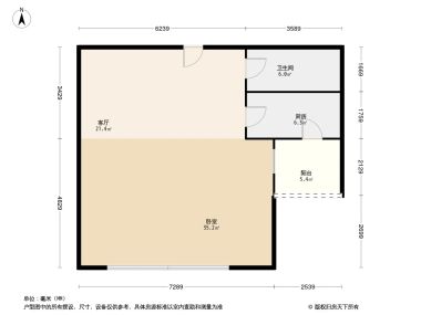
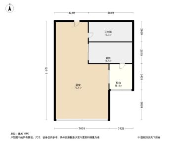
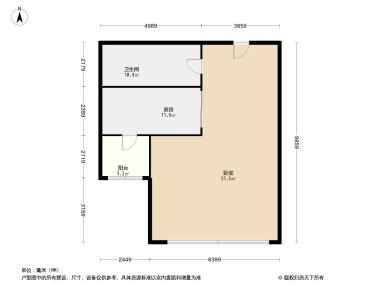
房屋细节
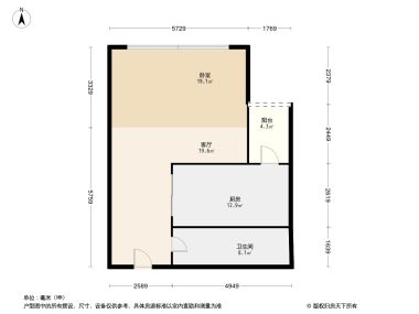
客厅 19.4㎡ | 面宽3.8m | 进深4.9m
- 空间宽敞客厅的面积恰到好处,既能满足家人的日常活动需求,又能营造出宽敞明亮的家居环境。
- 有阳台阳台作为客厅的延伸空间,既增加了室内的采光和通风效果,又提升了家居的整体品质。
卧室A 9.1㎡ | 面宽3.5m | 进深2.4m
空间可容纳
床
1.2m*2m
床头柜X1
0.4m宽
- 空间适中尽管卧室A面积有限,但设计师巧妙地利用每一寸空间,布局合理,使这个小小的角落成为您放松身心的温馨之地。
- 朝东卧室A朝东,清晨的阳光轻轻洒落,为您带来新一天的生机与活力,让您在早晨就能感受到生活的美好与温暖。
- 有窗卧室A窗户明亮宜人,让您在舒适的床上就能欣赏到窗外的美景,感受生活的美好与宁静。
卧室B 13.9㎡ | 面宽3.5m | 进深3.7m
空间可容纳
床
1.8m*2m
床头柜X2
0.4m宽
衣柜
0.6m深
- 空间适中卧室B虽小,却设计得十分用心,每一寸空间都被充分利用,为您打造出一个既舒适又温馨的休憩角落。
优秀卧室B朝南,光线通透且柔和,通风条件优越,为您的私密空间增添一份自然的舒适与安逸,无论是午后放松还是夜晚安睡,都能感受到阳光的温暖守护。- 有飘窗飘窗在卧室B中发挥着重要作用,既拓宽视野,又为您带来一份宁静与安逸。
- 次卧有阳台卧室B的阳台,是您放松心情的好去处。您可以在这里欣赏美丽的夜景,感受夜晚的宁静与神秘,享受生活的宁静与美好。
卧室C 11.2㎡ | 面宽2.7m | 进深4.3m
空间可容纳
床
1.8m*2m
床头柜X2
0.4m宽
衣柜
0.6m深
- 空间适中尽管卧室C面积有限,但设计师巧妙地利用每一寸空间,布局合理,使这个小小的角落成为您放松身心的温馨之地。
优秀朝南设计的卧室C,光线柔和而通透,通风流畅,为您的私人领地增添一份自然的惬意与安逸,无论是短暂休息还是长夜安睡,都能享受到阳光的温暖陪伴。
优秀透过卧室C的落地窗,您可以与窗外的美景零距离接触,感受大自然的亲近与和谐。
厨房 7.9㎡ | 面宽3.5m | 进深2.3m
- 空间适中厨房空间宽敞舒适,让您在烹饪时能够尽情发挥,享受美食带来的快乐。
- 厨房带阳台厨房有个小阳台,给杂物一个收纳空间。
卫生间 4.9㎡ | 面宽2.3m | 进深2.1m
- 空间适中卫生间设计精致,空间利用得当,让您在有限的空间内享受舒适的洗浴环境。
- 明卫窗户的加入让卫生间不再封闭,空气流通更顺畅,居住体验更舒适。
1室1厅1卫售完8.7“良好”
价格待定40.00㎡
1室1厅1卫售完8.6“良好”
价格待定39.59㎡
1室1厅1卫售完7.9“普通”
价格待定39.07㎡
1室1厅1卫售完8.3“良好”
价格待定39.00㎡
1室1厅1卫售完6.5“普通”
价格待定39.07㎡
1室1卫售完8.9“良好”
价格待定39.07㎡
1室1厅1卫售完8.5“良好”
价格待定40.00㎡
1室1厅1卫售完8.5“良好”
价格待定39.97㎡
1室1厅1卫售完7.9“普通”
价格待定39.07㎡
1室1厅1卫售完8.5“良好”
价格待定40.00㎡
1室1厅1卫售完8“良好”
价格待定39.07㎡
1室1厅1卫售完7.8“普通”
价格待定40.00㎡
1室1卫售完8.3“良好”
价格待定39.07㎡
1室1厅1卫售完8“良好”
价格待定40.00㎡
1室1厅1卫售完7.9“普通”
价格待定39.07㎡
1室1卫售完7.6“普通”
价格待定39.07㎡
1室1厅1卫售完8.3“良好”
价格待定39.07㎡
1室1卫售完8.8“良好”
价格待定40.00㎡
1室1厅1卫售完8.5“良好”
价格待定39.07㎡
1室1厅1卫售完8.5“良好”
价格待定40.00㎡
1室1厅1卫售完7.9“普通”
价格待定39.07㎡
1室1卫售完7.6“普通”
价格待定39.07㎡
对此楼盘感兴趣的人还浏览了
查看全部





优秀
















































