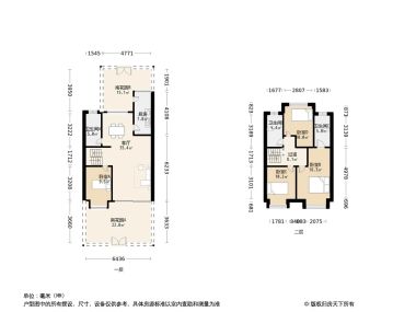
4室2厅2卫1厨
售完蓝光林肯公园4居室户型图 | 建面:133.5㎡ | 朝向:朝南
- 所属楼盘
价格待定算月供
实际价格以售楼处为准,户型图为开发商提供,具体以实际交房标准为准
微信打开
查看完整户型评测9.3
户型评分
- 基础测评9.5
- 空间测评8.8
- 采光通风9.6
户型信息
- 1个阳台
- 2个明卫
- 明厨
- 次卧带卫生间
- 大面宽阳台
- 明卫
- 明厨
- 双卧朝南
空间测评良好8.8空间测评指标


- 面宽

- 进深
*施工有误差,交付时无法与户型图一致,仅供参考,最终以开发商合同为准
| 面积(㎡) | 面宽(m) | 进深(m) | 评价 | |
|---|---|---|---|---|
| 客厅 | 44 | 9.4 | 7.3 | 极佳 |
| 卧室A | 13 | 3 | 4.5 | 良好 |
| 卧室B | 18.6 | 3.3 | 5.7 | 优秀 |
| 卧室C | 11.1 | 2.8 | 4 | 良好 |
| 厨房 | 5.7 | 3.5 | 1.8 | 良好 |
| 卫生间A | 5 | 1.7 | 3.2 | 良好 |
| 卫生间B | 5 | 1.8 | 3.2 | 良好 |
| 阳台 | 11.4 | 6.4 | 1.9 | 良好 |
*户型数据为人工测量或估算值,可能于实际情况存在误差,仅供参考,实际数据以开发商发布为准。
通风测评极佳9.6


- 开窗

- 风向
*施工有误差,交付时无法与户型图一致,仅供参考,最终以开发商合同为准
采光测评极佳9.6采光测评的指标
| 采光性 | 评价 | |
|---|---|---|
| 卧室A | 极佳 | |
| 卧室B | 极佳 | |
| 卧室C | 极佳 | |
| 厨房 | 极佳 | |
| 卫生间A | 优秀 | |
| 卫生间B | 极佳 | |
| 阳台 | 极佳 |
*户型数据为人工测量或估算值,可能于实际情况存在误差,仅供参考,实际数据以开发商发布为准。
房屋细节
客厅 44㎡ | 面宽9.4m | 进深7.3m
- 空间豪华客厅空间豪华大气,让人感受到家的尊贵与荣耀,同时也营造出一种舒适而温馨的居住氛围。
- 有阳台客厅与阳台相连,提供了一个养花弄草的好地方,让居家生活更加绿意盎然。
卧室A 13㎡ | 面宽3m | 进深4.5m
空间可容纳
床
1.8m*2m
床头柜X2
0.4m宽
衣柜
0.6m深
- 空间适中精致小巧的卧室A,设计得十分精致,每一寸空间都得到了合理的利用,让您在繁忙的生活中拥有一个宁静的休憩之所。
优秀卧室A朝南,光线明亮而柔和,通风顺畅,为您的私密空间带来一份自然的宁静与安逸,无论是小憩片刻还是长夜安睡,都能感受到阳光的温暖照耀。
优秀卧室A的落地窗设计,将室内与室外美景完美融合,为您带来一场视觉的盛宴。- 次卧有阳台卧室A的阳台设计巧妙,让您的生活空间得到完美利用。您可以在这里摆放运动器材,进行户外锻炼,享受健康的生活方式。
卧室B 18.6㎡ | 面宽3.3m | 进深5.7m
空间可容纳
床
1.8m*2m
床头柜X2
0.4m宽
衣柜
0.6m深
- 空间较大卧室B面积足够大,让您在布置房间时更加得心应手。
优秀朝南设计的卧室B,光线柔和而通透,通风流畅,为您的私人领地增添一份自然的惬意与安逸,无论是短暂休息还是长夜安睡,都能享受到阳光的温暖陪伴。
优秀卧室B宽敞明亮,落地窗让自然光洒满每个角落,为您带来宁静与舒适的居住体验。
卧室C 11.1㎡ | 面宽2.8m | 进深4m
空间可容纳
床
1.8m*2m
床头柜X2
0.4m宽
衣柜
0.6m深
- 空间适中卧室C虽小,却精致无比,设计匠心独运,巧妙布局,让每一寸空间都发挥到极致,营造出温馨舒适的休憩氛围。
优秀透过卧室C的落地窗,您可以与窗外的美景零距离接触,感受大自然的亲近与和谐。
厨房 5.7㎡ | 面宽3.5m | 进深1.8m
- 空间适中适中的厨房空间,让您的烹饪过程更加轻松愉快,享受美食带来的幸福。
- 明厨厨房的窗户明亮通透,让烹饪时光充满阳光与温暖,享受家的温馨与舒适。
卫生间A 5㎡ | 面宽1.7m | 进深3.2m
- 空间适中卫生间A设计精致,空间利用得当,让您在有限的空间内享受舒适的洗浴环境。
- 明卫有了窗户的卫生间A,不仅通风好,还能欣赏到窗外的美景,让卫浴时光更加惬意。
卫生间B 5㎡ | 面宽1.8m | 进深3.2m
- 空间适中虽面积不大,但卫生间B布局合理,空间适中,满足您日常清洁和洗漱的需求。
- 明卫有了窗户的卫生间B,不仅通风好,还能让居住者感受到自然的美好,让卫浴时光更加惬意。
对此楼盘感兴趣的人还浏览了
查看全部





优秀
























