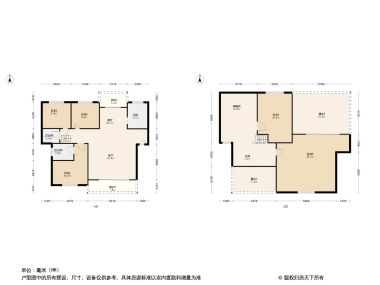
- 132.89㎡
- 87.69㎡
- 252.22㎡
- 127.22㎡
- 85㎡
- 107.2㎡
- 127.22㎡
- 88.39㎡
- 132.21㎡
- 128.4㎡
- 132㎡
- 128.74㎡
- 82㎡
- 128.4㎡
- 109.79㎡
- 144.76㎡
- 145.17㎡
- 107.51㎡
- 180.69㎡
- 116㎡
- 128.47㎡
- 149.41㎡
- 55.26㎡
- 92.69㎡
- 113.96㎡
- 173.53㎡
- 81.72㎡
- 109.99㎡
- 95.65㎡
- 146.54㎡
- 144㎡
- 107.33㎡
- 106.79㎡
- 108.17㎡
- 143㎡
- 81.63㎡
- 80.14㎡
- 91.5㎡
- 144.76㎡
- 109.73㎡
- 87.5㎡
- 113.69㎡
- 80㎡
- 144.1㎡
- 129.83㎡
- 109.9㎡
- 123.25㎡
- 79.13㎡
- 89㎡
- 75.53㎡
- 107.12㎡
- 107㎡
- 124.3㎡
- 87㎡
- 80.95㎡
- 132.67㎡
- 108.47㎡
- 131.43㎡
- 128.25㎡
- 130.46㎡
- 145.09㎡
- 88.24㎡
- 80㎡
- 87.6㎡
- 84.93㎡
- 112.08㎡
- 84.42㎡
- 146.05㎡
- 113.46㎡
- 89㎡
- 89㎡
- 107.26㎡
- 109.65㎡
- 131.21㎡
- 123.25㎡
- 85.5㎡
- 89.63㎡
- 131㎡
- 89.63㎡
- 128㎡
- 172㎡
- 89.63㎡
- 127㎡
- 107.26㎡
- 123.27㎡
- 88.24㎡
- 125.44㎡
- 144.76㎡
- 129.9㎡
- 106.02㎡
- 108.9㎡
- 108.86㎡
- 87.58㎡
- 69.63㎡
- 150.12㎡
- 71.37㎡
- 145.37㎡
- 105㎡
- 179.67㎡
- 87.26㎡
- 89.55㎡
- 112㎡
- 132㎡
- 123.27㎡
- 130㎡
- 108.98㎡
- 81㎡
- 105.1㎡
- 89.63㎡
- 130.78㎡
- 127.84㎡
- 112.91㎡
- 143.6㎡
- 144.76㎡
- 87.5㎡
- 150.17㎡
- 88.76㎡
- 85.3㎡
- 78.08㎡
- 128.46㎡
- 112㎡
- 108.31㎡
- 73.83㎡
- 145㎡
- 91.5㎡
- 85.35㎡
- 126㎡
- 86.78㎡
- 79.11㎡
- 138㎡
- 139㎡
- 233.56㎡
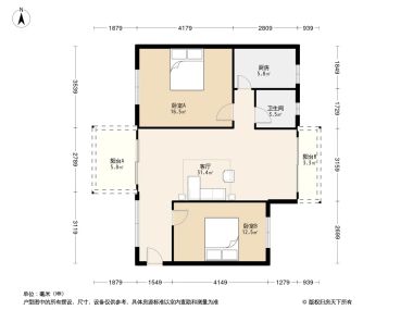
2室2厅1卫1厨
售完新康花园2居室户型图 | 建面:89㎡ | 朝向:朝南
- 所属楼盘
价格待定算月供
实际价格以售楼处为准,户型图为开发商提供,具体以实际交房标准为准
微信打开
查看完整户型评测9.1
户型评分
- 基础测评9.5
- 空间测评8.7
- 采光通风9.2
户型信息
- 2个阳台
- 2个飘窗
- 1个明卫
- 明厨
- 户型方正
- 明厨
- 明卫
- 双阳台
- 主卧朝南
空间测评良好8.7空间测评指标

*施工有误差,交付时无法与户型图一致,仅供参考,最终以开发商合同为准
- 客厅:优秀
- 卧室A:优秀
- 卧室B:良好
- 厨房:良好
- 卫生间:良好
- 阳台A:良好
- 阳台B:良好
通风测评优秀9.2


- 开窗

- 风向
*施工有误差,交付时无法与户型图一致,仅供参考,最终以开发商合同为准
采光测评优秀9.2采光测评的指标
| 采光性 | 评价 | |
|---|---|---|
| 卧室A | 极佳 | |
| 卧室B | 极佳 | |
| 厨房 | 优秀 | |
| 卫生间 | 优秀 | |
| 阳台B | 极佳 |
*户型数据为人工测量或估算值,可能于实际情况存在误差,仅供参考,实际数据以开发商发布为准。
房屋细节
客厅
- 空间宽敞客厅的面积适中,既不会显得过于拥挤,又能保证足够的活动空间,让人感受到家的宽敞与舒适。
卧室A
空间可容纳
床
1.8m*2m
床头柜X2
0.4m宽
衣柜
0.6m深
- 空间较大卧室A面积大,采光充足,为您打造明亮舒适的居住空间。
优秀朝南设计的卧室A,明亮宽敞,通风效果极佳,为您的私人空间带来一份自然的舒适感,无论是小憩时光还是安静夜晚,都能享受阳光的温暖拥抱。- 有飘窗拥有飘窗的卧室A,让窗外的风景成为室内的一部分,为您带来一份宁静与惬意。
卧室B
空间可容纳
床
1.2m*2m
床头柜X1
0.4m宽
- 空间适中卧室B虽小,却设计得精致而舒适,每一寸空间都得到了充分的利用,为您带来一个宁静而温馨的休憩环境。
- 有飘窗卧室B带飘窗设计,让您的居住空间更加通透,同时享受宁静的休闲时光。
厨房
- 空间适中适中的厨房面积,既满足日常烹饪需求,又能让厨房保持整洁有序。
- 明厨厨房的窗户明亮通透,让烹饪时光充满阳光与温暖,享受家的温馨与舒适。
卫生间
- 空间适中卫生间空间恰到好处,既不拥挤也不空旷,为您打造舒适的洗漱体验。
- 明卫卫生间的窗户设计独特,既保证了通风效果,又让卫浴空间变得更加明亮宽敞。
3室2厅2卫售完8.7“良好”
价格待定132.89㎡
3室2厅2卫售完9.4“优秀”
价格待定107.20㎡
3室2厅2卫售完9.1“优秀”
价格待定132.00㎡
3室2厅2卫售完9.1“优秀”
价格待定128.74㎡
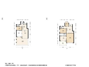
3室3厅2卫售完9.3“优秀”
价格待定144.76㎡
3室2厅1卫售完8.7“良好”
价格待定107.51㎡
3室2厅2卫售完9.6“极佳”
价格待定116.00㎡
3室2厅2卫售完8.8“良好”
价格待定128.47㎡
3室1厅2卫售完9.3“优秀”
价格待定113.96㎡
3室2厅2卫售完9.4“优秀”
价格待定109.99㎡
3室2厅1卫售完8.9“良好”
价格待定95.65㎡
3室2厅2卫售完8.6“良好”
价格待定107.33㎡
3室2厅3卫售完8.2“良好”
价格待定106.79㎡
3室2厅2卫售完9“优秀”
价格待定108.17㎡
3室2厅1卫售完8.9“良好”
价格待定91.50㎡
3室2厅2卫售完9.4“优秀”
价格待定109.73㎡
3室2厅2卫售完9.5“极佳”
价格待定113.69㎡
3室2厅2卫售完9.4“优秀”
价格待定129.83㎡
3室2厅2卫售完9.4“优秀”
价格待定109.90㎡
3室1厅2卫售完9“优秀”
价格待定123.25㎡
3室2厅2卫售完9.4“优秀”
价格待定107.12㎡
3室2厅2卫售完9.4“优秀”
价格待定107.00㎡
3室2厅2卫售完9.1“优秀”
价格待定124.30㎡
3室2厅2卫售完9“优秀”
价格待定108.47㎡
3室2厅2卫售完9.1“优秀”
价格待定130.46㎡
3室2厅1卫售完8.8“良好”
价格待定88.24㎡
3室2厅2卫售完8.7“良好”
价格待定112.08㎡
3室1厅2卫售完9.1“优秀”
价格待定113.46㎡
3室2厅2卫售完9.5“极佳”
价格待定107.26㎡
3室1厅2卫售完9.1“优秀”
价格待定109.65㎡
3室2厅2卫售完8.6“良好”
价格待定131.21㎡
3室2厅2卫售完9.3“优秀”
价格待定128.00㎡
3室2厅2卫售完9“优秀”
价格待定127.00㎡
3室2厅2卫售完9.3“优秀”
价格待定107.26㎡
3室2厅1卫售完9.1“优秀”
价格待定123.27㎡
3室1厅1卫售完8.8“良好”
价格待定88.24㎡
3室2厅1卫售完9.3“优秀”
价格待定125.44㎡
3室2厅2卫售完9.1“优秀”
价格待定129.90㎡
3室2厅2卫售完9.2“优秀”
价格待定106.02㎡
3室2厅2卫售完9.2“优秀”
价格待定108.90㎡
3室2厅2卫售完9“优秀”
价格待定108.86㎡
3室2厅2卫售完9.2“优秀”
价格待定105.00㎡
3室2厅2卫售完9.5“极佳”
价格待定112.00㎡
3室2厅2卫售完8.7“良好”
价格待定132.00㎡
3室2厅1卫售完9.2“优秀”
价格待定123.27㎡
3室2厅2卫售完8.9“良好”
价格待定130.00㎡
3室2厅1卫售完9.3“优秀”
价格待定108.98㎡
3室2厅2卫售完9.3“优秀”
价格待定105.10㎡
3室2厅1卫售完8.8“良好”
价格待定89.63㎡
3室2厅2卫售完9.2“优秀”
价格待定130.78㎡
3室2厅2卫售完9.3“优秀”
价格待定127.84㎡
3室2厅1卫售完8.8“良好”
价格待定87.50㎡
3室2厅2卫售完9“优秀”
价格待定128.46㎡
3室2厅2卫售完9“优秀”
价格待定112.00㎡
3室2厅2卫售完9“优秀”
价格待定108.31㎡
3室2厅2卫售完8.9“良好”
价格待定73.83㎡
3室2厅1卫售完8.7“良好”
价格待定85.35㎡
3室售完0“普通”
价格待定138.00㎡
3室2厅2卫售完9“优秀”
价格待定139.00㎡
3室售完0“普通”
价格待定233.56㎡
对此楼盘感兴趣的人还浏览了
查看全部




优秀

































































































































