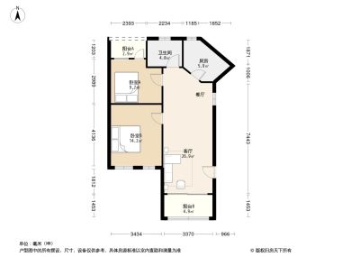
3室1厅1卫1厨
售完名雅苑3居室户型图 | 建面:103.55㎡ | 朝向:东南
- 所属楼盘
价格待定算月供
实际价格以售楼处为准,户型图为开发商提供,具体以实际交房标准为准
微信打开
查看完整户型评测9.2
户型评分
- 基础测评9.3
- 空间测评8.8
- 采光通风9.6
户型信息
- 1个阳台
- 1个明卫
- 明厨
- 明卫
- 明厨
- 双卧朝南
空间测评良好8.8空间测评指标


- 面宽

- 进深
*施工有误差,交付时无法与户型图一致,仅供参考,最终以开发商合同为准
| 面积(㎡) | 面宽(m) | 进深(m) | 评价 | |
|---|---|---|---|---|
| 卫 | 5.3 | 2.3 | 2.3 | 良好 |
| 客厅 | 34.5 | 7.8 | 6.9 | 极佳 |
| 卧室A | 9.7 | 3.5 | 2.9 | 良好 |
| 卧室B | 12.8 | 3.2 | 4 | 良好 |
| 书房 | 5.6 | 2.7 | 2.1 | 良好 |
| 厨房 | 7.3 | 2.5 | 3.3 | 优秀 |
| 阳台 | 4 | 1.5 | 2.7 | 良好 |
*户型数据为人工测量或估算值,可能于实际情况存在误差,仅供参考,实际数据以开发商发布为准。
通风测评极佳9.6


- 开窗

- 风向
*施工有误差,交付时无法与户型图一致,仅供参考,最终以开发商合同为准
采光测评极佳9.6采光测评的指标
| 采光性 | 评价 | |
|---|---|---|
| 卫 | 优秀 | |
| 卧室A | 极佳 | |
| 卧室B | 极佳 | |
| 书房 | 极佳 | |
| 厨房 | 极佳 | |
| 阳台 | 极佳 |
*户型数据为人工测量或估算值,可能于实际情况存在误差,仅供参考,实际数据以开发商发布为准。
房屋细节
卫 5.3㎡ | 面宽2.3m | 进深2.3m
- 空间适中虽面积不大,但卫布局合理,空间适中,满足您日常清洁和洗漱的需求。
- 明卫卫的窗户让自然光与新鲜空气得以自由流通,为居住者打造了一个健康舒适的卫浴空间。
客厅 34.5㎡ | 面宽7.8m | 进深6.9m
- 空间豪华豪华客厅宽敞舒适,无论是家庭聚会还是接待客人,都能展现出主人的尊贵气质。
- 有阳台客厅与阳台相连通,使得整个空间更加开阔明亮,同时也为家人提供了一个互动交流的场所。
卧室A 9.7㎡ | 面宽3.5m | 进深2.9m
空间可容纳
床
1.2m*2m
床头柜X1
0.4m宽
- 空间适中卧室A虽小,却设计得精致而舒适,每一寸空间都得到了充分的利用,为您带来一个宁静而温馨的休憩环境。
优秀卧室A朝南,光线充足且宜人,通风条件良好,为您的私密空间打造一处自然舒适的休憩之所,无论是午后放松还是夜晚入眠,都能感受到阳光的温暖守护。- 有窗卧室A窗户明亮通透,将室外的清新空气与阳光引入室内,让您在此享受宁静与舒适的时光。
卧室B 12.8㎡ | 面宽3.2m | 进深4m
空间可容纳
床
1.8m*2m
床头柜X2
0.4m宽
衣柜
0.6m深
- 空间适中卧室B设计得十分巧妙,虽然面积不大,但每一寸都被精心打造,为您打造出一个既温馨又舒适的休憩之所。
优秀卧室B朝向南方,光线明亮,通风流畅,为您的私密空间增添一份自然的宁静与舒适,无论是短暂休息还是深度睡眠,都能感受到阳光的温馨呵护。- 有窗卧室B窗户设计别致,将自然的美景与室内空间完美融合,为您营造一个既舒适又充满自然气息的生活空间。
书房 5.6㎡ | 面宽2.7m | 进深2.1m
- 空间适中书房虽小,却设计得十分精致,每一寸空间都被合理利用,为您营造出一个既舒适又温馨的休憩环境。
优秀书房朝南,光线明亮,通风效果上佳,为您的私密空间带来一份自然的舒适与宁静,无论是午后小憩还是夜晚安睡,都能感受到阳光的温暖照耀。- 有窗书房窗户通透,让光线与空气自由流通,为您打造一个明亮舒适的休息空间,感受自然的呵护。
厨房 7.3㎡ | 面宽2.5m | 进深3.3m
- 空间较大厨房面积宽敞,多人协作料理更加高效,同时满足家电摆放需求,让生活更美好。
- 明厨宽敞明亮的厨房窗户,让自然光洒满每个角落,烹饪时心情更加愉悦,享受与家人共度的美好时光。
对此楼盘感兴趣的人还浏览了
查看全部





优秀























