- 116.97㎡
- 92.8㎡
- 121.51㎡
- 71.04㎡
- 81.62㎡
- 78.03㎡
- 61.74㎡
- 106.96㎡
- 121.21㎡
- 69.74㎡
- 79㎡
- 128.09㎡
- 122.89㎡
- 116㎡
- 114.21㎡
- 95㎡
- 97.77㎡
- 103㎡
- 61.74㎡
- 124.55㎡
- 86.16㎡
- 131.15㎡
- 61.24㎡
- 71.2㎡
- 105.63㎡
- 165.14㎡
- 87㎡
- 117㎡
- 75.42㎡
- 82.8㎡
- 85㎡
- 118.16㎡
- 91.33㎡
- 96.32㎡
- 95.91㎡
- 91.82㎡
- 103㎡
- 53.13㎡
- 121.51㎡
- 90㎡
- 123.19㎡
- 126.5㎡
- 121.36㎡
- 60㎡
- 119.6㎡
- 98.88㎡
- 99.89㎡
- 100.08㎡
- 82.8㎡
- 116.97㎡
- 72.52㎡
- 53.13㎡
- 78.96㎡
- 59.81㎡
- 81.22㎡
- 80.21㎡
- 71.2㎡
- 141.08㎡
- 71.2㎡
- 138㎡
- 123.45㎡
- 114.21㎡
- 69.74㎡
- 105.49㎡
- 87㎡
- 128.74㎡
- 121.51㎡
- 134.15㎡
- 59.95㎡
- 78.96㎡
- 61.74㎡
- 126.76㎡
- 122.48㎡
- 141.08㎡
- 78.22㎡
- 119.6㎡
- 123.19㎡
- 53.4㎡
- 117.47㎡
- 129㎡
- 103.58㎡
- 132.23㎡
- 78.96㎡
- 103㎡
- 122.89㎡
- 99.89㎡
- 126.32㎡
- 59.81㎡
- 61.74㎡
- 123㎡
- 95.91㎡
- 78.96㎡
- 165.14㎡
- 71.38㎡
- 87㎡
- 59.81㎡
- 79.52㎡
- 59.98㎡
- 85㎡
- 95.6㎡
- 76.69㎡
- 120㎡
- 70㎡
- 91㎡
- 79㎡
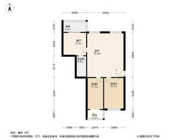
3室2厅1卫1厨
售完79中万泰花园3居室户型图 | 建面:97.77㎡ | 朝向:南北通透
- 所属楼盘
价格待定算月供
实际价格以售楼处为准,户型图为开发商提供,具体以实际交房标准为准
微信打开
查看完整户型评测9.1
户型评分
- 基础测评9
- 空间测评8.9
- 采光通风9.4
户型信息
- 明厨
- 户型方正
- 明厨
- 客厅朝南
- 双卧朝南
- 主卧朝南
空间测评良好8.9空间测评指标


- 面宽

- 进深
*施工有误差,交付时无法与户型图一致,仅供参考,最终以开发商合同为准
| 面积(㎡) | 面宽(m) | 进深(m) | 评价 | |
|---|---|---|---|---|
| 客厅 | 31.2 | 7.5 | 4.8 | 极佳 |
| 餐厅 | 9.2 | 3.1 | 3.1 | 良好 |
| 卧室A | 14 | 3.2 | 4.3 | 优秀 |
| 卧室B | 14.5 | 3.4 | 4.3 | 优秀 |
| 书房 | 7.9 | 2.6 | 3.1 | 良好 |
| 厨房 | 5 | 3 | 1.6 | 良好 |
| 卫生间 | 5.7 | 2.1 | 2.8 | 良好 |
*户型数据为人工测量或估算值,可能于实际情况存在误差,仅供参考,实际数据以开发商发布为准。
通风测评优秀9.4


- 开窗

- 风向
*施工有误差,交付时无法与户型图一致,仅供参考,最终以开发商合同为准
采光测评优秀9.4采光测评的指标
| 采光性 | 评价 | |
|---|---|---|
| 客厅 | 极佳 | |
| 卧室A | 极佳 | |
| 卧室B | 极佳 | |
| 书房 | 极佳 | |
| 厨房 | 极佳 |
*户型数据为人工测量或估算值,可能于实际情况存在误差,仅供参考,实际数据以开发商发布为准。
房屋细节
客厅 31.2㎡ | 面宽7.5m | 进深4.8m
- 空间豪华客厅空间宽敞,豪华而不失舒适,是家人欢聚、朋友畅谈的理想场所。
- 朝东清晨的阳光透过朝东的窗户洒进客厅,为这里带来了一片温馨与宁静。
- 舒适客厅宽敞通透,窗户设计独特,自然光自由流淌,无论是阅读学习还是休闲放松,都能在此感受到生活的宁静与美好。
卧室A 14㎡ | 面宽3.2m | 进深4.3m
空间可容纳
床
1.8m*2m
床头柜X2
0.4m宽
衣柜
0.6m深
- 空间较大卧室A面积大,采光充足,为您打造明亮舒适的居住空间。
优秀卧室A朝南,光线柔和而通透,通风顺畅,为您的私密空间增添一份自然的舒适与宁静,无论是午后小憩还是夜晚安睡,都能享受到阳光的温馨照耀。- 有窗卧室A的窗户,如同眼睛般明亮,让您在舒适的床上,就能欣赏到窗外的美丽景色,感受生活的无限美好。
卧室B 14.5㎡ | 面宽3.4m | 进深4.3m
空间可容纳
床
1.8m*2m
床头柜X2
0.4m宽
衣柜
0.6m深
- 空间较大宽敞明亮的卧室B,让您的生活更加轻松惬意。
优秀朝南的卧室B采光优良,通风效果出色,为您的私人领地带来一份自然的惬意与舒适,无论是午后小憩还是夜晚安睡,都能沐浴在温暖的阳光中。- 有窗卧室B设有明亮窗户,窗外绿意盎然,让您在休息时刻也能尽享大自然的馈赠,舒缓身心。
书房 7.9㎡ | 面宽2.6m | 进深3.1m
空间可容纳
床
1.2m*2m
床头柜X1
0.4m宽
- 空间适中尽管书房面积有限,但设计师却巧妙地利用空间,打造出一个精致而舒适的休憩之所,让您感受到家的温馨与惬意。
- 朝东朝东的书房迎接清晨的第一缕阳光,为您开启全新的一天,带来无尽的活力与希望,让您在早晨充满能量。
- 有窗书房的窗户,如同自然的画布,随着季节的变换而展现出不同的风景,让您在此享受大自然的馈赠与恩赐。
厨房 5㎡ | 面宽3m | 进深1.6m
- 空间适中厨房空间布局合理,既方便日常烹饪,又能保持空间的整洁与美观。
- 明厨明亮窗户的厨房设计,让自然光照亮每一个角落,烹饪时心情更加舒畅,享受家的温馨与美好。
卫生间 5.7㎡ | 面宽2.1m | 进深2.8m
- 空间适中虽面积不大,但卫生间布局合理,空间适中,满足您日常清洁和洗漱的需求。
3室2厅1卫售完9.2“优秀”
价格待定116.97㎡
3室1厅1卫售完8.3“良好”
价格待定92.80㎡
3室2厅1卫售完9.3“优秀”
价格待定121.51㎡
3室2厅1卫售完9.4“优秀”
价格待定106.96㎡
3室2厅2卫售完9.3“优秀”
价格待定121.21㎡
3室1厅1卫售完8.9“良好”
价格待定69.74㎡
3室1厅1卫售完9.6“极佳”
价格待定128.09㎡
3室2厅1卫售完9.3“优秀”
价格待定122.89㎡
3室1厅2卫售完9.3“优秀”
价格待定116.00㎡
3室2厅1卫售完9.4“优秀”
价格待定114.21㎡
3室2厅1卫售完8.6“良好”
价格待定95.00㎡
3室2厅1卫售完9.4“优秀”
价格待定124.55㎡
3室2厅1卫售完8.9“良好”
价格待定131.15㎡
3室2厅1卫售完9.3“优秀”
价格待定105.63㎡
3室2厅1卫售完8.6“良好”
价格待定87.00㎡
3室2厅1卫售完9.3“优秀”
价格待定118.16㎡
3室1厅1卫售完9“优秀”
价格待定95.91㎡
3室1厅1卫售完9.1“优秀”
价格待定91.82㎡
3室2厅1卫售完9.3“优秀”
价格待定103.00㎡
3室2厅1卫售完9.3“优秀”
价格待定121.51㎡
3室1厅1卫售完9“优秀”
价格待定90.00㎡
3室1厅1卫售完9.5“极佳”
价格待定123.19㎡
3室2厅1卫售完9.3“优秀”
价格待定126.50㎡
3室2厅1卫售完9.4“优秀”
价格待定121.36㎡
3室2厅1卫售完9.3“优秀”
价格待定119.60㎡
3室2厅1卫售完8.6“良好”
价格待定98.88㎡
3室2厅1卫售完9.2“优秀”
价格待定116.97㎡
3室2厅1卫售完8.9“良好”
价格待定141.08㎡
3室2厅1卫售完9.2“优秀”
价格待定138.00㎡
3室2厅1卫售完9.3“优秀”
价格待定123.45㎡
3室2厅1卫售完9.4“优秀”
价格待定114.21㎡
3室1厅1卫售完8.9“良好”
价格待定69.74㎡
3室2厅1卫售完9.2“优秀”
价格待定105.49㎡
3室2厅1卫售完8.9“良好”
价格待定87.00㎡
3室2厅1卫售完9.3“优秀”
价格待定128.74㎡
3室2厅1卫售完9.2“优秀”
价格待定121.51㎡
3室2厅1卫售完9.2“优秀”
价格待定134.15㎡
3室2厅1卫售完9.2“优秀”
价格待定126.76㎡
3室2厅1卫售完9.2“优秀”
价格待定122.48㎡
3室2厅1卫售完9.2“优秀”
价格待定141.08㎡
3室2厅1卫售完9.4“优秀”
价格待定119.60㎡
3室2厅1卫售完9.4“优秀”
价格待定123.19㎡
3室2厅1卫售完9.2“优秀”
价格待定117.47㎡
3室2厅1卫售完9.3“优秀”
价格待定129.00㎡
3室2厅1卫售完9“优秀”
价格待定132.23㎡
3室1厅1卫售完9.4“优秀”
价格待定103.00㎡
3室2厅1卫售完9.3“优秀”
价格待定122.89㎡
3室1厅1卫售完9“优秀”
价格待定99.89㎡
3室2厅1卫售完9.4“优秀”
价格待定126.32㎡
3室2厅2卫售完9.2“优秀”
价格待定123.00㎡
3室1厅1卫售完8.8“良好”
价格待定95.91㎡
3室1厅1卫售完8.6“良好”
价格待定78.96㎡
3室1厅1卫售完8.8“良好”
价格待定87.00㎡
3室1厅1卫售完8.9“良好”
价格待定79.52㎡
3室2厅1卫售完8.7“良好”
价格待定95.60㎡
对此楼盘感兴趣的人还浏览了
查看全部





优秀






































































































