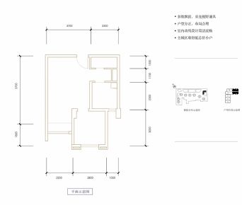
4室2厅2卫1厨
售完2#标准层A2户型 | 建面:127㎡ | 朝向:
- 所属楼栋
2栋1栋
- 所属楼盘
价格待定算月供
实际价格以售楼处为准,户型图为开发商提供,具体以实际交房标准为准
微信打开
查看完整户型评测户型信息
- 104.46㎡
套内面积
127㎡建筑面积
-22.54㎡公摊面积
- 82.25%
得房率
104.46㎡套内面积
÷127㎡建筑面积
- 2个阳台
- 4个飘窗
- 1个明卫
- 独立衣帽间
- 南北通透
- 户型方正
- 全明格局
- 干湿分离
房屋细节
卫A 3.8㎡ | 面宽1.7m | 进深2.2m
- 空间适中卫A设计精巧,空间利用恰到好处,虽小却五脏俱全,满足日常所需。
- 明卫窗户的加入让卫A不再封闭,空气流通更顺畅,居住体验更舒适。
卫B 4㎡ | 面宽1.9m | 进深2.1m
- 空间适中卫B空间适中,既满足日常需求,又保持舒适感,让您享受轻松的洗浴时光。
客餐厅 23㎡ | 面宽6.4m | 进深4.1m
- 紧凑实用这个客餐厅虽然面积不大,却展现出小巧精致的特点。紧凑而实用的设计风格,使得每一寸空间都得到了合理利用。尽管空间有限,却无损于舒适感。
优秀客餐厅设计朝南,明亮宽敞,阳光成为最美的装饰,让您的生活更加多彩与温馨,是您放松身心、品味生活的理想场所。- 带飘窗拥有飘窗的客餐厅,不仅增加了空间感,更让阳光与清风自由穿梭,为您带来无尽的舒适与惬意。
- 有阳台客餐厅与阳台相连通,使得整个空间更加开阔明亮,同时也为家人提供了一个互动交流的场所。
卧室A 6.8㎡ | 面宽2.3m | 进深3m
- 空间适中精致小巧的卧室A,虽然面积不足10平米,但设计巧妙,布局合理,每一寸空间都得到了充分利用,为您打造了一个温馨而舒适的休憩角落
- 有飘窗卧室A的飘窗设计,让自然光线与室内空间完美融合,为您带来一份轻松愉悦的生活体验。
卧室B 7.4㎡ | 面宽2.5m | 进深2.9m
空间可容纳
床
1.2m*2m
床头柜X1
0.4m宽
- 空间适中精致小巧的卧室B,虽然面积不大,但设计却充满巧思,每一处都透露着舒适与温馨,让您感受到家的温暖。
- 有飘窗卧室B的飘窗,让窗外美景成为室内装饰,为您带来一份愉悦的视觉享受。
卧室C 12.3㎡ | 面宽3.5m | 进深3.9m
空间可容纳
床
1.8m*2m
床头柜X2
0.4m宽
衣柜
0.6m深
- 空间适中卧室C虽小,却设计得十分用心,每一寸空间都被充分利用,为您打造出一个既舒适又温馨的休憩角落。
优秀朝南的卧室C光线自然,通风良好,为您的私人空间增添一份自然的舒适与宁静,无论是短暂休息还是夜晚安睡,都能沐浴在温暖的阳光之中。
优秀站在卧室C的落地窗前,您可以尽情欣赏窗外的美景,感受生活的宁静与美好。- 次卧有阳台卧室C带阳台,让您的生活更加丰富多彩。您可以在这里进行各种户外活动,感受大自然的魅力与活力,享受生活的美好与精彩。带有阳台的卧室C,让您的居住体验更上一层楼。在这里,您可以摆放喜爱的绿植,或是放置一张舒适的躺椅,享受悠闲的时光,感受生活的美好。
书房 6.4㎡ | 面宽2.2m | 进深3m
- 空间适中书房虽小,却设计得十分用心,每一寸空间都被充分利用,为您打造出一个既舒适又温馨的休憩角落。
优秀书房宽敞明亮,落地窗让光线自由穿透,让您在舒适的床上尽情享受宁静和美好的一天开始。
厨房 4.4㎡ | 面宽1.7m | 进深2.6m
- 空间适中精心设计的厨房空间,既实用又舒适,让您的烹饪之旅更加轻松愉快。
- 厨房带阳台厨房有小阳台,方便储物。
优惠活动
查看更多优惠
置业顾问(8)
- 免费咨询
- 专业服务
- 区域解读
- 户型分析
查看全部
对此楼盘感兴趣的人还浏览了
查看全部




优秀





















