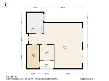
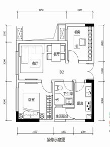
2室1厅1卫1厨
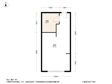
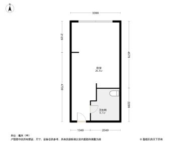
售完合能橙中心2居室户型图 | 建面:54.26㎡ | 朝向:朝东
- 所属楼盘
价格待定算月供
实际价格以售楼处为准,户型图为开发商提供,具体以实际交房标准为准
微信打开
查看完整户型评测9
户型评分
- 基础测评8.8
- 空间测评9
- 采光通风9.3
户型信息
- 1个明卫
- 明厨
- 户型方正
- 明卫
- 明厨
空间测评优秀9空间测评指标

*施工有误差,交付时无法与户型图一致,仅供参考,最终以开发商合同为准
- 卧室:良好
- 厨房:极佳
- 卫生间:良好
通风测评优秀9.3


- 开窗

- 风向
*施工有误差,交付时无法与户型图一致,仅供参考,最终以开发商合同为准
采光测评优秀9.3采光测评的指标
| 采光性 | 评价 | |
|---|---|---|
| 卧室 | 极佳 | |
| 厨房 | 普通 | |
| 卫生间 | 极佳 |
*户型数据为人工测量或估算值,可能于实际情况存在误差,仅供参考,实际数据以开发商发布为准。
房屋细节
卧室
空间可容纳
床
1.8m*2m
床头柜X2
0.4m宽
衣柜
0.6m深
- 空间适中虽然卧室面积不足,但设计却独具匠心,布局合理,让每一寸空间都发挥出其最大的价值,为您带来舒适的休憩体验。
- 朝东卧室朝东,清晨的阳光照亮整个空间,为您带来新一天的活力与期待,让您在早晨就能感受到生活的美好与希望。
- 有窗卧室的窗户设计独具匠心,既保证了室内的采光与通风,又让窗外的美景尽收眼底。
厨房
- 空间较大厨房宽敞明亮,多人同时烹饪也能保持舒适感,家电摆放方便,提升烹饪效率。
卫生间
- 空间适中精致设计的卫生间,空间利用恰到好处,让您的洗浴体验更加舒适愉悦。
- 明卫透过卫生间的窗户,可以感受到自然的气息,让卫浴时光变得更加轻松愉悦。
2室1厅1卫售完9“优秀”
价格待定54.03㎡
2室2厅1卫售完9“优秀”
价格待定55.70㎡
2室1厅1卫售完9.1“优秀”
价格待定54.26㎡
2室1厅1卫售完9.2“优秀”
价格待定59.78㎡
2室2厅1卫售完9.1“优秀”
价格待定59.88㎡
2室1厅1卫售完9“优秀”
价格待定54.30㎡
2室2厅1卫售完9.2“优秀”
价格待定60.50㎡
2室1厅1卫售完9“优秀”
价格待定55.00㎡
2室1厅1卫售完9.3“优秀”
价格待定60.00㎡
2室3厅1卫售完9.3“优秀”
价格待定75.00㎡
2室1厅1卫售完9“优秀”
价格待定54.03㎡
2室2厅1卫售完10“极佳”
0.0060.00㎡
2室2厅1卫售完10“极佳”
价格待定50.39㎡
2室2厅1卫售完10“极佳”
价格待定61.02㎡
2室2厅1卫售完10“极佳”
价格待定54.81㎡
2室2厅1卫售完10“极佳”
价格待定55.52㎡
2室2厅1卫售完10“极佳”
价格待定54.40㎡
2室2厅1卫售完10“极佳”
价格待定58.89㎡
对此楼盘感兴趣的人还浏览了
查看全部




























































