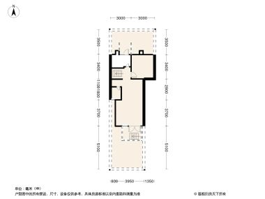
4室2厅2卫1厨
售完昌建星悦城4居室户型图 | 建面:127㎡ | 朝向:朝南
- 所属楼盘
价格待定算月供
实际价格以售楼处为准,户型图为开发商提供,具体以实际交房标准为准
微信打开
查看完整户型评测9
户型评分
- 基础测评9
户型信息
- 4个阳台
- 2个明卫
- 明厨
- 户型方正
- 明卫
- 明厨
- 主卧朝南
3室1厅1卫售完8.6“良好”
价格待定88.38㎡
3室2厅2卫售完9.2“优秀”
价格待定101.00㎡
3室2厅3卫售完7.5“普通”
价格待定108.00㎡
3室2厅2卫售完9.5“极佳”
价格待定120.45㎡
3室2厅2卫售完9.5“极佳”
价格待定110.00㎡
3室2厅2卫售完9.5“极佳”
价格待定106.15㎡
3室2厅1卫售完8“良好”
价格待定92.01㎡
3室2厅1卫售完8“良好”
价格待定90.18㎡
3室2厅2卫售完10“极佳”
价格待定115.03㎡
3室2厅1卫售完8.5“良好”
价格待定93.92㎡
3室2厅1卫售完8.5“良好”
价格待定93.92㎡
3室2厅1卫售完8.8“良好”
价格待定108.00㎡
3室2厅1卫售完7.5“普通”
价格待定92.45㎡
3室2厅2卫售完9.5“极佳”
价格待定113.00㎡
3室2厅1卫售完7.8“普通”
价格待定95.00㎡
3室2厅1卫售完8.5“良好”
价格待定93.00㎡
3室2厅1卫售完7“普通”
价格待定93.90㎡
3室2厅2卫售完10“极佳”
价格待定113.00㎡
3室2厅2卫售完10“极佳”
价格待定118.00㎡
3室2厅2卫售完9.5“极佳”
价格待定127.18㎡
3室2厅1卫售完9.1“优秀”
价格待定80.00㎡
3室2厅2卫售完10“极佳”
价格待定101.89㎡
对此楼盘感兴趣的人还浏览了
查看全部









































