- 173.92㎡
- 104.98㎡
- 155.54㎡
- 121.03㎡
- 76㎡
- 94㎡
- 133㎡
- 120.47㎡
- 89.38㎡
- 136㎡
- 89.51㎡
- 94.04㎡
- 82.74㎡
- 173㎡
- 119.77㎡
- 94㎡
- 93.75㎡
- 179㎡
- 89㎡
- 89㎡
- 89.8㎡
- 94.31㎡
- 119.77㎡
- 82.9㎡
- 133.33㎡
- 82㎡
- 98.77㎡
- 75.3㎡
- 180.06㎡
- 98㎡
- 83㎡
- 89.51㎡
- 120㎡
- 105㎡
- 105㎡
- 180㎡
- 118㎡
- 89㎡
- 82㎡
- 133㎡
- 173㎡
- 163㎡
- 180㎡
- 105㎡
- 95㎡
- 75㎡
- 180㎡
- 120㎡
- 98㎡
- 96㎡
- 95㎡
- 75㎡
- 95㎡
- 67㎡
- 95㎡
- 96㎡
- 95㎡
- 180㎡
- 105㎡
- 155㎡
- 75㎡
- 118㎡
- 89㎡
- 103㎡
- 126㎡
- 84㎡
- 82㎡
- 133㎡
- 173㎡
- 163㎡
- 155㎡
5室3厅2卫1厨
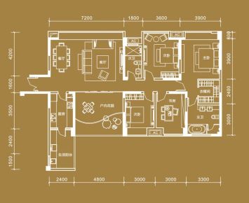
售完一期5号楼标准层T5-1B户型(售罄) | 建面:126㎡ | 朝向:
- 所属楼栋
1期5栋
- 所属楼盘
价格待定算月供
实际价格以售楼处为准,户型图为开发商提供,具体以实际交房标准为准
微信打开
查看完整户型评测户型信息
- 1个阳台
- 1个明卫
- 独立衣帽间
- 主卧带卫
- 观景飘窗
房屋细节
客厅 26㎡ | 面宽9m | 进深4.6m
- 空间宽敞宽敞的客厅是家的中心,承载着家人的欢声笑语和美好回忆,是生活中不可或缺的一部分。
优秀落地窗为客厅带来了更加开阔的视野,让您在享受舒适居住体验的同时,也能领略到户外风光的无限魅力。
主卧 12.2㎡ | 面宽2.9m | 进深4.9m
空间可容纳
床
1.8m*2m
床头柜X2
0.4m宽
衣柜
0.6m深
电视柜
0.5m*1.5m
- 紧凑实用紧凑而精致的主卧设计,让您的生活更加便捷与美好。
优秀主卧朝南,让阳光洒满您的私人空间,营造舒适氛围。- 舒适主卧拥有明亮的窗户,让自然光与新鲜空气自由流淌,为您打造一个健康舒适的生活空间。
次卧 9.5㎡ | 面宽2.4m | 进深4.2m
空间可容纳
床
1.2m*2m
床头柜X1
0.4m宽
- 空间适中精致小巧的次卧,设计得十分精致,每一寸空间都得到了合理的利用,让您在繁忙的生活中拥有一个宁静的休憩之所。
优秀朝南的次卧采光优良,通风效果出色,为您的私人领地带来一份自然的惬意与舒适,无论是午后小憩还是夜晚安睡,都能沐浴在温暖的阳光中。- 有窗次卧的窗户,如同自然的画布,随着季节的变换而展现出不同的风景,让您在此享受大自然的馈赠与恩赐。
次卧A 7.1㎡ | 面宽2.1m | 进深3.4m
空间可容纳
床
1.2m*2m
床头柜X1
0.4m宽
- 空间适中次卧A设计得十分精巧,每一寸空间都得到了合理的利用,既实用又美观,让您在有限的空间里享受无限的舒适。
- 有窗次卧A窗户设计合理,让自然光均匀洒满每个角落,为您打造一个明亮且舒适的休息环境。
书房 8.5㎡ | 面宽2.5m | 进深3.4m
空间可容纳
床
1.2m*2m
床头柜X1
0.4m宽
- 空间适中虽然书房面积不足,但设计却独具匠心,布局合理,让每一寸空间都发挥出其最大的价值,为您带来舒适的休憩体验。
- 有窗书房窗户设计合理,让自然光均匀洒满每个角落,为您打造一个明亮且舒适的休息环境。
厨房 5.1㎡ | 面宽1.8m | 进深2.9m
- 空间适中适中的厨房面积,既满足日常烹饪需求,又能让厨房保持整洁有序。
- 明厨宽敞的厨房窗户设计,让自然光与室内空间融为一体,营造出一种明亮、舒适的烹饪氛围。
- 厨房带阳台厨房有小阳台,方便储物。
卫生间 4.6㎡ | 面宽1.9m | 进深2.4m
- 空间适中精致设计的卫生间,空间利用恰到好处,让您的洗浴体验更加舒适愉悦。
卫生间B 3.9㎡ | 面宽1.9m | 进深2m
- 空间适中卫生间B虽小,但空间布局合理,实用性强,为您打造便捷的洗漱空间。
- 明卫明亮的光线透过卫生间B的窗户洒落,不仅提升了空间感,还使卫浴体验更加愉悦。
4室2厅2卫售完0“普通”
价格待定173.92㎡
4室2厅2卫售完0“普通”
价格待定155.54㎡
4室2厅2卫售完0“普通”
价格待定173.00㎡
4室2厅2卫售完0“普通”
价格待定179.00㎡
4室2厅2卫售完0“普通”
价格待定180.06㎡
4室2厅2卫售完0“普通”
价格待定180.00㎡
4室4厅2卫售完0“普通”
0.00173.00㎡
4室3厅2卫售完0“普通”
0.00163.00㎡- 专家解读
4室2厅2卫售完0“普通”
价格待定180.00㎡ - 专家解读
4室2厅2卫售完0“普通”
价格待定180.00㎡ - 专家解读
4室2厅2卫售完0“普通”
价格待定120.00㎡ - 专家解读
4室2厅2卫售完0“普通”
价格待定180.00㎡ - 专家解读
4室2厅2卫售完0“普通”
价格待定89.00㎡
4室2厅2卫售完0“普通”
价格待定173.00㎡- 专家解读
4室3厅2卫售完0“普通”
价格待定163.00㎡
4室2厅3卫售完0“普通”
7500.00元/平方米155.00㎡
对此楼盘感兴趣的人还浏览了
天府半岛
23800元/平方米
天府新区-华阳用户评分9.15分
在售江景地产地铁沿线装修交付
龙湖恒邦·花千樾
700万元/套起
天府新区-华阳用户评分9.39分
在售地铁沿线
华润置地|建发房产 天府和鸣
28500元/平方米
天府新区-华阳用户评分9.12分
在售装修交付洋房
查看全部



优秀





































































