- 116㎡
- 116.78㎡
- 147.01㎡
- 116.78㎡
- 147.01㎡
- 196.55㎡
- 196.55㎡
- 86.74㎡
- 117.8㎡
- 88.54㎡
- 147㎡
- 147㎡
- 87.5㎡
- 132.96㎡
- 133.23㎡
- 133.23㎡
- 147㎡
- 87.5㎡
- 143.39㎡
- 132㎡
- 88.54㎡
- 85.41㎡
- 143.39㎡
- 143.39㎡
- 147㎡
- 147㎡
- 115.02㎡
- 88.54㎡
- 88.54㎡
- 171㎡
- 196㎡
- 138㎡
- 85㎡
- 115㎡
- 132㎡
- 148㎡
- 87㎡
- 147.15㎡
- 347.06㎡
- 171.53㎡
- 143.21㎡
- 143.21㎡
- 138.46㎡
- 256.93㎡
- 256.93㎡
- 256.93㎡
- 147.01㎡
- 143㎡
- 85㎡
- 132㎡
- 87㎡
- 115㎡
- 147㎡
- 171㎡
- 196㎡
3室2厅2卫1厨
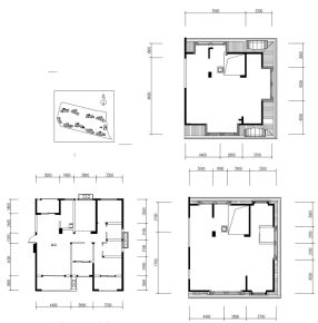
售完龙光天悦龙庭3居室户型图 | 建面:116㎡ | 朝向:朝南
- 所属楼盘
价格待定算月供
实际价格以售楼处为准,户型图为开发商提供,具体以实际交房标准为准
微信打开
查看完整户型评测9.4
户型评分
- 基础测评9.5
- 空间测评9
- 采光通风9.5
户型信息
- 2个阳台
- 2个明卫
- 明厨
- 次卧带卫生间
- 大面宽阳台
- 户型方正
- 明卫
- 明厨
- 双阳台
- 主卧朝南
空间测评优秀9空间测评指标


- 面宽

- 进深
*施工有误差,交付时无法与户型图一致,仅供参考,最终以开发商合同为准
| 面积(㎡) | 面宽(m) | 进深(m) | 评价 | |
|---|---|---|---|---|
| 客厅 | 34 | 7.1 | 7.5 | 极佳 |
| 卧室A | 11.5 | 3.1 | 4 | 良好 |
| 卧室B | 9.9 | 2.9 | 4 | 良好 |
| 卧室C | 16.1 | 3.6 | 5.8 | 极佳 |
| 厨房 | 7.4 | 1.9 | 4 | 极佳 |
| 卫生间A | 4.4 | 1.8 | 2.4 | 良好 |
| 卫生间B | 4.5 | 2.5 | 1.8 | 良好 |
| 阳台A | 5.3 | 2.8 | 1.9 | 良好 |
| 阳台B | 8.3 | 4.4 | 1.8 | 良好 |
*户型数据为人工测量或估算值,可能于实际情况存在误差,仅供参考,实际数据以开发商发布为准。
通风测评极佳9.5


- 开窗

- 风向
*施工有误差,交付时无法与户型图一致,仅供参考,最终以开发商合同为准
采光测评极佳9.5采光测评的指标
| 采光性 | 评价 | |
|---|---|---|
| 卧室A | 极佳 | |
| 卧室B | 极佳 | |
| 卧室C | 优秀 | |
| 厨房 | 良好 | |
| 卫生间A | 极佳 | |
| 卫生间B | 极佳 | |
| 阳台A | 极佳 | |
| 阳台B | 极佳 |
*户型数据为人工测量或估算值,可能于实际情况存在误差,仅供参考,实际数据以开发商发布为准。
房屋细节
客厅 34㎡ | 面宽7.1m | 进深7.5m
- 空间豪华客厅空间宽敞,豪华而不失舒适,是家人欢聚、朋友畅谈的理想场所。
- 有阳台客厅附带阳台,这一设计不仅让空间更通透,还增添了几分生活的情趣。
卧室A 11.5㎡ | 面宽3.1m | 进深4m
空间可容纳
床
1.8m*2m
床头柜X2
0.4m宽
衣柜
0.6m深
- 空间适中精致小巧的卧室A,虽然面积不大,但设计却充满巧思,每一处都透露着舒适与温馨,让您感受到家的温暖。
- 有窗卧室A的窗户,如同眼睛般明亮,让您在舒适的床上,就能欣赏到窗外的美丽景色,感受生活的无限美好。
卧室B 9.9㎡ | 面宽2.9m | 进深4m
空间可容纳
床
1.2m*2m
床头柜X1
0.4m宽
- 空间适中尽管卧室B面积不大,但设计却十分巧妙,每一寸空间都被精心打造,为您打造出一个既温馨又舒适的休憩空间。
- 有窗卧室B窗户设计合理,让自然光均匀洒满每个角落,为您打造一个明亮且舒适的休息环境。
- 次卧有阳台卧室B的阳台,是您放松心情的好去处。您可以在这里欣赏美丽的夜景,感受夜晚的宁静与神秘,享受生活的宁静与美好。
卧室C 16.1㎡ | 面宽3.6m | 进深5.8m
空间可容纳
床
1.8m*2m
床头柜X2
0.4m宽
衣柜
0.6m深
- 空间较大宽敞明亮的卧室C,让您的居住体验更加美好。
优秀卧室C朝南,阳光明媚,空气流通,为您的私密空间营造一份自然的宁静与温馨,无论是短暂休息还是深度睡眠,都能感受到阳光的温暖守护。- 有窗卧室C窗户敞亮,将外界的美景引入室内,让您每日清晨都能沐浴在自然的阳光下,感受生活的美好。
- 次卧有阳台带有阳台的卧室C,让您的生活更加浪漫。您可以在这里点燃香薰蜡烛,营造浪漫的氛围,享受与伴侣的甜蜜时光。
厨房 7.4㎡ | 面宽1.9m | 进深4m
- 空间较大宽敞的厨房空间,让多人协作料理更加轻松,同时容纳冰箱等家电,满足生活所需。
- 明厨厨房的窗户带来明媚光线,让烹饪环境更加舒适,每一道菜肴都仿佛沐浴在阳光之中,增添家的温馨。
- 厨房带阳台厨房有小阳台,方便储物。
卫生间A 4.4㎡ | 面宽1.8m | 进深2.4m
- 空间适中虽面积不大,但卫生间A布局合理,空间适中,满足您日常清洁和洗漱的需求。
- 明卫有了窗户的卫生间A,通风换气更加高效,有效避免了潮湿和细菌滋生。
卫生间B 4.5㎡ | 面宽2.5m | 进深1.8m
- 空间适中卫生间B空间适中,既不过于紧凑也不过于空旷,让您的洗浴体验更加舒适自然。
- 明卫卫生间B设有窗户,通风效果更佳,有效减少潮湿,打造健康舒适的卫浴环境。
3室2厅2卫售完9.3“优秀”
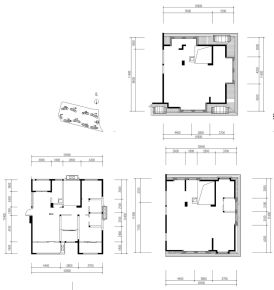
价格待定116.78㎡
3室2厅2卫售完9.3“优秀”
价格待定116.78㎡
3室2厅2卫售完9.3“优秀”
价格待定117.80㎡
3室2厅1卫售完8.9“良好”
价格待定132.96㎡
3室2厅2卫售完8.9“良好”
价格待定133.23㎡
3室2厅2卫售完9.1“优秀”
价格待定133.23㎡
3室2厅2卫售完9“优秀”
价格待定132.00㎡
3室2厅2卫售完9.3“优秀”
价格待定115.02㎡
3室2厅2卫售完10“极佳”
0.00115.00㎡
3室2厅2卫售完9“优秀”
0.00132.00㎡
3室2厅2卫售完10“极佳”
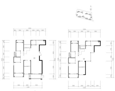
价格待定171.53㎡
3室2厅2卫售完9“优秀”
价格待定147.01㎡
3室2厅2卫售完9“优秀”
价格待定132.00㎡
3室2厅2卫售完10“极佳”
价格待定115.00㎡
对此楼盘感兴趣的人还浏览了
锦江赋
34000元/平方米
锦江-三圣乡用户评分9.2分
在售品牌地产改善优选
鹭湾1号
30399元/平方米
锦江-三圣乡用户评分9.44分
在售装修交付洋房改善优选
建发天府养云
26421元/平方米
锦江-三圣乡用户评分9.56分
在售装修交付洋房
查看全部






优秀




















































