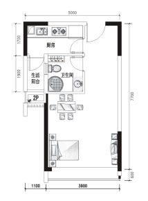
2室1厅1卫1厨
售完尚郡2居室户型图 | 建面:77㎡ | 朝向:西南
- 所属楼盘
价格待定算月供
实际价格以售楼处为准,户型图为开发商提供,具体以实际交房标准为准
微信打开
查看完整户型评测9.3
户型评分
- 基础测评9.3
户型信息
- 1个明卫
- 明厨
- 明卫
- 明厨
- 客厅朝南
- 全明格局
对此楼盘感兴趣的人还浏览了
合景瑧林
60000元/平方米
高新-大源用户评分9.34分
在售改善优选地铁沿线
中洲锦城湖岸2期
33345元/平方米
高新-大源用户评分9.34分
待售湖景地产洋房
远达·天荟云庭
301万元/套起
高新-大源用户评分9.38分
售完
查看全部

























