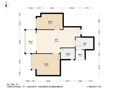
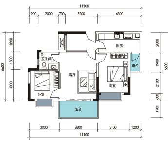
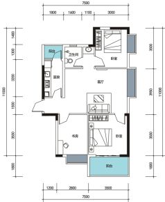
2室1厅1卫1厨
售完双楠锐派2居室户型图 | 建面:67.61㎡ | 朝向:朝西
- 所属楼盘
价格待定算月供
实际价格以售楼处为准,户型图为开发商提供,具体以实际交房标准为准
微信打开
查看完整户型评测8.9
户型评分
- 基础测评8.5
- 空间测评9.6
- 采光通风8.6
户型信息
- 2个阳台
- 1个明卫
- 大面宽阳台
- 明卫
- 双阳台
空间测评极佳9.6空间测评指标

*施工有误差,交付时无法与户型图一致,仅供参考,最终以开发商合同为准
- 客厅:极佳
- 卧室:极佳
- 卧室:极佳
- 厨房:极佳
- 卫生间:极佳
- 阳台:良好
- 阳台:良好
通风测评良好8.6


- 开窗

- 风向
*施工有误差,交付时无法与户型图一致,仅供参考,最终以开发商合同为准
采光测评良好8.6采光测评的指标
| 采光性 | 评价 | |
|---|---|---|
| 卧室 | 普通 | |
| 卧室 | 普通 | |
| 卫生间 | 普通 | |
| 阳台 | 极佳 | |
| 阳台 | 极佳 |
*户型数据为人工测量或估算值,可能于实际情况存在误差,仅供参考,实际数据以开发商发布为准。
房屋细节
客厅
- 空间豪华豪华客厅宽敞舒适,无论是家庭聚会还是接待客人,都能展现出主人的尊贵气质。
- 有阳台客厅带有阳台,这一小空间既可作为观景台,也可作为休闲放松的私人领地。
卧室
空间可容纳
床
1.8m*2m
床头柜X2
0.4m宽
衣柜
0.6m深
- 空间较大宽敞的卧室,是您放松身心、恢复精力的好去处。
- 有窗卧室窗户敞亮,将外界的美景引入室内,让您每日清晨都能沐浴在自然的阳光下,感受生活的美好。
卧室
空间可容纳
床
1.8m*2m
床头柜X2
0.4m宽
衣柜
0.6m深
- 空间较大宽敞明亮的卧室,让您的居住体验更加美好。
- 有窗卧室窗户敞亮,将外界的美景引入室内,让您每日清晨都能沐浴在自然的阳光下,感受生活的美好。
厨房
- 空间较大厨房空间足够大,多人协作料理更加便捷,家电摆放灵活,满足各种烹饪需求。
- 厨房带阳台厨房有小阳台,方便储物。
卫生间
- 空间较大宽敞舒适的卫生间,轻松实现干湿分离,让您的洗浴体验更加舒适自在。
- 明卫卫生间的窗户设计,让自然光与新鲜空气自由流通,为居住者带来清新舒适的卫浴体验。
2室1厅1卫售完9.3“优秀”
价格待定70.41㎡
2室1厅1卫售完9.3“优秀”
价格待定76.57㎡
2室1厅1卫售完8.5“良好”
价格待定67.56㎡
2室2厅1卫售完9.3“优秀”
价格待定73.88㎡
2室1厅1卫售完10“极佳”
价格待定73.83㎡
2室1厅1卫售完10“极佳”
价格待定73.89㎡
2室1厅1卫售完10“极佳”
价格待定67.57㎡
2室1厅1卫售完10“极佳”
价格待定76.00㎡
2室1厅1卫售完10“极佳”
价格待定67.62㎡
2室1厅1卫售完10“极佳”
价格待定70.10㎡
2室1厅1卫售完10“极佳”
价格待定73.49㎡
2室1厅1卫售完10“极佳”
价格待定73.91㎡
2室1厅1卫售完10“极佳”
价格待定71.31㎡
2室1厅1卫售完10“极佳”
价格待定70.42㎡
2室1厅1卫售完10“极佳”
价格待定66.68㎡
2室1厅1卫售完10“极佳”
价格待定76.59㎡
对此楼盘感兴趣的人还浏览了
双楠悦天地
25000元/平方米
武侯-外双楠用户评分9.42分
在售配套商品房改善优选地铁沿线
亿通新天地
16000元/平方米
武侯-外双楠用户评分0.0分
在售低总价地铁沿线
武侯区红牌楼街道肖家河村12组
价格待定
武侯-外双楠用户评分0.0分
待售地铁沿线
查看全部




























