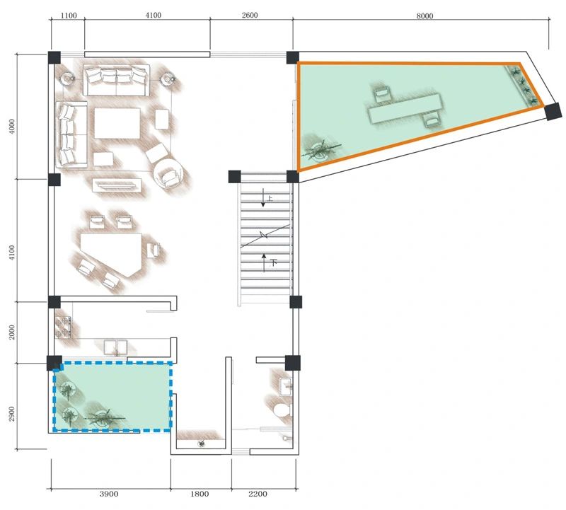
4室2厅4卫1厨
售完一期5-13栋B型 | 建面:276.12㎡ | 朝向:
- 所属楼盘
价格待定算月供
实际价格以售楼处为准,户型图为开发商提供,具体以实际交房标准为准
微信打开
查看完整户型评测10
户型评分
- 基础测评10
户型信息
- 独立车库
- 入户花园
- 露台
- 主卧带卫
对此楼盘感兴趣的人还浏览了
麓湖生态城
46000元/平方米
天府新区-麓湖用户评分9.12分
在售品牌地产改善优选地铁沿线
保利天府瑧悦
300万元/套起
天府新区-麓湖用户评分9.18分
在售改善优选地铁沿线
德信麓湖云庄
33000元/平方米
天府新区-麓湖用户评分9.3分
在售低密居所改善优选装修交付
查看全部


















