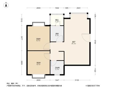
1室1厅1卫1厨
售完金泉阳光畅新苑1居室户型图 | 建面:46.8㎡ | 朝向:东南
- 所属楼盘
价格待定算月供
实际价格以售楼处为准,户型图为开发商提供,具体以实际交房标准为准
微信打开
查看完整户型评测7.9
户型评分
- 基础测评7.8
- 采光通风8
户型信息
- 1个阳台
- 1个明卫
- 明卫
- 客厅朝南
- 主卧朝南
房屋细节
客厅
优秀客厅朝南,采光极佳,明亮舒适,阳光让每一个角落都充满生机与活力,是您感受家庭温馨、享受惬意生活的绝佳之选。
卧室
优秀卧室朝南,光线明亮,通风效果上佳,为您的私密空间带来一份自然的舒适与宁静,无论是午后小憩还是夜晚安睡,都能感受到阳光的温暖照耀。
对此楼盘感兴趣的人还浏览了
查看全部

优秀
















