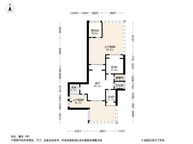
2室1厅1卫1厨
售完西府少城2居室户型图 | 建面:89.85㎡ | 朝向:东南
- 所属楼盘
价格待定算月供
实际价格以售楼处为准,户型图为开发商提供,具体以实际交房标准为准
微信打开
查看完整户型评测9.2
户型评分
- 基础测评9.3
- 空间测评8.9
- 采光通风9.5
户型信息
- 1个阳台
- 1个明卫
- 大面宽阳台
- 户型方正
- 明卫
- 主卧朝南
空间测评良好8.9空间测评指标


- 面宽

- 进深
*施工有误差,交付时无法与户型图一致,仅供参考,最终以开发商合同为准
| 面积(㎡) | 面宽(m) | 进深(m) | 评价 | |
|---|---|---|---|---|
| 客厅 | 29 | 6.3 | 7 | 极佳 |
| 卧室A | 9.7 | 2.9 | 3.5 | 良好 |
| 卧室B | 17.8 | 3.3 | 6.1 | 极佳 |
| 书房 | 4.7 | 1.9 | 2.6 | 良好 |
| 厨房 | 5.4 | 3.5 | 1.8 | 良好 |
| 卫生间 | 4.3 | 2.8 | 1.7 | 良好 |
| 阳台 | 11.6 | 4.7 | 2.6 | 良好 |
*户型数据为人工测量或估算值,可能于实际情况存在误差,仅供参考,实际数据以开发商发布为准。
通风测评极佳9.5


- 开窗

- 风向
*施工有误差,交付时无法与户型图一致,仅供参考,最终以开发商合同为准
采光测评极佳9.5采光测评的指标
| 采光性 | 评价 | |
|---|---|---|
| 客厅 | 普通 | |
| 卧室A | 极佳 | |
| 卧室B | 极佳 | |
| 书房 | 极佳 | |
| 厨房 | 极佳 | |
| 卫生间 | 良好 | |
| 阳台 | 极佳 |
*户型数据为人工测量或估算值,可能于实际情况存在误差,仅供参考,实际数据以开发商发布为准。
房屋细节
客厅 29㎡ | 面宽6.3m | 进深7m
- 空间豪华客厅设计豪华而不失实用,空间布局合理,让人感受到尊贵与舒适的完美结合。
优秀客厅的落地窗设计,让室内空间得以延伸,仿佛与室外景致融为一体,带来无限遐想与宁静。- 有阳台客厅带有阳台,这一小空间既可作为阅读角,也可作为家人聚会的温馨场所。
卧室A 9.7㎡ | 面宽2.9m | 进深3.5m
空间可容纳
床
1.2m*2m
床头柜X1
0.4m宽
- 空间适中卧室A虽小,却精致无比,设计匠心独运,巧妙布局,让每一寸空间都发挥到极致,营造出温馨舒适的休憩氛围。
- 有窗卧室A窗户敞亮,将外界的美景引入室内,让您每日清晨都能沐浴在自然的阳光下,感受生活的美好。
- 次卧有阳台卧室A的阳台,是您放松身心的好去处。您可以在这里摆放绿植,感受自然的气息,让身心得到彻底的放松与舒缓。
卧室B 17.8㎡ | 面宽3.3m | 进深6.1m
空间可容纳
床
1.8m*2m
床头柜X2
0.4m宽
衣柜
0.6m深
- 空间较大宽敞舒适的卧室B,面积超过10平米,为您打造一片宁静的私人天地,无论是放置大型家具还是打造多功能空间,都能轻松满足您的需求。
优秀朝南设计的卧室B,光线柔和而通透,通风流畅,为您的私人领地增添一份自然的惬意与安逸,无论是短暂休息还是长夜安睡,都能享受到阳光的温暖陪伴。- 有窗卧室B窗户设计合理,让自然光均匀洒满每个角落,为您打造一个明亮且舒适的休息环境。
优秀卧室B俯瞰美景,落地窗尽显大气与明亮,让您每天醒来时都能享受自然光的温暖和窗外景色的美丽。- 次卧有阳台带有阳台的卧室B,让您的生活更加多彩。您可以在这里欣赏日出日落,感受大自然的魅力,享受生活的每一刻精彩。
书房 4.7㎡ | 面宽1.9m | 进深2.6m
- 空间适中书房虽小,却设计得十分用心,每一寸空间都被充分利用,为您打造出一个既舒适又温馨的休憩角落。
优秀书房朝南,光线通透且柔和,通风条件优越,为您的私密空间增添一份自然的舒适与安逸,无论是午后放松还是夜晚安睡,都能感受到阳光的温暖守护。
优秀站在书房的落地窗前,您可以尽情领略窗外的美景,感受生活的美好与宁静。- 次卧有阳台书房的阳台设计,让您的居住空间更加通透。您可以在这里呼吸新鲜空气,感受阳光的温暖,享受生活的美好与宁静。
厨房 5.4㎡ | 面宽3.5m | 进深1.8m
- 空间适中厨房面积适中,让您在料理美食的同时,也能享受到宽敞舒适的烹饪空间。
- 明厨厨房的窗户设计巧妙,不仅通风采光好,还增添了几分现代感,让烹饪变得更加愉悦。
卫生间 4.3㎡ | 面宽2.8m | 进深1.7m
- 空间适中卫生间虽小,却别具一格,空间利用得当,让日常洗漱变得轻松愉快。
- 明卫明亮的光线透过卫生间的窗户洒落,不仅提升了空间感,还使卫浴体验更加愉悦。
2室1厅1卫售完9“优秀”
价格待定75.14㎡
2室2厅2卫售完9“优秀”
价格待定83.34㎡
2室1厅1卫售完8.8“良好”
价格待定89.59㎡
2室1厅1卫售完9.3“优秀”
价格待定75.22㎡
2室1厅1卫售完9.1“优秀”
价格待定78.76㎡
2室1厅1卫售完9.3“优秀”
价格待定73.67㎡
2室1厅1卫售完9.5“极佳”
价格待定75.23㎡
2室2厅1卫售完8.8“良好”
价格待定88.57㎡
2室2厅1卫售完9.5“极佳”
价格待定89.60㎡
2室1厅1卫售完9.3“优秀”
价格待定52.84㎡
2室2厅1卫售完10“极佳”
价格待定89.05㎡
2室2厅1卫售完10“极佳”
价格待定89.05㎡
2室2厅1卫售完10“极佳”
价格待定89.04㎡
2室2厅1卫售完10“极佳”
价格待定89.71㎡
2室2厅1卫售完10“极佳”
价格待定75.23㎡
2室2厅1卫售完10“极佳”
价格待定75.22㎡
2室2厅1卫售完10“极佳”
价格待定89.30㎡
对此楼盘感兴趣的人还浏览了
富力U-ONE
21000元/平方米
青羊-天府广场用户评分8.89分
待售装修交付地铁沿线
西派少城项目
28000元/平方米
青羊-天府广场用户评分9.29分
售完改善优选地铁沿线
飞大美誉
18000元/平方米
青羊-天府广场用户评分0.0分
在售小户型地铁沿线
查看全部





优秀

































