1室1卫
售完财富中心1居室户型图 | 建面:26.33㎡ | 朝向:朝西
- 所属楼盘
价格待定算月供
实际价格以售楼处为准,户型图为开发商提供,具体以实际交房标准为准
微信打开
查看完整户型评测8.4
户型评分
- 基础测评7
- 空间测评8.5
- 采光通风10
户型信息
- 1个明卫
- 次卧带卫生间
- 明卫
空间测评良好8.5空间测评指标


- 面宽

- 进深
*施工有误差,交付时无法与户型图一致,仅供参考,最终以开发商合同为准
| 面积(㎡) | 面宽(m) | 进深(m) | 评价 | |
|---|---|---|---|---|
| 卧室 | 17.8 | 5.9 | 2.7 | 良好 |
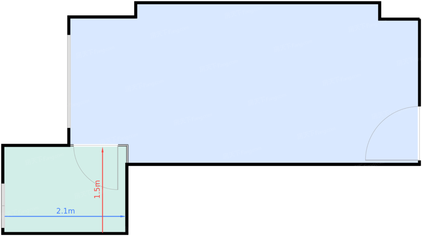
| 卫生间 | 3.6 | 2.1 | 1.5 | 良好 |
*户型数据为人工测量或估算值,可能于实际情况存在误差,仅供参考,实际数据以开发商发布为准。
通风测评极佳10


- 开窗

- 风向
*施工有误差,交付时无法与户型图一致,仅供参考,最终以开发商合同为准
采光测评极佳10采光测评的指标
| 采光性 | 评价 | |
|---|---|---|
| 卧室 | 极佳 | |
| 卫生间 | 极佳 |
*户型数据为人工测量或估算值,可能于实际情况存在误差,仅供参考,实际数据以开发商发布为准。
房屋细节
卧室 17.8㎡ | 面宽5.9m | 进深2.7m
空间可容纳
床
1.8m*2m
床头柜X2
0.4m宽
衣柜
0.6m深
- 空间适中尽管卧室面积有限,但设计师巧妙地利用每一寸空间,布局合理,使这个小小的角落成为您放松身心的温馨之地。
- 朝西朝西的卧室拥有宽阔的观景窗,傍晚时分,您可以在此欣赏落日余晖,感受大自然的宁静与和谐。
优秀卧室的落地窗,让室内空间更加开阔,为您带来一种心旷神怡的居住感受。
卫生间 3.6㎡ | 面宽2.1m | 进深1.5m
- 空间适中卫生间虽小,却别具一格,空间利用得当,让日常洗漱变得轻松愉快。
- 明卫卫生间设有窗户,通风采光两不误,为居住者打造了一个健康舒适的卫浴空间。
对此楼盘感兴趣的人还浏览了
查看全部






优秀













































