- 101.63㎡
- 109㎡
- 119.63㎡
- 66.32㎡
- 112.6㎡
- 124.24㎡
- 112㎡
- 125.14㎡
- 128㎡
- 108.04㎡
- 107㎡
- 120.99㎡
- 66.59㎡
- 50㎡
- 51.39㎡
- 49.49㎡
- 50.49㎡
- 50.49㎡
- 70.61㎡
- 49.66㎡
- 106㎡
- 49㎡
- 49.45㎡
- 62.95㎡
- 51.24㎡
- 62.39㎡
- 61㎡
- 57.7㎡
- 70.9㎡
- 59.86㎡
- 51.47㎡
- 49.45㎡
- 50.88㎡
- 145.57㎡
- 48.15㎡
- 50.74㎡
- 103.29㎡
- 105.24㎡
- 119.63㎡
- 69.18㎡
- 52㎡
- 62.61㎡
- 51.37㎡
- 70.99㎡
- 62.75㎡
- 48.06㎡
- 146.08㎡
- 67.57㎡
- 62.61㎡
- 65㎡
- 64㎡
- 61㎡
- 115.17㎡
- 49.45㎡
- 146.08㎡
- 51.99㎡
- 48.15㎡
- 67.78㎡
- 64㎡
- 62.93㎡
- 111.82㎡
- 59.86㎡
- 62.39㎡
- 69.9㎡
- 66.63㎡
- 47.19㎡
- 61.38㎡
- 50.49㎡
- 56.67㎡
- 51.27㎡
- 103㎡
- 100㎡
- 106㎡
- 109㎡
- 63㎡
- 63㎡
- 59㎡
- 125㎡
- 116㎡
- 69㎡
- 117㎡
- 111㎡
- 113.07㎡
- 102.83㎡
- 66.3㎡
- 66.59㎡
- 112㎡
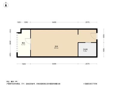
1室1厅1卫
售完建发天府鹭洲1居室户型图 | 建面:62.39㎡ | 朝向:朝西
- 所属楼盘
价格待定算月供
实际价格以售楼处为准,户型图为开发商提供,具体以实际交房标准为准
微信打开
查看完整户型评测8.1
户型评分
- 基础测评7
- 空间测评8.5
- 采光通风9.2
户型信息
- 1个阳台
空间测评良好8.5空间测评指标

*施工有误差,交付时无法与户型图一致,仅供参考,最终以开发商合同为准
- 卧室:良好
- 卧室:良好
- 卧室:良好
- 卫生间:良好
- 阳台:良好
通风测评优秀9.2


- 开窗

- 风向
*施工有误差,交付时无法与户型图一致,仅供参考,最终以开发商合同为准
采光测评优秀9.2采光测评的指标
| 采光性 | 评价 | |
|---|---|---|
| 卧室 | 极佳 | |
| 卧室 | 极佳 | |
| 卧室 | 普通 | |
| 阳台 | 极佳 |
*户型数据为人工测量或估算值,可能于实际情况存在误差,仅供参考,实际数据以开发商发布为准。
房屋细节
卧室
- 空间适中尽管卧室面积不大,但设计却十分巧妙,每一寸空间都被精心打造,为您打造出一个既温馨又舒适的休憩空间。
优秀卧室的落地窗设计,将自然光引入室内,为您打造一个明亮而舒适的休息环境。- 次卧有阳台卧室带阳台,让您的生活更加丰富多彩。您可以在这里进行各种户外活动,感受大自然的魅力与活力,享受生活的美好与精彩。带有阳台的卧室,让您的居住体验更上一层楼。在这里,您可以摆放喜爱的绿植,或是放置一张舒适的躺椅,享受悠闲的时光,感受生活的美好。
卧室
- 空间适中尽管卧室面积有限,但设计师却巧妙地将每一寸空间都利用起来,打造出一个精致而舒适的休憩环境。
- 朝西朝西的卧室视野极佳,傍晚时分,落日的美景一览无余,让您在窗前感受大自然的和谐与宁静,放松心情。
优秀站在卧室的落地窗前,您可以尽情欣赏窗外的美景,感受生活的宁静与美好。- 次卧有阳台阳台为卧室增添了一份诗意与浪漫。您可以在这里放置一张舒适的躺椅,享受悠闲的午后时光,感受生活的惬意与自在。
卧室
空间可容纳
床
1.8m*2m
床头柜X2
0.4m宽
衣柜
0.6m深
- 空间适中卧室设计得十分精巧,每一寸空间都得到了合理的利用,既实用又美观,让您在有限的空间里享受无限的舒适。
优秀卧室宽敞明亮,落地窗让自然光洒满每个角落,为您带来宁静与舒适的居住体验。- 次卧有阳台带有阳台的卧室,让您的生活更加宁静。您可以在这里静心冥想,感受内心的平静与安宁,享受生活的宁静与祥和。
卫生间
- 空间适中卫生间设计精致,空间利用得当,让您在有限的空间内享受舒适的洗浴环境。
3室2厅2卫售完8.9“良好”
价格待定101.63㎡
3室1厅2卫售完8.6“良好”
价格待定109.00㎡
3室2厅2卫售完9.4“优秀”
价格待定119.63㎡
3室2厅2卫售完8.8“良好”
价格待定112.60㎡
3室2厅2卫售完8.8“良好”
价格待定124.24㎡
3室2厅2卫售完8.8“良好”
价格待定112.00㎡
3室2厅2卫售完9“优秀”
价格待定107.00㎡
3室2厅2卫售完9.3“优秀”
价格待定120.99㎡
3室2厅2卫售完8.9“良好”
价格待定106.00㎡
3室2厅2卫售完8.6“良好”
价格待定103.29㎡
3室2厅2卫售完8.8“良好”
价格待定105.24㎡
3室2厅2卫售完9.2“优秀”
价格待定119.63㎡
3室2厅2卫售完8.7“良好”
价格待定115.17㎡
3室2厅2卫售完8.5“良好”
价格待定111.82㎡
3室3厅3卫售完6“普通”
价格待定109.00㎡
3室2厅1卫售完10“极佳”
价格待定113.07㎡
3室3厅2卫售完10“极佳”
价格待定102.83㎡
3室2厅1卫售完10“极佳”
价格待定112.00㎡
对此楼盘感兴趣的人还浏览了
合景瑧林
60000元/平方米
高新-大源用户评分9.34分
在售改善优选地铁沿线
中洲锦城湖岸2期
33345元/平方米
高新-大源用户评分9.34分
待售湖景地产洋房
远达·天荟云庭
301万元/套起
高新-大源用户评分9.38分
售完
查看全部




优秀




















































































