- 40.87㎡
- 43.99㎡
- 39.98㎡
- 48.42㎡
- 47.9㎡
- 44.66㎡
- 39.99㎡
- 44.66㎡
- 45.2㎡
- 164.27㎡
- 197.61㎡
- 197.61㎡
- 46.94㎡
- 39.99㎡
- 48㎡
- 47.73㎡
- 48㎡
- 102.03㎡
- 158㎡
- 80.83㎡
- 48㎡
- 42.94㎡
- 47.8㎡
- 39.98㎡
- 40.87㎡
- 39.98㎡
- 92.24㎡
- 47.96㎡
- 83.01㎡
- 46.95㎡
- 46.94㎡
- 44.56㎡
- 127.7㎡
- 40㎡
- 43.99㎡
- 92.24㎡
- 40.88㎡
- 44.66㎡
- 47.96㎡
- 47.96㎡
- 47.45㎡
- 47.73㎡
- 44.66㎡
- 47.45㎡
- 44.67㎡
- 45.2㎡
- 127㎡
- 48㎡
- 48㎡
- 44.66㎡
- 39.98㎡
- 47.96㎡
- 40.87㎡
- 40.87㎡
- 40.87㎡
- 39.99㎡
- 42.94㎡
- 44㎡
- 122㎡
- 87㎡
- 98㎡
- 102㎡
- 80㎡
- 102㎡
- 156㎡
- 170㎡
- 82㎡
- 127㎡
- 92㎡
- 80㎡
- 122㎡
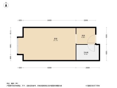
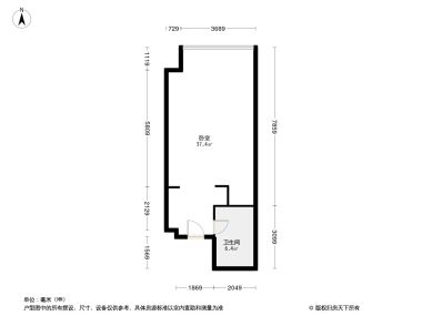
1室1卫
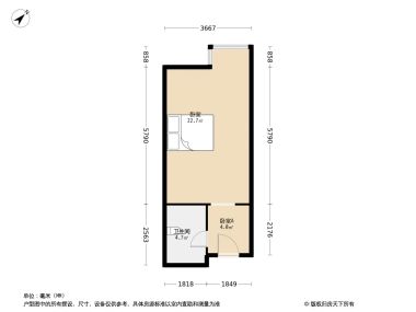
售完建发金沙里1居室户型图 | 建面:47.96㎡ | 朝向:东南
- 所属楼盘
价格待定算月供
实际价格以售楼处为准,户型图为开发商提供,具体以实际交房标准为准
微信打开
查看完整户型评测8.7
户型评分
- 基础测评8.5
- 空间测评9.3
- 采光通风8.5
户型信息
- 1个阳台
- 户型方正
空间测评优秀9.3空间测评指标

*施工有误差,交付时无法与户型图一致,仅供参考,最终以开发商合同为准
- 卧室:极佳
- 卧室:极佳
- 卫生间:良好
- 阳台:良好
通风测评良好8.5


- 开窗

- 风向
*施工有误差,交付时无法与户型图一致,仅供参考,最终以开发商合同为准
采光测评良好8.5采光测评的指标
| 采光性 | 评价 | |
|---|---|---|
| 阳台 | 极佳 |
*户型数据为人工测量或估算值,可能于实际情况存在误差,仅供参考,实际数据以开发商发布为准。
房屋细节
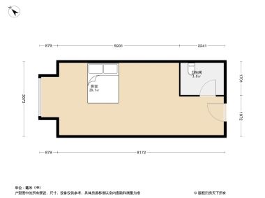
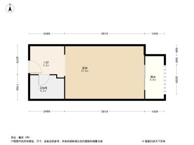
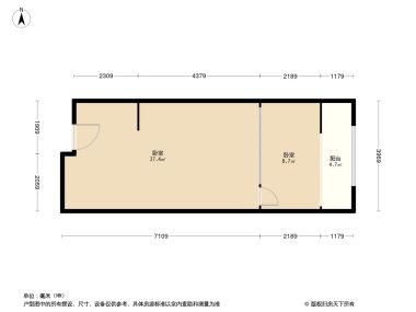
卧室
- 空间较大卧室空间宽敞,让您在繁忙的工作之余,享受宁静的私人时光。
- 次卧有阳台卧室带阳台,让您的生活更加丰富多彩。您可以在这里进行各种户外活动,感受大自然的魅力与活力,享受生活的美好与精彩。带有阳台的卧室,让您的居住体验更上一层楼。在这里,您可以摆放喜爱的绿植,或是放置一张舒适的躺椅,享受悠闲的时光,感受生活的美好。
卧室
空间可容纳
床
1.8m*2m
床头柜X2
0.4m宽
衣柜
0.6m深
- 空间较大卧室空间足够大,让您在布置家具时更加灵活自如。
- 次卧有阳台卧室的阳台设计,让您的居住空间更加通透。您可以在这里呼吸新鲜空气,感受阳光的温暖,享受生活的美好与宁静。
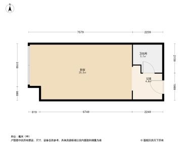
卫生间
- 空间适中卫生间设计精巧,空间利用恰到好处,虽小却五脏俱全,满足日常所需。
1室1卫售完8.6“良好”
价格待定40.87㎡
1室1卫售完8.7“良好”
价格待定43.99㎡
1室1厅1卫售完8“良好”
价格待定39.98㎡
1室1厅1卫售完8.5“良好”
价格待定48.42㎡
1室售完8.6“良好”
价格待定47.90㎡
1室1卫售完8.9“良好”
价格待定44.66㎡
1室1厅1卫售完7.9“普通”
价格待定39.99㎡
1室1卫售完8.4“良好”
价格待定44.66㎡
1室售完8.3“良好”
价格待定45.20㎡
1室1卫售完8.6“良好”
价格待定46.94㎡
1室1卫售完8.4“良好”
价格待定39.99㎡
1室1卫售完8.9“良好”
价格待定48.00㎡
1室1卫售完8.7“良好”
价格待定47.73㎡
1室1卫售完9“优秀”
价格待定48.00㎡
1室1厅1卫售完8.5“良好”
价格待定48.00㎡
1室1厅1卫售完8.2“良好”
价格待定42.94㎡
1室1卫售完8.5“良好”
价格待定47.80㎡
1室1卫售完8.6“良好”
价格待定39.98㎡
1室1卫售完7.8“普通”
价格待定40.87㎡
1室1卫售完7.8“普通”
价格待定39.98㎡
1室1厅1卫售完8.2“良好”
价格待定46.95㎡
1室1卫售完8.7“良好”
价格待定46.94㎡
1室1厅1卫售完7.8“普通”
价格待定44.56㎡
1室1卫售完8.4“良好”
价格待定40.00㎡
1室1卫售完8.7“良好”
价格待定43.99㎡
1室1卫售完8.9“良好”
价格待定40.88㎡
1室1卫售完9.2“优秀”
价格待定44.66㎡
1室1卫售完8.7“良好”
价格待定47.96㎡
1室1卫售完8.7“良好”
价格待定47.96㎡
1室1厅1卫售完8.6“良好”
价格待定47.45㎡
1室1厅1卫售完8“良好”
价格待定47.73㎡
1室1卫售完9.1“优秀”
价格待定44.66㎡
1室1卫售完8.4“良好”
价格待定47.45㎡
1室1卫售完9.3“优秀”
价格待定44.67㎡
1室1卫售完8.9“良好”
价格待定45.20㎡
1室1厅1卫售完8.5“良好”
价格待定48.00㎡
1室1厅1卫售完8.6“良好”
价格待定48.00㎡
1室1卫售完8.4“良好”
价格待定44.66㎡
1室1卫售完8.9“良好”
价格待定39.98㎡
1室1卫售完8.7“良好”
价格待定47.96㎡
1室1卫售完8.9“良好”
价格待定40.87㎡
1室1卫售完8.3“良好”
价格待定40.87㎡
1室1厅1卫售完8.1“良好”
价格待定40.87㎡
1室1卫售完7.8“普通”
价格待定39.99㎡
1室1卫售完8.9“良好”
价格待定42.94㎡
1室1卫售完8.4“良好”
价格待定44.00㎡
对此楼盘感兴趣的人还浏览了
查看全部










































































