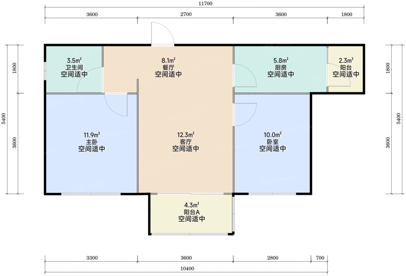
2室2厅1卫
在售B2户型 | 建面:73.99㎡ | 朝向:南
- 所属楼盘
约55.00万元/套算月供
实际价格以售楼处为准,户型图为开发商提供,具体以实际交房标准为准
微信打开
查看完整户型评测户型信息
- 1个明卫
- 明厨
- 1个阳台
- 明卫
- 明厨
- 双阳台
- 双卧朝南
对此楼盘感兴趣的人还浏览了
理想湖畔森居
8000元/平方米
简阳用户评分7.99分
在售改善优选
云上花居
8500元/平方米
简阳用户评分8.63分
在售文旅地产
中交锦观.观宸
13200元/平方米
简阳用户评分8.38分
在售品牌地产洋房
查看全部




