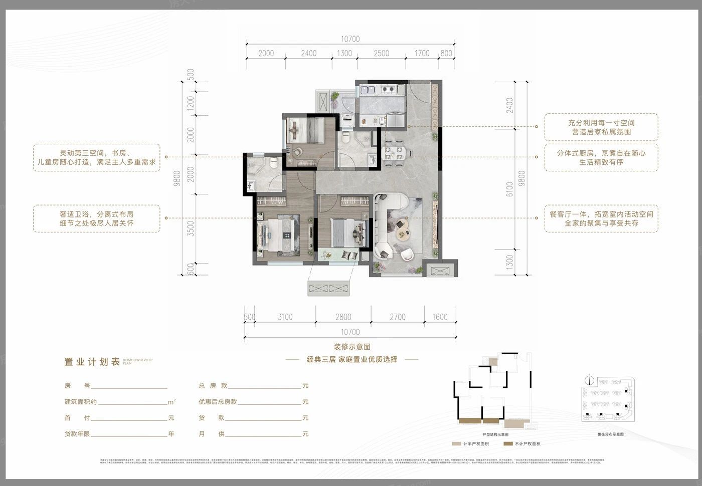
3室2厅2卫
待售B2户型 | 建面:87㎡ | 朝向:南,北,东,西
- 所属楼栋
2栋
- 所属楼盘
约66.99万元/套算月供
实际价格以售楼处为准,户型图为开发商提供,具体以实际交房标准为准
微信打开
查看完整户型评测9
户型评分
- 基础测评9
- 空间测评8.8
- 采光通风9.3
户型信息
- 1个阳台
- 1个明卫
- 次卧带卫生间
- 全明格局
- 户型方正
空间测评良好8.8空间测评指标


- 面宽

- 进深
*施工有误差,交付时无法与户型图一致,仅供参考,最终以开发商合同为准
| 面积(㎡) | 面宽(m) | 进深(m) | 评价 | |
|---|---|---|---|---|
| 客厅 | 23 | 6.4 | 5.5 | 极佳 |
| 餐厅 | 11.2 | 3.2 | 4.6 | 优秀 |
| 卧室A | 7.5 | 2.7 | 2.8 | 良好 |
| 卧室B | 13.2 | 3.1 | 4.9 | 优秀 |
| 卧室C | 9.6 | 2.9 | 3.5 | 良好 |
| 厨房 | 6.6 | 2.6 | 2.5 | 良好 |
| 卫生间A | 4.6 | 2.2 | 2.1 | 良好 |
| 卫生间B | 4.3 | 2 | 2.1 | 良好 |
| 阳台A | 3.4 | 1.5 | 2.5 | 良好 |
*户型数据为人工测量或估算值,可能于实际情况存在误差,仅供参考,实际数据以开发商发布为准。
通风测评优秀9.3


- 开窗

- 风向
*施工有误差,交付时无法与户型图一致,仅供参考,最终以开发商合同为准
采光测评优秀9.3采光测评的指标
| 采光性 | 评价 | |
|---|---|---|
| 客厅 | 良好 | |
| 卧室A | 极佳 | |
| 卧室B | 极佳 | |
| 卧室C | 极佳 | |
| 厨房 | 优秀 | |
| 卫生间A | 优秀 | |
| 卫生间B | 优秀 | |
| 阳台A | 极佳 |
*户型数据为人工测量或估算值,可能于实际情况存在误差,仅供参考,实际数据以开发商发布为准。
房屋细节
客厅 23㎡ | 面宽6.4m | 进深5.5m
- 空间豪华客厅设计豪华大气,空间感十足,营造出一种高贵而典雅的居住氛围。
优秀客厅朝南设计,明亮通透,阳光透过窗户洒进室内,让空间焕发出勃勃生机,是您与家人共度欢乐时光、享受天伦之乐的温馨场所。- 舒适客厅宽敞通透,窗户设计独特,自然光自由流淌,无论是阅读学习还是休闲放松,都能在此感受到生活的宁静与美好。
卧室A 7.5㎡ | 面宽2.7m | 进深2.8m
空间可容纳
床
1.2m*2m
床头柜X1
0.4m宽
- 空间适中精致小巧的卧室A,虽然面积不大,但设计却充满巧思,每一处都透露着舒适与温馨,让您感受到家的温暖。
- 朝西卧室A向西,每当落日余晖洒落,为室内增添一抹暖色,营造温馨浪漫的氛围,让您在忙碌之后享受难得的宁静时光。
- 有窗卧室A窗户设计别致,将自然的美景与室内空间完美融合,为您营造一个既舒适又充满自然气息的生活空间。
- 次卧有阳台卧室A不仅宽敞舒适,更带有私属阳台,让您的生活空间得以延伸。无论是清晨的呼吸吐纳,还是夜晚的观星赏月,都能在这里找到与自然的亲密接触。
卧室B 13.2㎡ | 面宽3.1m | 进深4.9m
空间可容纳
床
1.8m*2m
床头柜X2
0.4m宽
衣柜
0.6m深
- 空间较大卧室B宽敞舒适,空间足够大,让您尽享惬意的生活时光。
优秀卧室B朝南,光线柔和而通透,通风顺畅,为您的私密空间增添一份自然的舒适与宁静,无论是午后小憩还是夜晚安睡,都能享受到阳光的温馨照耀。- 有窗卧室B窗户明亮宜人,让您在舒适的床上就能欣赏到窗外的美景,感受生活的美好与宁静。
卧室C 9.6㎡ | 面宽2.9m | 进深3.5m
空间可容纳
床
1.2m*2m
床头柜X1
0.4m宽
- 空间适中卧室C虽小,却设计得精致而舒适,每一寸空间都得到了充分的利用,为您带来一个宁静而温馨的休憩环境。
优秀朝南设计的卧室C,光线明亮且宜人,通风效果出色,为您的私人领地营造一份自然的惬意与安逸,无论是短暂休息还是长夜安睡,都能感受到阳光的温暖陪伴。- 有窗卧室C的窗户,如同一扇通往自然的门,让您随时都能感受到室外的美景与气息。
厨房 6.6㎡ | 面宽2.6m | 进深2.5m
- 空间适中厨房面积适中,让您在料理美食的同时,也能享受到宽敞舒适的烹饪空间。
- 明厨厨房的窗户设计巧妙,不仅通风采光好,还增添了几分现代感,让烹饪变得更加愉悦。
- 厨房带阳台厨房有小阳台,方便储物。
卫生间A 4.6㎡ | 面宽2.2m | 进深2.1m
- 空间适中卫生间A空间适中,既不过于紧凑也不过于空旷,让您的洗浴体验更加舒适自然。
- 明卫卫生间A的窗户设计,既保证了通风效果,又提升了空间的明亮感,让卫浴更加愉悦。
卫生间B 4.3㎡ | 面宽2m | 进深2.1m
- 空间适中卫生间B设计精巧,空间利用恰到好处,虽小却五脏俱全,满足日常所需。
- 明卫卫生间B的窗户让室内光线充足,减少了潮湿和异味,为居住者带来更加健康舒适的卫浴环境。
4001891623 转 628410
安全通话隐藏真实号码,致电售楼处了解更多优惠信息
优惠活动
查看更多优惠
置业顾问(2)
- 免费咨询
- 专业服务
- 区域解读
- 户型分析
对此楼盘感兴趣的人还浏览了

三江春天
7200元/平方米
崇州用户评分8.23分
在售改善优选洋房

中粮原山
16000元/平方米
崇州用户评分8.39分
在售文旅地产低密居所特色别墅湖景地产装修交付洋房

御澜世家
8000元/平方米
崇州用户评分8.23分
在售花园洋房刚需必看
查看全部





优秀





