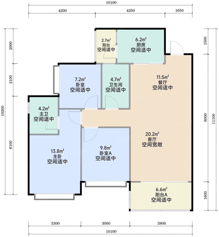
3室2厅2卫
售完B2 | 建面:102㎡ | 朝向:南,北
- 所属楼盘
约210.00万元/套算月供
实际价格以售楼处为准,户型图为开发商提供,具体以实际交房标准为准
微信打开
查看完整户型评测户型信息
- 2个明卫
- 明厨
- 1个阳台
- 明卫
- 双阳台
- 双卧朝南
- 主卧朝南
对此楼盘感兴趣的人还浏览了

银河玺悦和鸣
17000元/平方米
双流-东升用户评分9.46分
在售改善优选

银河玺悦凤鸣
21120元/平方米
双流用户评分9.22分
在售

复地·崑玉锦城
22000元/平方米
武侯-武侯新城用户评分9.3分
售完改善优选地铁沿线洋房
查看全部







