3室2厅2卫
待售B1 | 建面:119.81㎡ | 朝向:西北,南北,西南,东西,东南,东北
- 所属楼栋
4栋7栋
- 所属楼盘
约99.44万元/套算月供
实际价格以售楼处为准,户型图为开发商提供,具体以实际交房标准为准
微信打开
查看完整户型评测9.3
户型评分
- 基础测评10
- 空间测评8.6
- 采光通风9.2
户型信息
- 3个阳台
- 1个飘窗
- 2个明卫
- 明厨
- 独立衣帽间
- 大面宽阳台
空间测评良好8.6空间测评指标


- 面宽

- 进深
*施工有误差,交付时无法与户型图一致,仅供参考,最终以开发商合同为准
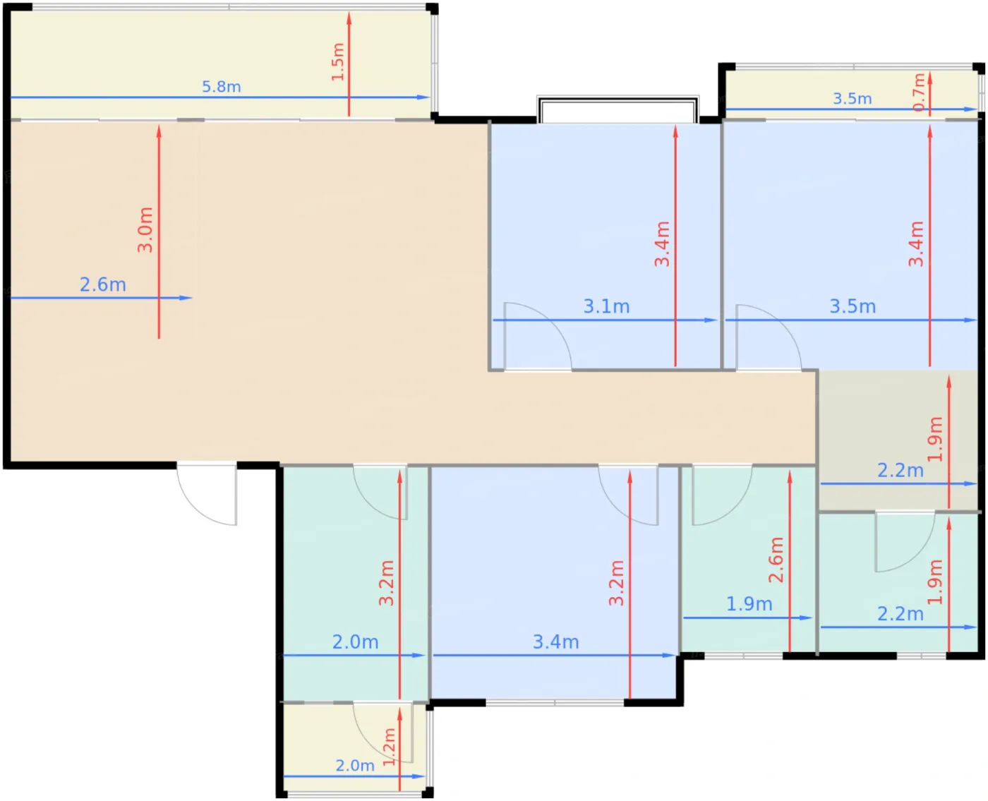
| 面积(㎡) | 面宽(m) | 进深(m) | 评价 | |
|---|---|---|---|---|
| 客厅 | 28.2 | 10.9 | 4.7 | 优秀 |
| 餐厅 | 7.7 | 2.6 | 3 | 良好 |
| 卧室A | 10.6 | 3.1 | 3.4 | 良好 |
| 卧室B | 11.8 | 3.5 | 3.4 | 良好 |
| 卧室C | 10.8 | 3.4 | 3.2 | 良好 |
| 厨房 | 6.5 | 2 | 3.2 | 良好 |
| 卫生间A | 4.3 | 2.2 | 1.9 | 良好 |
| 卫生间B | 4.7 | 1.9 | 2.6 | 良好 |
| 阳台A | 8.8 | 5.8 | 1.5 | 良好 |
| 阳台B | 2.5 | 3.5 | 0.7 | 良好 |
| 阳台C | 2.5 | 2 | 1.2 | 良好 |
*户型数据为人工测量或估算值,可能于实际情况存在误差,仅供参考,实际数据以开发商发布为准。
通风测评优秀9.2


- 开窗

- 风向
*施工有误差,交付时无法与户型图一致,仅供参考,最终以开发商合同为准
采光测评优秀9.2采光测评的指标
| 采光性 | 评价 | |
|---|---|---|
| 卧室A | 极佳 | |
| 卧室C | 极佳 | |
| 厨房 | 普通 | |
| 卫生间A | 优秀 | |
| 卫生间B | 极佳 | |
| 阳台A | 极佳 | |
| 阳台B | 极佳 | |
| 阳台C | 极佳 |
*户型数据为人工测量或估算值,可能于实际情况存在误差,仅供参考,实际数据以开发商发布为准。
房屋细节
客厅 28.2㎡ | 面宽10.9m | 进深4.7m
- 空间宽敞客厅的空间足够宽敞,无论是家庭聚会还是朋友小聚,都能轻松容纳,让人感受到家的温馨与热闹。
- 有阳台客厅外连阳台,让家居空间得以延伸,同时也为家人提供了一个放松身心的好去处。
卧室A 10.6㎡ | 面宽3.1m | 进深3.4m
空间可容纳
床
1.8m*2m
床头柜X2
0.4m宽
衣柜
0.6m深
- 空间适中尽管卧室A面积有限,但设计师却巧妙地利用空间,打造出一个精致而舒适的休憩之所,让您感受到家的温馨与惬意。
- 有飘窗卧室A的飘窗设计,让自然与室内空间完美融合,为您带来一份轻松愉悦的居住体验。
卧室B 11.8㎡ | 面宽3.5m | 进深3.4m
空间可容纳
床
1.8m*2m
床头柜X2
0.4m宽
衣柜
0.6m深
- 空间适中精致小巧的卧室B,设计得十分精致,每一寸空间都得到了合理的利用,让您在繁忙的生活中拥有一个宁静的休憩之所。
- 次卧有阳台卧室B不仅宽敞舒适,更带有私属阳台,让您的生活空间得以延伸。无论是清晨的呼吸吐纳,还是夜晚的观星赏月,都能在这里找到与自然的亲密接触。
卧室C 10.8㎡ | 面宽3.4m | 进深3.2m
空间可容纳
床
1.8m*2m
床头柜X2
0.4m宽
衣柜
0.6m深
- 空间适中精致小巧的卧室C,设计精巧,每一寸空间都得到了充分利用,让您在繁忙的生活中拥有一个温馨的休憩角落。
优秀卧室C朝南,光线明亮,通风效果上佳,为您的私密空间带来一份自然的舒适与宁静,无论是午后小憩还是夜晚安睡,都能感受到阳光的温暖照耀。- 有窗卧室C窗户宽敞明亮,让您在繁忙的生活中,也能找到一处宁静的角落,享受片刻的宁静与放松。
厨房 6.5㎡ | 面宽2m | 进深3.2m
- 空间适中精心设计的厨房空间,既实用又美观,让您的烹饪之旅更加顺畅愉快。
- 明厨明亮窗户的厨房设计,让自然光照亮每一个角落,烹饪时心情更加舒畅,享受家的温馨与美好。
- 厨房带阳台厨房有小阳台,方便储物。
卫生间A 4.3㎡ | 面宽2.2m | 进深1.9m
- 空间适中卫生间A设计精巧,空间利用恰到好处,虽小却五脏俱全,满足日常所需。
- 明卫卫生间A设有窗户,通风采光两不误,为居住者打造了一个健康舒适的卫浴空间。
卫生间B 4.7㎡ | 面宽1.9m | 进深2.6m
- 空间适中虽面积不大,但卫生间B布局合理,空间适中,满足您日常清洁和洗漱的需求。
- 明卫窗户的加入让卫生间B的通风换气更加顺畅,同时提升了卫浴空间的采光效果。
4001891623 转 604829
安全通话隐藏真实号码,致电售楼处了解更多优惠信息
对此楼盘感兴趣的人还浏览了

瑞升文澜府
8500元/平方米
蒲江用户评分8.94分
在售

越秀湖与白
31000元/平方米
双流-怡心湖用户评分9.45分
在售品牌地产国企开发改善优选洋房地铁沿线

御景现代城
6500元/平方米
蒲江用户评分8.93分
在售改善优选
查看全部





优秀








