开间
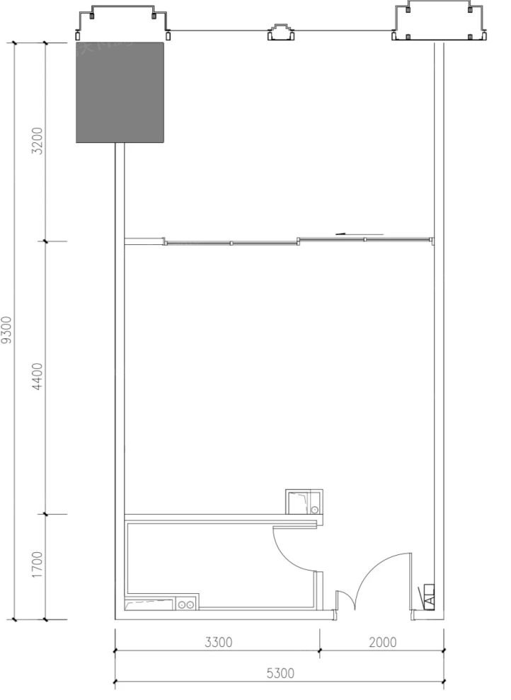
待售A户型 | 建面:75㎡ | 朝向:南北
- 所属楼栋
1栋
- 所属楼盘
约112.5万元/套算月供
实际价格以售楼处为准,户型图为开发商提供,具体以实际交房标准为准
微信打开
查看完整户型评测户型信息
- 全明格局
- 户型方正
4001891623 转 717073
安全通话隐藏真实号码,致电售楼处了解更多优惠信息
对此楼盘感兴趣的人还浏览了

梦享·春山可望
12929元/平方米起
都江堰用户评分8.3分
在售景观居所装修交付低密居所洋房

观山樾
133万元/套起
都江堰-青城山用户评分8.04分
在售低密居所洋房

朗诗·峰境
10500元/平方米
成华-府青路用户评分9.59分
在售品牌地产地铁沿线改善优选
查看全部







