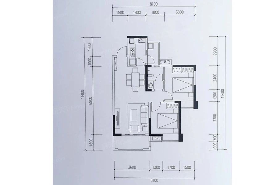
2室2厅1卫1厨
待售A2’户型 | 建面:80.34㎡ | 朝向:
- 所属楼栋
3栋
- 所属楼盘
约59.45万元/套算月供
实际价格以售楼处为准,户型图为开发商提供,具体以实际交房标准为准
微信打开
查看完整户型评测9.4
户型评分
- 基础测评10
- 空间测评8.8
- 采光通风9.1
户型信息
- 2个阳台
- 大面宽阳台
- 户型方正
- 动静分离
空间测评良好8.8空间测评指标


- 面宽

- 进深
*施工有误差,交付时无法与户型图一致,仅供参考,最终以开发商合同为准
| 面积(㎡) | 面宽(m) | 进深(m) | 评价 | |
|---|---|---|---|---|
| 客厅 | 21.4 | 5.8 | 4.6 | 优秀 |
| 餐厅 | 12.5 | 3.8 | 4.1 | 良好 |
| 卧室A | 13.4 | 3 | 4.8 | 优秀 |
| 卧室B | 11.6 | 3.2 | 4 | 良好 |
| 厨房 | 8.1 | 2.2 | 3.7 | 极佳 |
| 卫生间 | 5.5 | 2.1 | 2.7 | 良好 |
| 阳台 | 7.1 | 4.1 | 1.7 | 良好 |
| 阳台A | 3.6 | 1.5 | 2.5 | 良好 |
*户型数据为人工测量或估算值,可能于实际情况存在误差,仅供参考,实际数据以开发商发布为准。
通风测评优秀9.1


- 开窗

- 风向
*施工有误差,交付时无法与户型图一致,仅供参考,最终以开发商合同为准
采光测评优秀9.1采光测评的指标
| 采光性 | 评价 | |
|---|---|---|
| 卧室A | 优秀 | |
| 卧室B | 极佳 | |
| 卫生间 | 极佳 | |
| 阳台 | 极佳 | |
| 阳台A | 极佳 |
*户型数据为人工测量或估算值,可能于实际情况存在误差,仅供参考,实际数据以开发商发布为准。
房屋细节
客厅 21.4㎡ | 面宽5.8m | 进深4.6m
- 空间宽敞宽敞的客厅是家的门面,无论是日常休闲还是节日庆祝,都能在这里找到归属感和幸福感。
- 有阳台阳台作为客厅的延伸,为居家生活提供了更多的可能性,无论是休闲还是娱乐都更加自在。
卧室A 13.4㎡ | 面宽3m | 进深4.8m
空间可容纳
床
1.8m*2m
床头柜X2
0.4m宽
衣柜
0.6m深
- 空间较大这间大于10平米的卧室A,空间宽敞,布局合理,让您在享受舒适生活的同时,也能感受到家的温馨与安逸。
优秀卧室A朝南,光线明亮而柔和,通风顺畅,为您的私密空间带来一份自然的宁静与安逸,无论是小憩片刻还是长夜安睡,都能感受到阳光的温暖照耀。- 有窗卧室A设有明亮窗户,窗外绿意盎然,让您在休息时刻也能尽享大自然的馈赠,舒缓身心。
卧室B 11.6㎡ | 面宽3.2m | 进深4m
空间可容纳
床
1.8m*2m
床头柜X2
0.4m宽
衣柜
0.6m深
- 空间适中尽管卧室B面积有限,但设计师却巧妙地利用空间,打造出一个精致而舒适的休憩之所,让您感受到家的温馨与惬意。
优秀卧室B朝南,光线明亮而柔和,通风顺畅,为您的私密空间带来一份自然的宁静与安逸,无论是小憩片刻还是长夜安睡,都能感受到阳光的温暖照耀。- 有窗卧室B的窗户,如同一扇通往自然的门,让您随时都能感受到室外的美景与气息。
厨房 8.1㎡ | 面宽2.2m | 进深3.7m
- 空间较大厨房空间足够大,多人协作料理更加得心应手,同时容纳冰箱等家电,生活更舒适。
- 厨房带阳台厨房有个小阳台,给杂物一个收纳空间。
卫生间 5.5㎡ | 面宽2.1m | 进深2.7m
- 空间适中虽面积有限,但卫生间设计独具匠心,空间利用高效,让日常清洁变得简单方便。
- 明卫卫生间的窗户设计独特,既保证了通风效果,又让卫浴空间变得更加明亮宽敞。
4001891623 转 640904
安全通话隐藏真实号码,致电售楼处了解更多优惠信息
- 专家解读
3室2厅2卫待售9.2“优秀”
86.26万元/套116.57㎡ - 专家解读
3室2厅2卫待售9.4“优秀”
86.26万元/套116.57㎡ - 专家解读
3室2厅2卫待售9.3“优秀”
87.16万元/套117.79㎡ - 专家解读
3室2厅2卫待售9.4“优秀”
87.16万元/套117.79㎡
3室2厅2卫待售9.3“优秀”
88.02万元/套118.95㎡- 专家解读
3室2厅2卫待售9.3“优秀”
88.02万元/套118.95㎡ - 专家解读
3室2厅2卫待售9.3“优秀”
89.25万元/套120.61㎡ - 专家解读
3室2厅2卫待售9.3“优秀”
89.25万元/套120.61㎡ - 专家解读
3室2厅2卫待售9.5“极佳”
91.97万元/套124.29㎡ - 专家解读
3室2厅2卫待售9“优秀”
98.1万元/套132.57㎡ - 专家解读
3室2厅2卫待售8.9“良好”
98.1万元/套132.57㎡ - 专家解读
3室2厅2卫待售9.4“优秀”
91.97万元/套124.29㎡
对此楼盘感兴趣的人还浏览了

华润置地天府幸福里
16000元/平方米
天府新区-怡心湖用户评分9.25分
售完品牌地产装修交付

空港发展云璟江屿
18000元/平方米
双流-华府用户评分9.12分
在售改善优选

华影传媒大厦
价格待定
成华-龙潭寺用户评分0.0分
售完
查看全部






优秀













