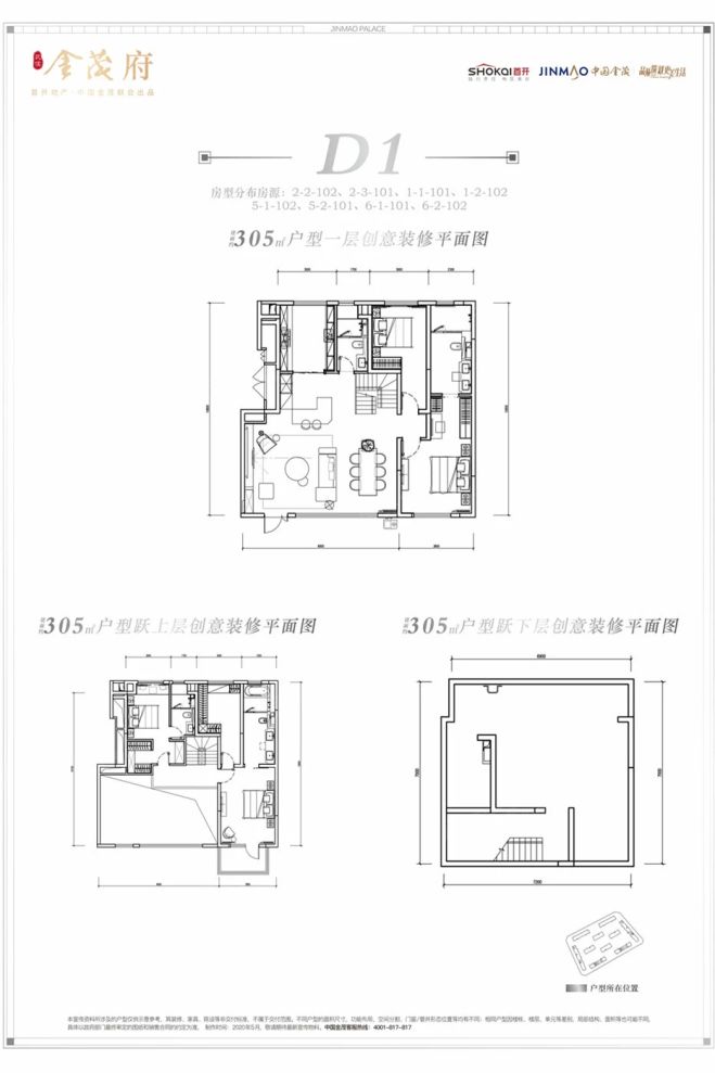
4室2厅4卫1厨
售完D1-305㎡户型 | 建面:305㎡ | 朝向:
- 所属楼盘
价格待定算月供
实际价格以售楼处为准,户型图为开发商提供,具体以实际交房标准为准
微信打开
查看完整户型评测10
户型评分
- 基础测评10
对此楼盘感兴趣的人还浏览了

锦江金茂府
32000元/平方米
锦江-三圣乡用户评分9.47分
售完改善优选装修交付洋房

远大海灣雲錦
29000元/平方米
高新-中和用户评分9.26分
在售改善优选装修交付地铁沿线大平层

招商未来公园
19000元/平方米
金牛-北部新城用户评分9.39分
在售改善优选地铁沿线
查看全部






















